Troiposoban stan na prodaju, Veternik, 260.000€, 92m²












































260.000 €
2.826 € / m2
- Stan u zgradi
- Grejanje na gas
- U izgradnji
- Prostorije: terasa
- Opremljenost: Prazno - internet, interfon, klima
- Oglas oglašava agencija pod reg. brojem 217
- 1 garažno mesto
- 1 parking mesto
- Zgrada poseduje: podrum, video nadzor
- Kablovska
- 1 telefonska linija
Opis oglasa
TROIPOSOBAN 92m , 86m, 77m Novi Sad-Veternik Dunavska 8 IZGRADNJA LUX
Lokacija: Veternik (Srbija, Novi Sad)
Ulica i broj: Dunavska 8
Sobnost: Troiposoban
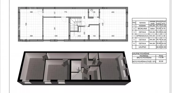
Kvadratura: 92m2
Stanje objekta: U izgradnji
Grejanje: Podno
Nivo u zgradi: 2. sprat
Dodatne informacije
Terasa, Parking, garaža, Podrum, ostava, Internet, Telefon, Satelitska, kablovska TV, Klima
Tekst oglasa
SPECIJALNA PONUDA. . . . .
Oglašavamo prodaju , i početak izgradnje Stambenog Objekta Su+Pr+1+Povučena etaža u Novom Sadu - Veterniku, Dunavska 8 , neposredna blizina osnovne škole i vrtiće, Futoškog puta.
Grade se dve lamele, jedna pored druge sa dva ulaza. Po svakom ulazu biće tri stana:
1, Visoko Prizemlje - 77m + ostava u suterenu 24m + Garazno mesto + parking + 100m zelene terase u dvorištu
2, Prvi sprat - 86m + ostava u suterenu 24m + Garazno meto + parking
3, Drugi sprat - 92m + ostava u suterenu 24m + Garzno mesto+ parking + krovna terasa sa pogledom na Frušku goru
Gradnja de lux Urbanih vila biće sa najkvalitetnijim materijalima , sa Bakrnim duplo falcovani krov, centralni usisivač za svaki stan, uz svaki stan ide po jedno garažni i jedno parking mesto, , grejanje je podno daljinsko , centralna klima, najmodrniji video nadzor, alarm, daljinsko gasenje i paljenje svetla, roletni, otvaranje kapije , aluminijumska stolarija sa izopan staklom.
Rok završetka leto 2026,
Cena po jednoj etzi za sve u kompletu je 260,000 Eura sa PDV
Ekskluzivno pravo prodaje BOMBYX Reg.217
Za sve dalje pozovite nase agente 063... (prikaži broj telefona) , 062... (prikaži broj telefona) , 064... (prikaži broj telefona)
*Sačuvaj oglas uz belešku i primaj obaveštenja o njihovom pojeftinjenju ili pojavljivanju sličnih
Prikaz stana na mapi
Parkovi u blizini
- Park Bistrica47 min

Obeležja kulture u blizini
- Mađarska reformatorska crkva sa zgradom parohijskog doma13 min
- Dvorac Hadik-Kotek14 min
- Jodna Banja19 min

Škole/Fakulteti/Vrtići u blizini
- Osnovna škola (Osnovna škola Mihajlo Pupin)5 min
- Srednja škola (Privatna medicinska škola Dositej Obradović)8 min
- Vrtić (Dečiji vrtić Zlatno sunce)10 min
- Fakultet (Protestantski teološki fakultet)13 min

- Bolnica (Opšta bolnica New Hospital)10 min
- Klinika (Poliklinika Consilium)13 min
- Teretana (Fitness studio Top Form)8 min
- Prodavnica (TSV Diskont)3 min
- Restoran (Restoran Na kraj sela)31 min
- Kafana (Pivoteka 77)50 min
- Taksi stajalište (Taxi prevoz Novi Sad)48 min
- Autobuska stanica (Veternik - Stadion)1 min
- Banka (Poštanska štedionica)5 min
- Pošta (Pošta Veternik 21203)4 min
Kontakt oglašivača
Krediti OTP banke
Saznaj više
Prikazana rata odnosi se na maksimalni period otplate. Kalkulator je informativnog karaktera.
* Nakon isteka 5 godina, prelazi se na varijabilnu kamatnu stopu


