Stan na prodaju, Veternik, 85.428€, 40m²






85.428 €
2.136 € / m2
- Stan u zgradi
- Novo
- Oglas oglašava agencija pod reg. brojem 482
- 1 parking mesto
Opis oglasa
Novogradnju potpisuje iskusan investitor iz Novog Sada, prepoznatljiv po pouzdanoj gradnji i pažnji posvećenoj svakom detalju. Objekti su projektovani sa jasnim fokusom na kvalitet materijala, savremena tehnička rešenja i funkcionalne rasporede koji olakšavaju svakodnevni život. Nastavljaju ovu praksu, nudeći sigurno ulaganje i kvalitetan prostor za život u mirnom okruženju.
Karakteristike stana:
-podno grejanje na toplotne pumpe
-tarkett parket
-geberit ugradni vodokotlići
-španska keramika
-staklena tuš kabina
-3cm termo - zvučna izolacija na podovima
-šestokomorna PVC stolarija sa roletnama
-sigurnosna ulazna vrata
-staklene ograde na terasama
U cenu je uračunato jedno parking mesto. Dodatno parking mesto se naplaćuje 4.000€.
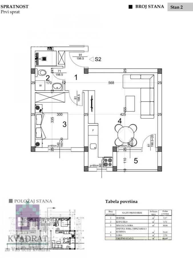
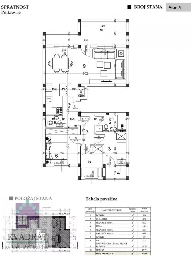
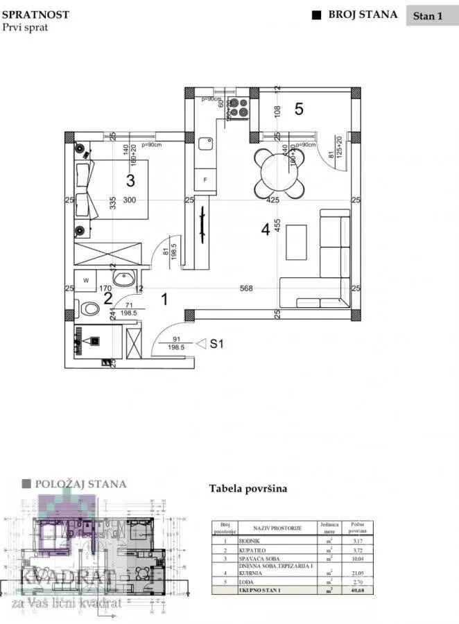
Dostupne su površine od 40.68m², I sprat (2.100€/m²) i 82.09m², II sprat (1.900€/m²)
Rok završetka: JUN 2026.god.
Za više informacija pozovite
062... (prikaži broj telefona)
Agencijska provizija 3% (min. 1000 €)
Ozbiljnost, predanost poslu, kao i visok stepen profesionalizma ističu agenciju Kvadrat na tržištu nekretnina kao veoma sigurnog i pouzdanog partnera svakoj porodici, pojedincu ili preduzeću koje se opredeli da prodaje, kupuje ili iznajmi nekretninu.
Prepustite brigu pronalaženja željene nekretnine našem iskusnom timu licenciranih agenata, uz obezbeđenu pravnu sigurnost.
*Sačuvaj oglas uz belešku i primaj obaveštenja o njihovom pojeftinjenju ili pojavljivanju sličnih
Prikaz stana na mapi
Parkovi u blizini
- Park Bistrica47 min

Obeležja kulture u blizini
- Dvorac Hadik-Kotek14 min
- Mađarska reformatorska crkva sa zgradom parohijskog doma15 min
- Jodna Banja20 min

Škole/Fakulteti/Vrtići u blizini
- Osnovna škola (Osnovna škola Mihajlo Pupin)5 min
- Srednja škola (Privatna medicinska škola Dositej Obradović)9 min
- Vrtić (Dečiji vrtić Zlatno sunce)10 min
- Fakultet (Protestantski teološki fakultet)14 min

- Bolnica (Opšta bolnica New Hospital)11 min
- Klinika (Poliklinika Consilium)13 min
- Teretana (Fitness studio Top Form)9 min
- Prodavnica (TSV Diskont)3 min
- Restoran (Restoran Na kraj sela)31 min
- Kafana (Pivoteka 77)50 min
- Taksi stajalište (Taxi prevoz Novi Sad)48 min
- Autobuska stanica (Veternik - Stadion)1 min
- Banka (Poštanska štedionica)5 min
- Pošta (Pošta Veternik 21203)4 min
Kontakt oglašivača
Krediti OTP banke
Saznaj više
Prikazana rata odnosi se na maksimalni period otplate. Kalkulator je informativnog karaktera.
* Nakon isteka 5 godina, prelazi se na varijabilnu kamatnu stopu


