Dvoiposoban stan na prodaju, Trošarina, 79.580€, 42m²










79.580 €
1.895 € / m2
- Etažno grejanje
- Novo
- Prostorije: kupatilo, terasa
- Oglas oglašava agencija pod reg. brojem 940
- 1 lift
- 1 telefonska linija
Opis oglasa
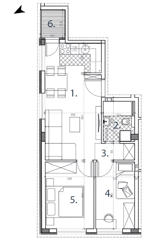
U ponudi je stambeni objekat spratnosti Su+P+2+Ps, smešten na dobroj lokaciji, u mirnijem delu grada na Trošarini. Prodaje se dvoiposoban stan površine 41,88m2, na II spratu. U gradnji se koriste visokokvalitetni materijali: fasadni zidovi će biti obloženi termoizolacijom i imaju povećanu debljinu, spoljašnji zidovi od bloka debljine 20cm, koji obezbeđuje vrhunsku zvučnu i termoizolaciju,podovi će biti obloženi parketom, dok će podovi kuhinje i kupatila biti obloženi kvalitetnom keramikom, biće postavljena stolarija sa roletnama i razvedena instalacija za grejanje. Nalazi se u blizini škole, vrtića, sportskog centra, odlično je povezan sa svim delovima grada i predstavlja pravo mesto za Vaš kvalitetan i komforan porodičan život. U cenu je uključen PDV i kupci prvog stana imaju pravo na povraćaj PDV-a u iznosu od 10%. Hvala Vam što ste pogledali oglas. Za više informacija o ovoj ili drugim nekretninama i zakazivanje razgledanja kontaktirajte agenta na broj telefona iz oglasa (poziv, sms, viber) ili putem e-maila. Kompletnu ponudu dostupnih nekretnina možete pronaći na našem sajtu. Agencija Proagent nekretnine je upisana u Registru posrednika pod brojem: 940.
*Sačuvaj oglas uz belešku i primaj obaveštenja o njihovom pojeftinjenju ili pojavljivanju sličnih
Prikaz stana na mapi
Parkovi u blizini
- Park Svetog Save21 min
- Park složnih komšija27 min
- Park Čair31 min

Obeležja kulture u blizini
- Zgrada Pasterovog zavoda8 min
- Vladičanski dvor11 min
- Ćele kula12 min

Škole/Fakulteti/Vrtići u blizini
- Osnovna škola (Osnovna škola Branko Miljković)10 min
- Srednja škola (Ugostiteljsko-turistička škola Niš)4 min
- Vrtić (Dečiji centar Eci peci pec)6 min
- Fakultet (Univerzitet u Nišu Prirodno matematički fakultet)6 min

- Bolnica (Opšta bolnica Sava Surgery)17 min
- Klinika (Poliklinika za laboratorijsku dijagnostiku Neolab)4 min
- Teretana (Strongman fitness center)6 min
- Prodavnica (TSV Diskont)5 min
- Restoran (Restoran Ognjište lux)2 min
- Kafana (Kafana Dva jarana)16 min
- Taksi stajalište (Duga taksi)26 min
- Autobuska stanica (Ekonomska škola)4 min
- Banka (OTP banka)5 min
- Pošta (Pošta Niš 11)15 min
Kontakt oglašivača
Krediti OTP banke
Saznaj više
Prikazana rata odnosi se na maksimalni period otplate. Kalkulator je informativnog karaktera.
* Nakon isteka 5 godina, prelazi se na varijabilnu kamatnu stopu


