Četvorosoban stan na prodaju, Tošin Bunar, 370.694€, 101m²


370.694 €
3.670 € / m2
- Novo
- Prostorije: kupatila (2), toalet
- Oglas oglašava agencija pod reg. brojem 862
Opis oglasa
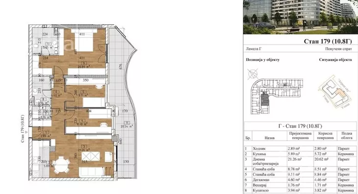
Prodaje se četvorosoban stan površine 101.56 m² u savremenom stambenom
kompleksu na prestižnoj lokaciji – Tošin bunar, Novi Beograd. Ova lokacija, kao jedna od glavnih
saobraćajnica, odlikuje se odličnom infrastrukturom i brzim pristupom svim delovima grada.
Karakteristike stana:
Površina: 101.56 m²
Struktura: Trosoban stan – idealan za porodice ili one koji traže dodatni prostor.
Orijentacija: Jugozapad – prirodno osvetljen i topao tokom dana.
Moderno dizajniran enterijer: Visok kvalitet gradnje i pažljivo osmišljen raspored prostorija.
Spratnost: Na upit
O kompleksu:
Čitav projekat se realizuje u nekoliko faza sa pet modernih lamela. Pored izuzetnog kvaliteta gradnje,
stanarima su na raspolaganju:
Zatvoreni park: Uređen prostor sa mobilijarom za odmor i opuštanje.
Dečije igralište: Bezbedno i prilagođeno za najmlađe.
Blizina sadržaja: Škole, vrtići, prodavnice, restorani i javni prevoz nalaze se na dohvat ruke.
Cena je izražena bez PDV-a što iznosi 10%.
Ova nekretnina predstavlja savršen izbor za moderan i komforan život na jednoj od najtraženijih lokacija
na Novom Beogradu.
Kontaktirajte nas za više informacija ili za zakazivanje obilaska!
*Sačuvaj oglas uz belešku i primaj obaveštenja o njihovom pojeftinjenju ili pojavljivanju sličnih
Prikaz stana na mapi
Parkovi u blizini
- Dečje igralište22 min
- Park Kalvarija32 min
- Park Republike Argentine33 min

Obeležja kulture u blizini
- Kuća Dimitrija Davidovića8 min
- Hangar Starog aerodroma na Novom Beogradu9 min
- Stara osnovna škola26 min

Škole/Fakulteti/Vrtići u blizini
- Osnovna škola (Savremena osnovna škola)11 min
- Srednja škola (Tehnička škola Novi Beograd)4 min
- Vrtić (Dečija kuća Hakuna Matata)11 min
- Fakultet (Rome Business School)6 min

- Bolnica (Opšta bolnica Avala)12 min
- Klinika (Poliklinika Dr Sci. Hadžagić)8 min
- Teretana (Fitness centar Maximus Fitness)11 min
- Prodavnica (Market Venera)4 min
- Restoran (Restoran Recept)4 min
- Kafana (Pub Senat)15 min
- Taksi stajalište (NBA Taxi)7 min
- Autobuska stanica (Železnička Stanica Tošin Bunar)2 min
- Tramvajska stanica (Blok 23)38 min
- Banka (OTP banka)11 min
- Pošta (Pošta Beograd 99)11 min
Kontakt oglašivača
Krediti OTP banke
Saznaj više
Prikazana rata odnosi se na maksimalni period otplate. Kalkulator je informativnog karaktera.
* Nakon isteka 5 godina, prelazi se na varijabilnu kamatnu stopu


