Troiposoban stan na prodaju, Telep, 161.920€, 64m²


161.920 €
2.530 € / m2
- Podno grejanje
- Novo
- Prostorije: terasa
- Opremljenost: Prazno - internet
- Oglas oglašava agencija pod reg. brojem 1573
- 1 lift
- Kablovska
Opis oglasa
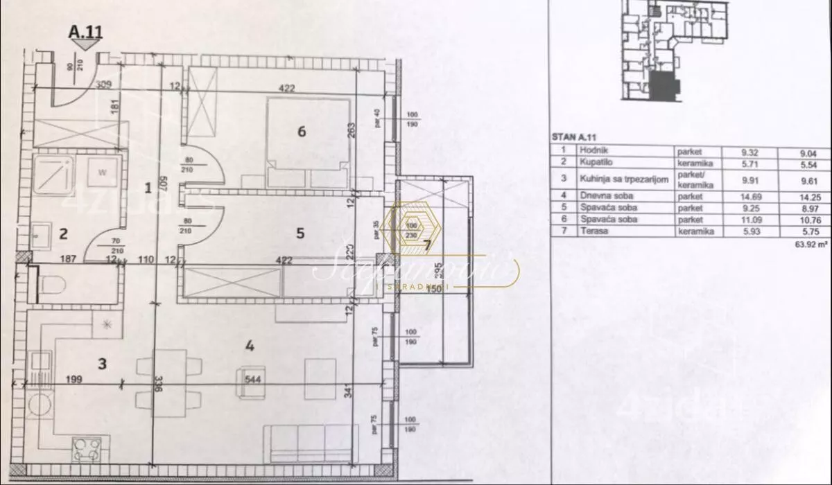
TELEP, 64m2, TROIPOSOBNI Objekat je u fazi izgradnje i realizuje se prema visokim standardima kvaliteta, sa jasnim fokusom na dugotrajnost, energetsku efikasnost i komfor stanovanja. Konstrukcija i ugrađeni materijali pažljivo su odabrani kako bi obezbedili vrhunsku termo i zvučnu izolaciju, stabilnost objekta i dugoročnu vrednost svakog stana. U toku izgradnje predviđena je ugradnja Villeroy Boch sanitarija, tuš kabine po meri, bojleri Ariston sa dva grejača, HL slivnici protiv neprijatnih mirisa, španske pločice, troslojna stakla. Posebna pažnja posvećuje se estetici fasade, Fundermax, silikonska boja fasade, Itong zvučno izolovani blok 25 izmedju stanova i hodnika, kamena vuna fasada. Unutrašnji prostori biće opremljeni troslojnim Tarketom, Renie vratima, granitnim stepeništem, roletnama na struju. Takodje posvećuje se pažnja i bezbednosti objekta putem video interfona i video nadzora cele zgrade. Zgrada poseduje biciklanu i klupice za prozore od kvarca. Predviđeno je puno zelenila i klupe u dvorištu. Internet mreža je uradjena i uvedeni su MTS i SBB. Postoji mogućnost kupovine garažnog mesta. Postoji mogućnost povrata PDV-a. Cena je 161.920 eura (sa uračunatim PDV-om) + 3% posrednička naknad. U ponudi se nalaze i drugi stanovi iste strukture, različitih spratnosti i pozicija u objektu. Za više informacija, možete nas kontaktirati na 063... (prikaži broj telefona) ili 021... (prikaži broj telefona) , agencija za nekretnine "Šćepanović i saradnici", upisana u Registar posrednika pod brojem 1573, Bulevar oslobođenja 78, Novi Sad ID oglasa: 44651.
*Sačuvaj oglas uz belešku i primaj obaveštenja o njihovom pojeftinjenju ili pojavljivanju sličnih
Prikaz stana na mapi
Parkovi u blizini
- Limanski park26 min
- Futoški park28 min
- Park Bistrica38 min

Obeležja kulture u blizini
- Dvorac Eđšeg11 min
- Jodna Banja11 min
- Kuća Jovana Jovanovića Zmaja14 min

Škole/Fakulteti/Vrtići u blizini
- Osnovna škola (Osnovna škola Jožef Atila)5 min
- Srednja škola (Gimnazija Laza Kostić)7 min
- Vrtić (Dečiji vrtić Lane)6 min
- Fakultet (Protestantski teološki fakultet)6 min

- Bolnica (Opšta bolnica sa porodilištem Gea)11 min
- Klinika (Poliklinika HealthMedic)5 min
- Teretana (Teretana Čeličana 021)8 min
- Prodavnica (Dućan Rakić)3 min
- Restoran (Restoran Vonamor)7 min
- Kafana (Bratis Pub)11 min
- Taksi stajalište (Gradski Taxi)15 min
- Autobuska stanica (Heroja Pinkija - Laze Lazarevića)5 min
- Banka (Banca Intesa)6 min
- Pošta (Pošta Novi Sad 21124)14 min
Kontakt oglašivača
Krediti OTP banke
Saznaj više
Prikazana rata odnosi se na maksimalni period otplate. Kalkulator je informativnog karaktera.
* Nakon isteka 5 godina, prelazi se na varijabilnu kamatnu stopu


