Šestosoban stan na prodaju, Telep, 350.200€, 136m²










































350.200 €
2.575 € / m2
- Stan u zgradi
- U izgradnji
- Prostorije: terasa
- Uknjiženo
- Oglas oglašava agencija pod reg. brojem 174
- 1 garažno mesto
- 1 lift
- Godina izgradnje: 2025.
Opis oglasa
Srpski:
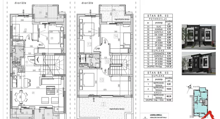
Prodajemo odmah useljiv šestosobni stan u urbanoj vili na Telepu.
U ponudi su dva ekskluzivna stana površine 136 m² i 143 m² u mirnoj i elitnoj zoni Telepa, u urbanoj vili vrhunske gradnje.
Svaki stan poseduje čak 90 m² krovnih terasa, koje dodatno obogaćuju životni prostor, ali ne ulaze u uknjiženu kvadraturu.
Specifikacije i oprema:
Podno grejanje na gas – svaki stan ima svoj Bosch kondenzacioni kotao
Aluminijumski portali površine do 6 m², troslojno staklo, elektro aluminijumske roletne, komarnici na svim otvorima
Vrhunska keramika Mirage i Keratile (formati 120×120 cm i 60×60 cm)
Hrastov parket u sobama
Sanitarije Hansgrohe i Villeroy & Boch, pametni tuševi
Midea inverterski klima uređaj za svaki stan
Klupice od prirodnog mermera na prozorima i terasama
Sigurnosni sistem sa kamerama
Video-interfon
Mogućnost kupovine garaža i parking mesta.
U cenu je uračunat PDV – kupac prvog stana oslobođen plaćanja poreza na prenos apsolutnih prava!
Ne propustite priliku da živite u luksuznom i prostranom stanu u jednom od najtraženijih delova Novog Sada.
Stanovi su uknjiženi 1/1 i bez tereta, moguće kreditiranje.
Šifra: 1030677
Pozovite!!!
063... (prikaži broj telefona)
Moj Dom nekretnine, Novi Sad (Reg. br. 174)
English:
For Sale: Move-in Ready Six-Room Apartment in an Urban Villa in Telep
We are offering two exclusive apartments of 136 m² and 143 m², located in a peaceful and upscale area of Telep, in a top-quality urban villa.
Each apartment comes with an impressive 90 m² of rooftop terraces, which significantly enhance the living space but are not included in the registered square footage.
Specifications and features:
Underfloor gas heating – each unit has its own Bosch condensing gas boiler
Aluminum portals up to 6 m², triple-glazed windows, electric aluminum blinds, and mosquito nets on all openings
Premium Mirage and Keratile ceramics (tile sizes: 120×120 cm and 60×60 cm)
Oak parquet flooring in the rooms
Hansgrohe and Villeroy & Boch sanitaryware, with smart shower systems
Midea inverter air conditioning in each unit
Natural marble window sills and terrace ledges
Security camera system
Video intercom
Garage and parking spaces available for purchase.
Price includes VAT – First-time homebuyers are exempt from paying the property transfer tax!
Don't miss the chance to live in a luxurious and spacious home in one of the most sought-after areas of Novi Sad.
Apartments are legally registered 1/1 and free of encumbrances, eligible for mortgage financing.
Ref. No.: 1030677
Call now: 063... (prikaži broj telefona)
Moj Dom Real Estate, Novi Sad (Reg. no. 174)
Русский:
Продается шестикомнатная квартира в городской вилле на Телепе – готова к заселению
В продаже две эксклюзивные квартиры площадью 136 м² и 143 м², расположенные в тихом и престижном районе Телепа, в городской вилле высокого качества строительства.
Каждая квартира располагает террасами на крыше площадью 90 м², которые значительно расширяют жилое пространство, но не входят в официально зарегистрированную площадь.
Характеристики и оснащение:
Водяной теплый пол на газу – каждая квартира имеет собственный конденсационный газовый котел Bosch
Алюминиевые порталы до 6 м², трехслойные стеклопакеты, электрические алюминиевые жалюзи, москитные сетки на всех окнах
Премиальная керамика Mirage и Keratile (размеры плитки: 120×120 см и 60×60 см)
Паркет из дуба в жилых комнатах
Санитарная техника Hansgrohe и Villeroy & Boch, «умные» душевые системы
Инверторный кондиционер Midea в каждой квартире
Подоконники и облицовка террас из натурального мрамора
Система видеонаблюдения
Видеодомофон
Есть возможность приобретения гаража и парковочного места.
В стоимость включен НДС – покупатель первой квартиры освобождается от уплаты налога на передачу права собственности!
Не упустите возможность жить в роскошной и просторной квартире в одном из самых востребованных районов Нови-Сада.
Квартиры вписаны в реестр (1/1), без обременений, возможна ипотека.
Код: 1030677
Звоните: 063... (prikaži broj telefona)
Агентство недвижимости Moj Dom, Нови-Сад (Рег. № 174)
(Moj Dom nekretnine,Novi Sad,Reg.br.174)
*Sačuvaj oglas uz belešku i primaj obaveštenja o njihovom pojeftinjenju ili pojavljivanju sličnih
Prikaz stana na mapi
Parkovi u blizini
- Park Bistrica28 min
- Futoški park33 min
- Limanski park36 min

Obeležja kulture u blizini
- Jodna Banja12 min
- Dvorac Eđšeg13 min
- Kuća iz 1797. godine18 min

Škole/Fakulteti/Vrtići u blizini
- Osnovna škola (Osnovna škola Jožef Atila)11 min
- Srednja škola (Gimnazija Laza Kostić)5 min
- Vrtić (Dečiji vrtić Zemlja čuda)6 min
- Fakultet (Protestantski teološki fakultet)7 min

- Bolnica (Ginekološka bolnica Ferona)2 min
- Klinika (Poliklinika Consilium)12 min
- Teretana (EMS Studio Maxifit)5 min
- Prodavnica (Supermarket Univerexport)6 min
- Restoran (Caffe restoran Rosetto)7 min
- Kafana (Atos pub)5 min
- Taksi stajalište (Taxi prevoz Novi Sad)20 min
- Autobuska stanica (Feješ Klare - Pravoslavna crkva)3 min
- Banka (Erste Bank Ekspres ekspozitura)6 min
- Pošta (Pošta Novi Sad 21124)7 min
Kontakt oglašivača

Krediti OTP banke
Saznaj više
Prikazana rata odnosi se na maksimalni period otplate. Kalkulator je informativnog karaktera.
* Nakon isteka 5 godina, prelazi se na varijabilnu kamatnu stopu

