Petosoban stan na prodaju, Telep, 288.400€, 104m²
Novi Sad, Gradske lokacije, Telep
Prikaži mapuŠifra oglasa: 4zida-1007667Oglas ažuriran: pre 16 dana


















288.400 €
2.773 € / m2
104 m²
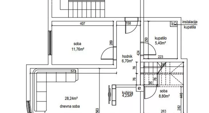
5 soba
4/4 sprata
- Stan u zgradi
- Uobičajeno stanje
- Prostorije: terasa
- Oglas oglašava agencija pod reg. brojem 802
- 1 lift
- Godina izgradnje: 2006.
Opis oglasa
NOVI SAD, BULEVAR EVROPE, PETOSOBAN, 104M2. Oglašavamo prodaju odličnog petosobnog stana na Bulevaru Evrope. U pitanju je duplex, stan ima sitna ulaganja, generalnoje u dobrom stanju. Pozovite za više informacija. Agencijska oznaka 1007667 ( Miloš 060... (prikaži broj telefona) , 021... (prikaži broj telefona) , Kalidas 021, Novi Sad Reg. br. posrednika: 802, web-sajt: http://www.kalidas-nekretnine.com )
*Sačuvaj oglas uz belešku i primaj obaveštenja o njihovom pojeftinjenju ili pojavljivanju sličnih
Prikaz stana na mapi
Parkovi u blizini
- Park Bistrica28 min
- Futoški park33 min
- Limanski park36 min

Obeležja kulture u blizini
- Dvorac Eđšeg12 min
- Jodna Banja12 min
- Galerija Matice srpske16 min

Škole/Fakulteti/Vrtići u blizini
- Osnovna škola (Osnovna škola Jožef Atila)5 min
- Srednja škola (Gimnazija Laza Kostić)5 min
- Vrtić (Dečiji vrtić Zemlja čuda)6 min
- Fakultet (Protestantski teološki fakultet)7 min

Zdravlje
- Bolnica (Ginekološka bolnica Ferona)2 min
- Klinika (Poliklinika Consilium)12 min
- Teretana (Fitness club Ozzy Gym)5 min
Hrana i piće
- Prodavnica (Supermarket Univerexport)6 min
- Restoran (Caffe restoran Rosetto)7 min
- Kafana (Atos pub)5 min
Prevoz
- Taksi stajalište (Taxi prevoz Novi Sad)20 min
- Autobuska stanica (Feješ Klare - Pravoslavna crkva)3 min
Ostale ustanove
- Banka (Erste Bank Ekspres ekspozitura)5 min
- Pošta (Pošta Novi Sad 21124)7 min
Kontakt oglašivača
▾Reklama▾
Stambeni krediti

- Period otplate od
96 -360 meseca
- NKS 4.75%
EKS 5.74%
Fiksna kamatna stopa
- Bez troškova obrade kredita
542 € / mesečno
Saznaj višePogledaj detaljnije i menjaj uslove kreditiranja na
stranici kreditnih kalkulatora
stranici kreditnih kalkulatora
Keš krediti
RSDIznos kredita
Period otplate
13 meseciOsiguranje domaćinstva online
Osiguraj svoje domaćinstvo u slučaju požara...

