Dvosoban stan na prodaju, Telep, 124.600€, 42m²






124.600 €
2.967 € / m2
- Stan u zgradi
- Grejanje na gas
- U izgradnji
- Prostorije: terasa
- Oglas oglašava agencija pod reg. brojem 1808
- 1 parking mesto
- 1 lift
Opis oglasa
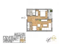
Predstavljamo vam funkcionalan i lepo raspoređen dvosoban stan od 42 m² u mirnom i urbanom delu Telepa, idealan za one koji žele udoban prostor u kvalitetnoj novogradnji. Stan se nalazi u modernom stambenom objektu koji je trenutno u izgradnji, sa planiranim visokim standardima gradnje i pažljivo biranim materijalima. Raspored stana je izuzetno praktičan i prilagođen savremenom načinu života. Sastoji se od osvetljene dnevne sobe sa kuhinjom, komforne spavaće sobe, moderno projektovanog kupatila, ulaznog hodnika i terase koja omogućava prijatan boravak na otvorenom. Svaki deo stana projektovan je tako da pruži maksimalnu iskoristivost prostora, udobnost i funkcionalnost. Grejanje je na gas, što obezbeđuje ekonomičnu potrošnju i prijatnu temperaturu tokom cele godine. Uz stan postoji mogućnost kupovine parking mesta, što predstavlja veliku prednost u ovom delu grada. Okruženje je mirno i porodično, ali odlično povezano sa svim važnim sadržajima jer se u blizini nalaze marketi, restorani, škole, vrtići i javni prevoz. Zbog dobrog položaja i kvaliteta gradnje, stan u izgradnji na ovoj lokaciji predstavlja odličnu priliku i kao investicija i kao životni prostor. Ukoliko tražite praktičan i moderan stan u jednom od najpoželjnijih delova Novog Sada, ovaj dvosoban stan od 39 m² pruža idealan odnos funkcionalnosti, estetike i kvaliteta.
Za više informacija kao i za razgledanje stana slobodno nas kontaktirajte.
Kontakt telefoni:
060... (prikaži broj telefona)
,
065... (prikaži broj telefona)
,
065... (prikaži broj telefona)
BAK Nekretnine
*Sačuvaj oglas uz belešku i primaj obaveštenja o njihovom pojeftinjenju ili pojavljivanju sličnih
Prikaz stana na mapi
Parkovi u blizini
- Park Bistrica28 min
- Futoški park33 min
- Limanski park36 min

Obeležja kulture u blizini
- Jodna Banja12 min
- Dvorac Eđšeg13 min
- Kuća iz 1797. godine18 min

Škole/Fakulteti/Vrtići u blizini
- Osnovna škola (Osnovna škola Jožef Atila)11 min
- Srednja škola (Gimnazija Laza Kostić)5 min
- Vrtić (Dečiji vrtić Zemlja čuda)6 min
- Fakultet (Protestantski teološki fakultet)7 min

- Bolnica (Ginekološka bolnica Ferona)2 min
- Klinika (Poliklinika Consilium)12 min
- Teretana (EMS Studio Maxifit)5 min
- Prodavnica (Supermarket Univerexport)6 min
- Restoran (Caffe restoran Rosetto)7 min
- Kafana (Atos pub)5 min
- Taksi stajalište (Taxi prevoz Novi Sad)20 min
- Autobuska stanica (Feješ Klare - Pravoslavna crkva)3 min
- Banka (Erste Bank Ekspres ekspozitura)6 min
- Pošta (Pošta Novi Sad 21124)7 min
Kontakt oglašivača
Krediti OTP banke
Saznaj više
Prikazana rata odnosi se na maksimalni period otplate. Kalkulator je informativnog karaktera.
* Nakon isteka 5 godina, prelazi se na varijabilnu kamatnu stopu






















