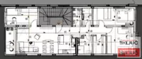
Četvorosoban stan na prodaju, Telep, 291.800€, 103m²


291.800 €
2.833 € / m2
- Stan u zgradi
- Podno grejanje
- Novo
- Prostorije: ostava, terasa
- Opremljenost: Prazno - internet, interfon
- Oglas oglašava agencija pod reg. brojem 360
- Kablovska
- 1 telefonska linija
Opis oglasa
Prodaje se 4.0 stan u NOVOM SADU, TELEP površine 103m2. Ovaj objekat se nalazi u mirnoj ulici između dva bulevara. Objekat je visokog kvaliteta i opreme. Salonska visina plafona, grejanje na toplotne pumpe kao i sistem hlađenja, granitna uvozna keramika, video nadzor, kvalitetna troslojna stolarija-roletne na daljinski kao i vrhunska zvučna izolacija. Ovde su svi potrebni sadržaji nadomak stana, škola, vrtić, ambulanta, mnogi marketi i prodavnice. Objekat je odlično povezan i sa ostalim delovima grada. Cena stana je sa agencijskom provizijom. Zavređuje pažnju. Pozovite da pogledate.
*Sačuvaj oglas uz belešku i primaj obaveštenja o njihovom pojeftinjenju ili pojavljivanju sličnih
Prikaz stana na mapi
Parkovi u blizini
- Park Bistrica28 min
- Futoški park33 min
- Limanski park36 min

Obeležja kulture u blizini
- Jodna Banja12 min
- Dvorac Eđšeg13 min
- Kuća iz 1797. godine18 min

Škole/Fakulteti/Vrtići u blizini
- Osnovna škola (Osnovna škola Jožef Atila)11 min
- Srednja škola (Gimnazija Laza Kostić)5 min
- Vrtić (Dečiji vrtić Zemlja čuda)6 min
- Fakultet (Protestantski teološki fakultet)7 min

- Bolnica (Ginekološka bolnica Ferona)2 min
- Klinika (Poliklinika Consilium)12 min
- Teretana (EMS Studio Maxifit)5 min
- Prodavnica (Supermarket Univerexport)6 min
- Restoran (Caffe restoran Rosetto)7 min
- Kafana (Atos pub)5 min
- Taksi stajalište (Taxi prevoz Novi Sad)20 min
- Autobuska stanica (Feješ Klare - Pravoslavna crkva)3 min
- Banka (Erste Bank Ekspres ekspozitura)6 min
- Pošta (Pošta Novi Sad 21124)7 min
Kontakt oglašivača
Krediti OTP banke
Saznaj više
Prikazana rata odnosi se na maksimalni period otplate. Kalkulator je informativnog karaktera.
* Nakon isteka 5 godina, prelazi se na varijabilnu kamatnu stopu


