Četvorosoban stan na prodaju, Telep, 262.710€, 101m²
















































262.710 €
2.601 € / m2
- Stan u zgradi
- Grejanje na gas
- Novo
- Prostorije: terasa
- Opremljenost: Prazno - internet, interfon, klima
- Oglas oglašava agencija pod reg. brojem 1734
- 1 parking mesto
- Godina izgradnje: 2025.
- Zgrada poseduje: video nadzor
- Kablovska
- 1 telefonska linija
Opis oglasa
Agencijska oznaka 4718
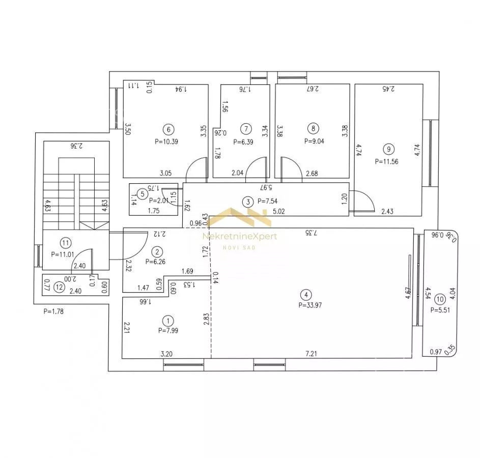
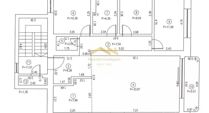
Prodaje se vrhunski četvorosoban stan, potpuno nov, idealan za porodičan život ili za one koji žele komfor, funkcionalnost i kvalitet na jednom mestu.
Raspored i karakteristike stana:
Prostran dnevni boravak sa kuhinjom i trpezarijom – otvoren koncept od preko 50 m², izuzetan za druženja i svakodnevni komfor.
- Velika terasa kojoj se pristupa preko staklenog portala, što prostoru daje mnogo svetlosti i elegantan izgled
- Potpuno odvojena noćna zona sa svojim hodnikom
- Tri spavaće sobe, idealne za porodice ili kombinaciju spavaćih/ radnih soba
- Veliko kupatilo sa prirodnom ventilacijom i španskom keramikom vrhunskog kvaliteta
- U cenu su uključena parking mesta, što ovu ponudu čini još vrednijom i praktičnijom.
Stan je odličan izbor za sve koji žele savremen, funkcionalan i svetao prostor u kojem je svaki detalj osmišljen za udobnost.
Reg.pos 1734
*Sačuvaj oglas uz belešku i primaj obaveštenja o njihovom pojeftinjenju ili pojavljivanju sličnih
Prikaz stana na mapi
Parkovi u blizini
- Park Bistrica28 min
- Futoški park33 min
- Limanski park36 min

Obeležja kulture u blizini
- Jodna Banja12 min
- Dvorac Eđšeg13 min
- Kuća iz 1797. godine18 min

Škole/Fakulteti/Vrtići u blizini
- Osnovna škola (Osnovna škola Jožef Atila)11 min
- Srednja škola (Gimnazija Laza Kostić)5 min
- Vrtić (Dečiji vrtić Zemlja čuda)6 min
- Fakultet (Protestantski teološki fakultet)7 min

- Bolnica (Ginekološka bolnica Ferona)2 min
- Klinika (Poliklinika Consilium)12 min
- Teretana (EMS Studio Maxifit)5 min
- Prodavnica (Supermarket Univerexport)6 min
- Restoran (Caffe restoran Rosetto)7 min
- Kafana (Atos pub)5 min
- Taksi stajalište (Taxi prevoz Novi Sad)20 min
- Autobuska stanica (Feješ Klare - Pravoslavna crkva)3 min
- Banka (Erste Bank Ekspres ekspozitura)6 min
- Pošta (Pošta Novi Sad 21124)7 min
Kontakt oglašivača
Krediti OTP banke
Saznaj više
Prikazana rata odnosi se na maksimalni period otplate. Kalkulator je informativnog karaktera.
* Nakon isteka 5 godina, prelazi se na varijabilnu kamatnu stopu






















