Dvosoban stan na prodaju, Sremska Kamenica, 119.990€, 48m²
























119.990 €
2.500 € / m2
- Stan u zgradi
- Podno grejanje
- U izgradnji
- Oglas oglašava agencija pod reg. brojem 1808
- 1 lift
Opis oglasa
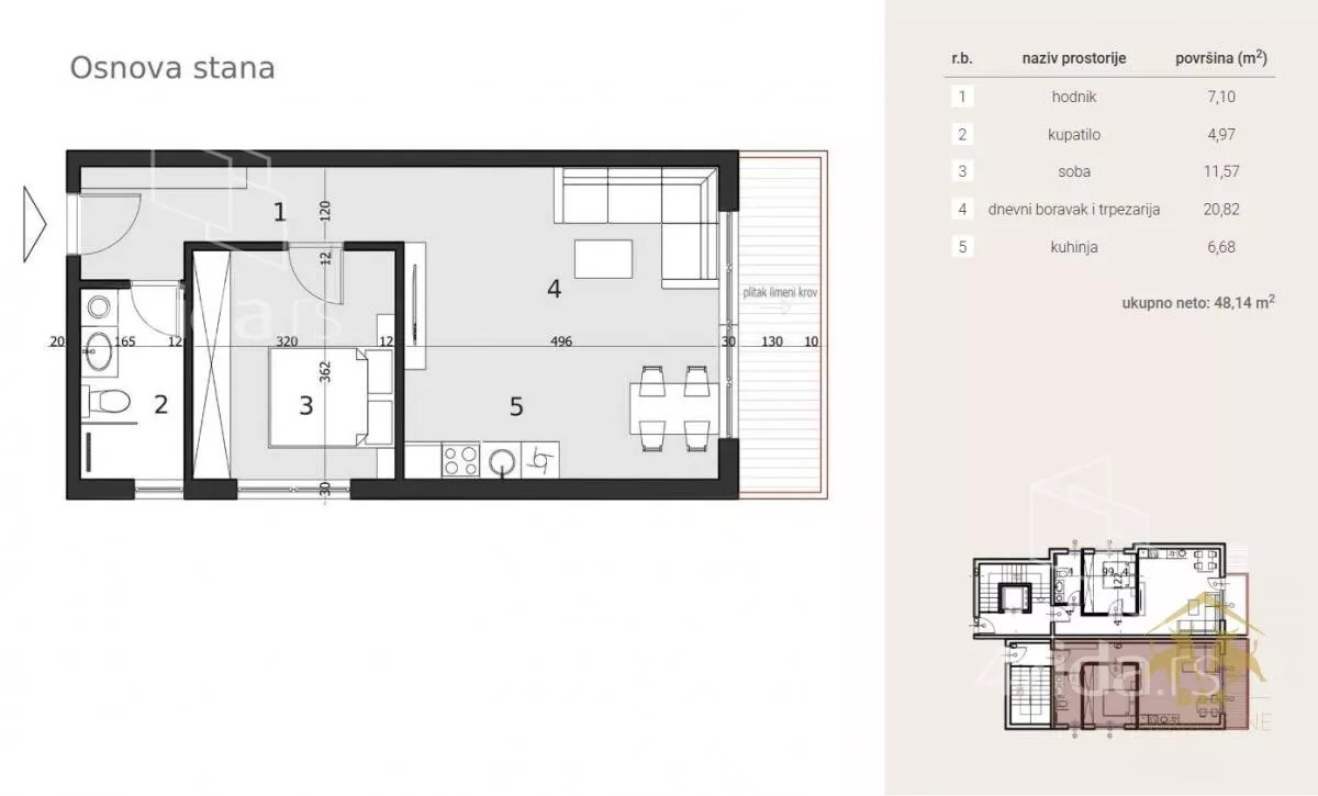
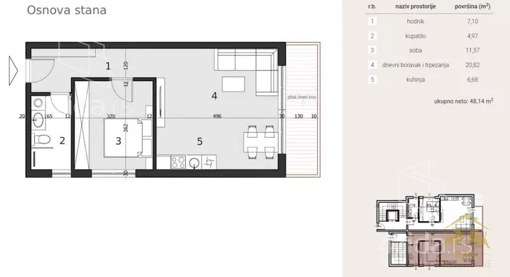
U jednom od najpoželjnijih delova Tatarskog brda, okruženom zelenilom i u neposrednoj blizini svih sadržaja i saobraćajnica, nalazi se ovaj ekskluzivan dvosoban stan u izgradnji površine 48 m², koji predstavlja idealan spoj funkcionalnosti, komfora i savremenog dizajna. Stan se izdvaja izuzetno dobro organizovanim rasporedom koji omogućava maksimalno iskorišćenje prostora. Poseban utisak ostavlja prostran dnevni boravak povezan sa trpezarijom i kuhinjom u otvorenom konceptu, stvarajući svetao i prijatan ambijent za boravak i druženje. Prostrana spavaća soba pruža mir i udobnost, dok su kupatilo i lepo organizovan hodnik pažljivo uklopljeni u celinu prostora. Podno grejanje dodatno doprinosi osećaju topline i komfora tokom cele godine. Zgrada odiše modernim dizajnom sa čistim linijama i velikim staklenim površinama koje prostore čine svetlim i prijatnim. Ugrađena je stolarija najnovije generacije, premium termo i zvučna izolacija, dok enterijer krase kvalitetna keramika i parketi koji prostoru daju dugotrajnu vrednost i sofisticiran izgled. Smart home sistem dodatno olakšava upravljanje i povećava energetsku efikasnost. U cenu stana uračunat je PDV, što ovu nekretninu čini odličnim izborom za porodično stanovanje ili za sigurnu investiciju. Završetak radova planiran je za proleće 2027. godine.
Za više informacija o stanu, dostupnosti i rezervaciji, slobodno nas kontaktirajte.
BAK Nekretnine
Kontakt telefon:
065... (prikaži broj telefona)
,
060... (prikaži broj telefona)
,
065... (prikaži broj telefona)
*Sačuvaj oglas uz belešku i primaj obaveštenja o njihovom pojeftinjenju ili pojavljivanju sličnih
Prikaz stana na mapi
Parkovi u blizini
- Park prirode Instituta u Sremskoj Kamenici32 min
- Kamenički park35 min

Obeležja kulture u blizini
- Kuća Jovana Jovanovića Zmaja7 min
- Kuća iz 1797. godine7 min
- Dvorac Marcibanji-Karačonji9 min

Škole/Fakulteti/Vrtići u blizini
- Osnovna škola (Privatna osnovna škola Svitac)8 min
- Srednja škola (Francusko-srpska gimnazija Petar I od Srbije)9 min
- Vrtić (Dečiji vrtić Mala škola)6 min
- Fakultet (Educons Univerzitet)9 min

- Bolnica (Institut za kardiovaskularne bolesti Vojvodine)8 min
- Klinika (Poliklinika Nada Diva)15 min
- Teretana (Joga Yogaja Studio)9 min
- Prodavnica (Expeto market)7 min
- Restoran (Restoran Dinara)19 min
- Kafana (Kafana Tako je suđeno)42 min
- Autobuska stanica (Sremska Kamenica - Paragovski Put - Obilaznica)7 min
- Banka (Poštanska štedionica)7 min
- Pošta (Pošta Sremska Kamenica 21208)7 min
Kontakt oglašivača
Krediti OTP banke
Saznaj više
Prikazana rata odnosi se na maksimalni period otplate. Kalkulator je informativnog karaktera.
* Nakon isteka 5 godina, prelazi se na varijabilnu kamatnu stopu






















