Dvoiposoban stan na prodaju, Sremska Kamenica, 135.820€, 54m²
























135.820 €
2.515 € / m2
- Stan u zgradi
- Podno grejanje
- U izgradnji
- Prostorije: terasa
- Opremljenost: Prazno - internet, interfon, klima
- Oglas oglašava agencija pod reg. brojem 1808
- 1 lift
- Zgrada poseduje: video nadzor
- Kablovska
- 1 telefonska linija
Opis oglasa
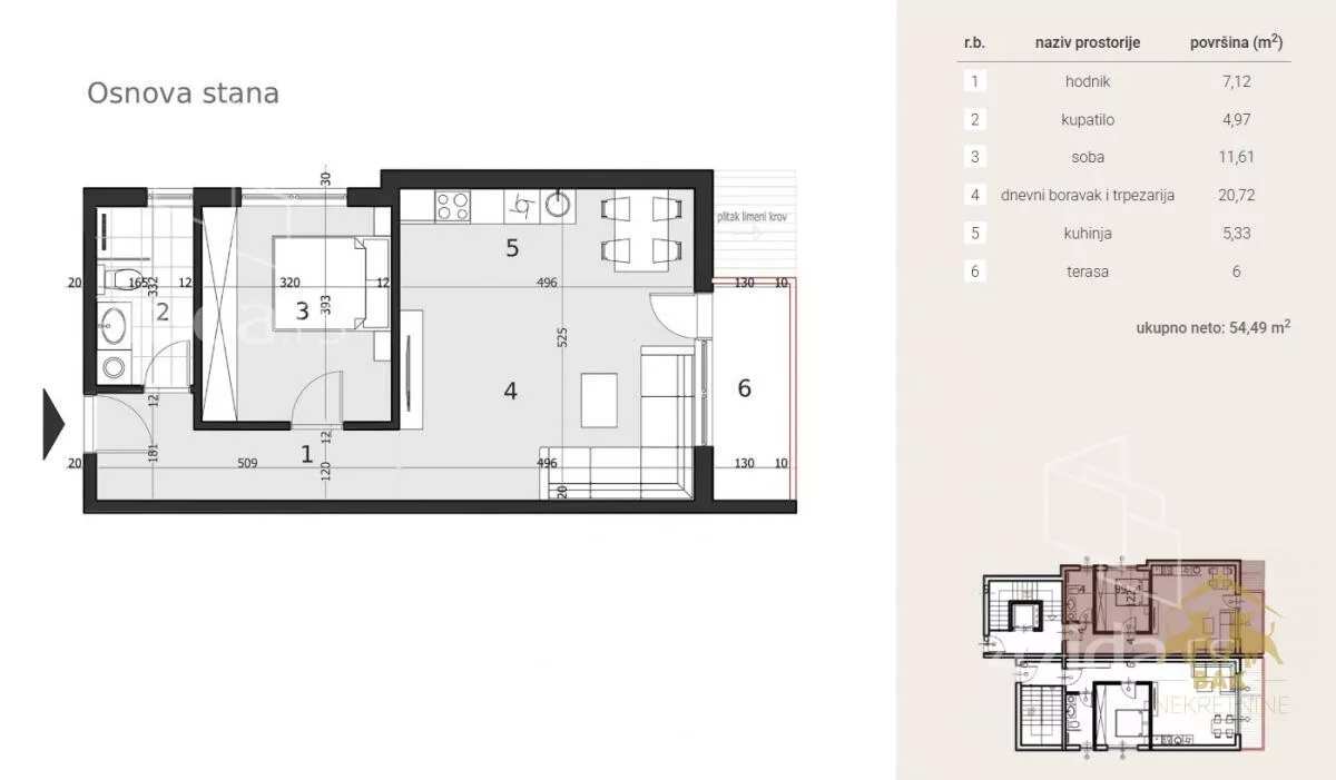
Na jednoj od najtraženijih lokacija na Tatarskom brdu, u mirnom i zelenilom okruženom delu u blizini glavnih saobraćajnica i svih neophodnih sadržaja za savremen život, nalazi se ovaj izuzetno funkcionalan dvoiposoban stan u izgradnji, površine 54 m². Smešten u modernom stambenom kompleksu prepoznatljivog dizajna, ovaj stan pruža savršen spoj komfora, estetike i kvaliteta gradnje. Stan je pažljivo projektovan kako bi maksimalno iskoristio svaki kvadrat, a čine ga prostrani dnevni boravak povezan sa trpezarijom i kuhinjom u otvorenom konceptu, velika i udobna spavaća soba, kupatilo, funkcionalan hodnik i terasa koja pruža prijatan prostor za opuštanje. Poseban akcenat stavljen je na podno grejanje koje obezbeđuje ravnomernu temperaturu i dodatni osećaj luksuza tokom cele godine. Zgrada se izdvaja savremenim arhitektonskim rešenjem sa čistim linijama i elegantnim dizajnom, dok velike staklene površine obezbeđuju obilje prirodne svetlosti i prijatan ambijent. Ugrađena je stolarija najnovije generacije, uz vrhunsku termo i zvučnu izolaciju koja garantuje energetsku efikasnost i mir u prostoru. Enterijer odlikuju kvalitetna keramika i parketi koji doprinose toplini i dugotrajnoj vrednosti stana. Dodatni komfor pružaju smart-home sistemi koji omogućavaju jednostavno upravljanje i veću kontrolu potrošnje energije. U cenu stana uključen je PDV, što ovu ponudu čini posebno atraktivnom za kupce prvog doma koji traže sigurnu i kvalitetnu nekretninu na jednoj od najlepših prigradskih lokacija.
Završetak radova je planiran na proleće 2027.
Za više informacija i rezervaciju, slobodno nas kontaktirajte.
BAK Nekretnine
Kontakt telefon:
065... (prikaži broj telefona)
,
060... (prikaži broj telefona)
,
065... (prikaži broj telefona)
*Sačuvaj oglas uz belešku i primaj obaveštenja o njihovom pojeftinjenju ili pojavljivanju sličnih
Prikaz stana na mapi
Kontakt oglašivača
Krediti OTP banke
Saznaj više
Prikazana rata odnosi se na maksimalni period otplate. Kalkulator je informativnog karaktera.
* Nakon isteka 5 godina, prelazi se na varijabilnu kamatnu stopu






















