Trosoban stan na prodaju, Somborska, 98.000€, 56m²






98.000 €
1.750 € / m2
- Stan u zgradi
- Novo
- Prostorije: terasa
- Opremljenost: Prazno - klima
- Oglas oglašava agencija pod reg. brojem 1596
- 1 garažno mesto
- 1 parking mesto
- 1 lift
- Zgrada poseduje: podrum, video nadzor
Opis oglasa
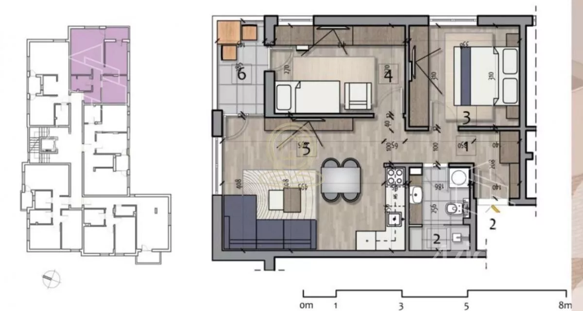
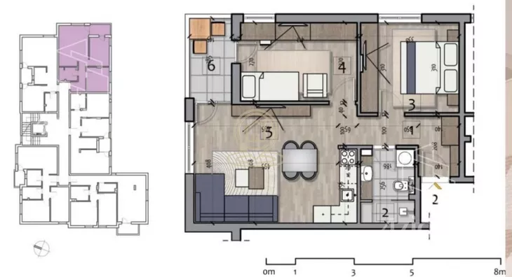
Dvoiposoban stan u izgradnji – 56,27 m² sa balkonom
U ponudi je funkcionalan dvoiposoban stan površine 56,27 m² (sa balkonom), dostupan na I, II i III spratu stambene zgrade sa liftom.
Struktura stana:
• ulazni hodnik
• dnevni boravak sa trpezarijom
• odvojena kuhinja
• dve spavaće sobe (spavaća i dečija soba)
• kupatilo
• balkon
Raspored prostorija je maksimalno iskorišćen, bez suvišnog hodničkog prostora. Dnevni boravak je svetao i komforan, dok su spavaće sobe pravilnog oblika i lako uklopive za nameštaj.
Podovi su predviđeni u višeslojnom parketu u sobama i dnevnom boravku, dok su kuhinja, kupatilo i balkon obloženi kvalitetnom keramikom i granitnom keramikom.
Idealan izbor za mlade parove, manje porodice ili kao investicija za izdavanje.
Radovi gotovi decembra 2026.
Trenutno je moguća jedino gotovinska kupovina.
*Sačuvaj oglas uz belešku i primaj obaveštenja o njihovom pojeftinjenju ili pojavljivanju sličnih
Prikaz stana na mapi
Parkovi u blizini
- Park heroja NOB-a24 min
- Park složnih komšija25 min
- Park Svetog Save26 min

Obeležja kulture u blizini
- Stambol kapija6 min
- Ranohrišćanska grobnica9 min
- Ranohrišćanska bazilika15 min

Škole/Fakulteti/Vrtići u blizini
- Osnovna škola (Osnovna škola Stefan Nemanja)9 min
- Srednja škola (Elektrotehnička škola Nikola Tesla)6 min
- Vrtić (Dečiji vrtić Mazza)17 min
- Fakultet (Univerzitet u Nišu Mašinski fakultet)5 min

- Bolnica (Bolnica Đorić)7 min
- Klinika (Family Medica poliklinika)11 min
- Teretana (Fitness centar Universum)12 min
- Prodavnica (Market Cap Cap)2 min
- Restoran (Restoran Nikolić)8 min
- Kafana (Kafana Stari ambar)14 min
- Taksi stajalište (Cool taksi)14 min
- Autobuska stanica (Sveti Pantelejmon)manje od 1 min
- Banka (Eurobank Direktna)10 min
- Pošta (Pošta Niš 3)4 min
Kontakt oglašivača
Krediti OTP banke
Saznaj više
Prikazana rata odnosi se na maksimalni period otplate. Kalkulator je informativnog karaktera.
* Nakon isteka 5 godina, prelazi se na varijabilnu kamatnu stopu


