Četvorosoban stan na prodaju, Kralja Milana, 1.110.797€, 153m²


1.110.797 €
7.260 € / m2
- Centralno grejanje
- Oglas oglašava agencija pod reg. brojem 339
- 1 telefonska linija
Opis oglasa
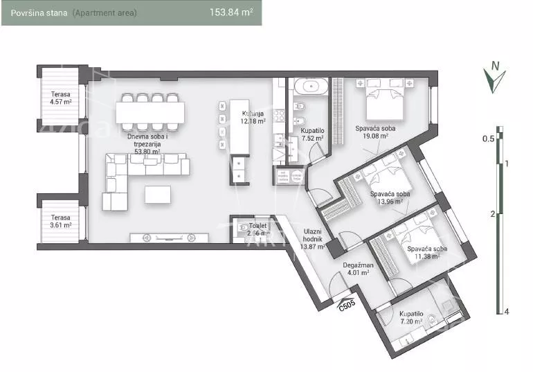
Prodaje se luksuzni stan stan od 153.84 m² u kompleksu King’s Circle Residences na Slaviji, na V spratu reprezentativne zgrade, sa garažnim mestom od 14,9 m² u podzemnoj garaži. Stan je urađen od vrhunskih materijala, po najvišim standardima gradnje u funkciji konfornog I modernig života u centru grada. Oprema i karakteristike stana i zgrade: - Sigurnosna ulazna vrata pune visine. - Sobna vrata visine 240 cm - Višeslojni mat-lak parket - Keramika u mokrim čvorovima Ariostea. - Sanitarije Geberit Duo Fix ugradni vodokotlići, Villeroy & Boch (V&B Subway, Subway 2.0, Finion, Architectura). - tuš setovi Hansgrohe Ecostat S / Raindance, kabine od 8 mm „extra clear” kaljenog stakla. - Spoljna stolarija Reynaers ili Schüco sa troslojnim staklom - Podno grejanje u celom stanu + fan coil uređaji, grejanje i hlađenje preko LG vazduh–voda toplotne pumpe. - Putnički liftovi Schindler, Kone ili Otis. - centralni prekidač rasvete kod ulaza u stan, elektrogalanterija Legrand ili Vimar (Living Now). - Spa centar u sklopu kompleksa: bazen, saune, tursko kupatilo, teretana sa opremom Technogym, muške i ženske svlačionice sa tuševima. - Garaža sa numerisanim i ofarbanim parking-mestima, okrečenim zidovima i dodatno zaštićenim stubovima i ćoškovima. Uz stan obavezna kupovina garažnog mesta po ceni od 60.000eur. Stan predstavlja idealan izbor za kupce koji traže maksimalni komfor, sigurnost i prestižnu lokaciju u srcu grada. Agencijska provizija 2% Agent: Maja Vodovar, br. licence:3684 "Art nekretnine" d.o.o. Beograd Reg. br.339 011... (prikaži broj telefona) MV04 .
*Sačuvaj oglas uz belešku i primaj obaveštenja o njihovom pojeftinjenju ili pojavljivanju sličnih
Prikaz stana na mapi
Parkovi u blizini
- Manjež3 min
- Park Mitićeva rupa6 min
- Park Aleksandrov8 min

Obeležja kulture u blizini
- Fontana na Cvetnom trgu2 min
- Spomenik Borislavu Pekiću1 min
- Zadužbina Branka Ćopića3 min

Škole/Fakulteti/Vrtići u blizini
- Osnovna škola (Osnovna škola Petar Petrović Njegoš)5 min
- Srednja škola (Savremena gimnazija)3 min
- Vrtić (Dečiji vrtić Terazije)4 min
- Fakultet (Univerzitet u Beogradu Fakultet muzičke umetnosti)manje od 1 min

- Bolnica (Klinika za urologiju)5 min
- Klinika (Diva estetic dr Bogdanović - dermatološka ordinacija)5 min
- Teretana (Muscle Planet Gym)6 min
- Prodavnica (Maxi Supermarket)2 min
- Restoran (Restoran Beograd)1 min
- Kafana (Beer bar Tri kralja)3 min
- Taksi stajalište (Taxi stanica)6 min
- Autobuska stanica (Cvetni Trg)4 min
- Tramvajska stanica (RK „Beograđanka”)2 min
- Trolejbuska stanica (RK „Beograđanka“)3 min
- Banka (OTP banka)5 min
- Pošta (Pošta Beograd 113)1 min
Kontakt oglašivača
Stambeni krediti

- Period otplate od
96 -360 meseca
- NKS 4.75%
EKS 5.74%
Fiksna kamatna stopa
- Bez troškova obrade kredita
Za iznos kredita preko 300000 € poseti sajt banke.
Saznaj višestranici kreditnih kalkulatora
Keš krediti
Period otplate
13 meseci




















