Dvoiposoban stan na prodaju, Škola, 154.470€, 63m²








154.470 €
2.452 € / m2
- Stan u zgradi
- Novo
- Prostorije: ostava, terasa
- Opremljenost: Prazno - internet, interfon, klima, kanalizacija
- Oglas oglašava agencija pod reg. brojem 2125
- 1 garažno mesto
- 1 parking mesto
- 1 lift
- Kanalizacija
- Godina izgradnje: 2027.
- Zgrada poseduje: podrum, lođa, video nadzor
- Kablovska
- 1 telefonska linija
Opis oglasa
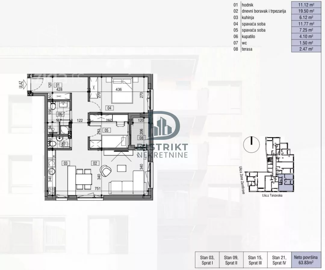
Prodaje se nov, funkcionalan trosoban stan u izgradnji, kod Palilulske pijace, u okviru moderne novogradnje visokog kvaliteta. Površina stana je 63.83m2, dostupan je na drugom spratu i istočne je orijentacije. Sama zgrada odlikuje se vrhunskim materijalima i savremenim tehničkim rešenjima: ugrađuje se kvalitetna stolarija sa troslojnim staklom punjenim argonom, kao i termoizolacione roletne na električni pogon. Podovi su obloženi troslojnim parketom velikog formata, uz elegantne bele lajsne visine 8–10 cm, dok je keramika takođe velikog formata, pažljivo odabrana za moderan izgled enterijera. U svim kupatilima ugrađuje se kvalitetna uvozna sanitarija kao smart slim bojleri. Posebna pažnja posvećena je energetskoj efikasnosti objekta — fasada je ventilisana i izrađena od visokokvalitetnih Swisspearl ploča. Grejanje je etažno, svaki stan poseduje sopstveni kotao sa smart sistemom, a ugradjuju se i inverter klime. Stan se sastoji iz ulaznog hodnika, komforne dnevne sobe sa kuhinjom i trpezarijom, spavaće sobe, dečije sobe, kupatila, toaleta i terase. Zgrada će posedovati video nadzor i video interfon, pružajući dodatnu sigurnost i komfor stanarima. Ulazni lobi biće moderno dizajniran i obložen kvalitetnim materijalima, u skladu sa savremenim arhitektonskim standardima. Lokacija je izuzetno atraktivna i praktična za svakodnevni život. U neposrednoj blizini nalaze se marketi, pijaca, apoteke i svi neophodni sadržaji, dok je park Čair udaljen svega oko 5 minuta lagane šetnje, kao i pešačka zona u centru grada koja je dostupna za 7–8 minuta hoda. U cenu stana uračunat je PDV i kupci prvog stana imaju pravo povraćaja u iznosu od 10%. Hvala Vam što ste pogledali oglas. Ovo je samo deo naše ponude, za više informacija kontaktirajte agenta na broj telefona 061... (prikaži broj telefona) . Agencija Distrikt nekretnine je upisana u Registar posrednika pod rednim brojem: 2125.
*Sačuvaj oglas uz belešku i primaj obaveštenja o njihovom pojeftinjenju ili pojavljivanju sličnih
Prikaz stana na mapi
Parkovi u blizini
- Park Čair8 min
- Park heroja NOB-a13 min
- Park složnih komšija20 min

Obeležja kulture u blizini
- Vladičanski dvor4 min
- Donina česma4 min
- Spomenik Stevanu Sremcu i Kalči7 min

Škole/Fakulteti/Vrtići u blizini
- Osnovna škola (Osnovna škola Učitelj Tasa)2 min
- Srednja škola (Privatna srednja škola Prokopović)7 min
- Vrtić (Dečiji centar Bambini 2)2 min
- Fakultet (Alfa BK Univerzitet)8 min

- Bolnica (Urgentni centar Niš)5 min
- Klinika (Poliklinika Longa Vita)4 min
- Teretana (Centar za rekreaciju Miss Fit Line)1 min
- Prodavnica (IDEA)3 min
- Restoran (Kafana Palilulski dukat)2 min
- Kafana (Pivnica Nemir)4 min
- Taksi stajalište (Bros Taxi Niš)10 min
- Autobuska stanica (Episkopska)3 min
- Banka (NLB Komercijalna banka)2 min
- Pošta (Pošta Niš 5)4 min
Kontakt oglašivača
Krediti OTP banke
Saznaj više
Prikazana rata odnosi se na maksimalni period otplate. Kalkulator je informativnog karaktera.
* Nakon isteka 5 godina, prelazi se na varijabilnu kamatnu stopu


