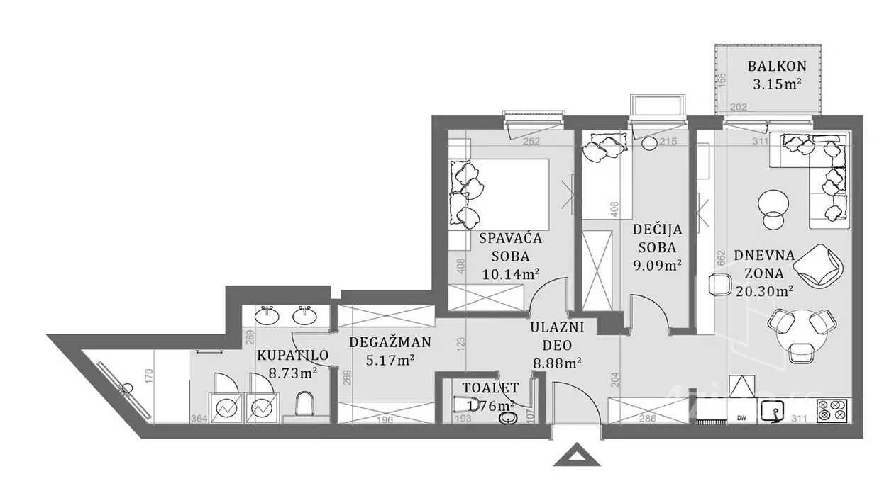
Troiposoban stan na prodaju, Evgenija Kumičića, 107.200€, 67m²








107.200 €
1.600 € / m2
- Stan u zgradi
- Grejanje na gas
- U izgradnji
- Prostorije: kupatilo, toalet, terasa
- U procesu uknjižavanja
- Oglas oglašava agencija pod reg. brojem 2054
- 3 lifta
Opis oglasa
0% provizije za kupce!!!!
Stan u novogradnji površine 67,25m2 cena 107600€ koji se sastoji od dnevnog boravka sa kuhinjom i trpezarijom, dve spavaće sobe,kupatila, toaleta i terase. Stan će imati podno grejanje koje se ističe niskim troškovima grejanja na prirodni gas, kvalitetnu PVC stolariju sa troslojnim niskoemisionim staklom i PVC roletnom. Zidovi su izgrađeni od termoblokova najviših izolacijskih svojstava + fasadna izolacija.Pregradni zidovi izgrađeni su od opeke. Na podovima će biti tarket podne obloge u sobama i trpezariji, a keramika I klase u kupatilima i kuhinji. U kupatilu tuš paravani od kaljenog stakla i linijski slivnici i ugradni vodokotlići. Stan će imati sigurnosna ulazna vrata,optički priključak,interfon iinstalacije za klimu. garazna mesta 12000 eur
Završetak radova kraj 2026. godine.
*Sačuvaj oglas uz belešku i primaj obaveštenja o njihovom pojeftinjenju ili pojavljivanju sličnih
Prikaz stana na mapi
Parkovi u blizini
- Park Prozivka12 min
- Park Rajhl Ferenca14 min
- Park Dudova šuma29 min

Obeležja kulture u blizini
- Spomenik Prozivka9 min
- Spomenik Ivanu Sariću11 min
- Spomenik Aleksandru Lifki14 min

Škole/Fakulteti/Vrtići u blizini
- Osnovna škola (Osnovna škola Sonja Marinković)4 min
- Srednja škola (Tehnička škola Ivan Sarić)9 min
- Vrtić (Dečiji vrtić Pera Detlić)6 min
- Fakultet (Pravni fakultet za privredu i pravosuđe Univerzitet Privredna akademija)8 min

- Bolnica (Bolnica Sveti Stefan)13 min
- Klinika (Poliklinika Kuća zdravlja)7 min
- Teretana (EMS Studio Maxifit)5 min
- Prodavnica (PerSu market)3 min
- Restoran (Gostionica Petica)4 min
- Kafana (Pub Liverpool)12 min
- Autobuska stanica (Kerska Crkva)6 min
- Banka (ProCredit Bank)11 min
- Pošta (Pošta Subotica 11)5 min
Kontakt oglašivača
Krediti OTP banke
Saznaj više
Prikazana rata odnosi se na maksimalni period otplate. Kalkulator je informativnog karaktera.
* Nakon isteka 5 godina, prelazi se na varijabilnu kamatnu stopu


