Četvorosoban stan na prodaju, Fruškogorski Put 27, 400.000€, 167m²










400.000 €
2.395 € / m2
- Penthaus
- Podno grejanje
- U izgradnji
- Prostorije: kupatila (3+), toaleti (2), kuhinja, ostava, terase (2)
- Opremljenost: Prazno - internet
- Uknjiženo
- Kupovina direktno od vlasnika
- 1 garažno mesto, garaža u sklopu zgrade
- 2 parking mesta
- 1 lift
- Godina izgradnje: 2026.
- Zgrada poseduje: dvorište, alarm, podrum, sauna, lođe (2), fitnes, recepcija, video nadzor
- Tip interneta: optički
- Kablovska
Opis oglasa
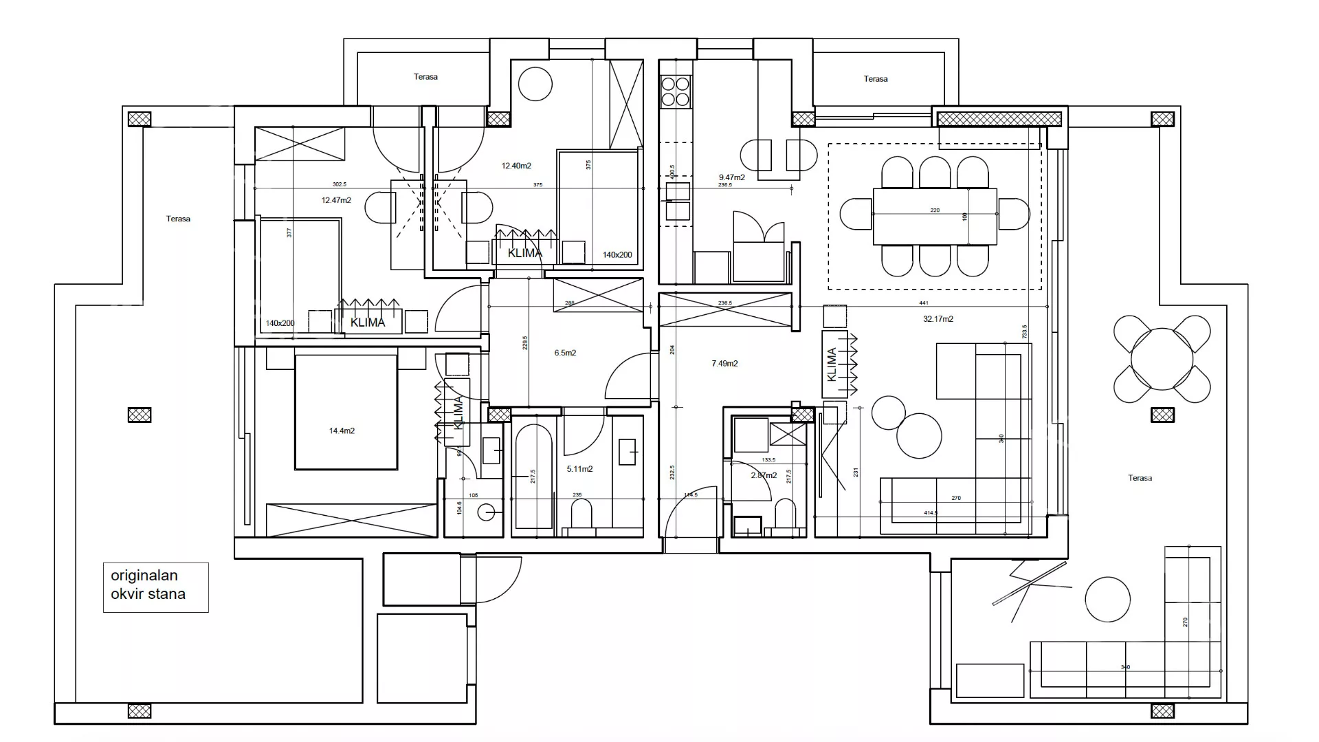
🏡 Penthouse sa savršenim pogledom 107 m² + dve terase (po 30 m²) – Royal Residency, Popovica
Prodaje se luksuzan penthouse sa tri spavaće sobe u okviru zatvorenog kompleksa Royal Residency Popovica, svega 4 km od centra Novog Sada, a par stotina metara od novog mosta.
Stan je u završnoj fazi gradnje, kompleks je useljiv na proleće 2026. godine, i poseduje dve garaže ukupne površine 40 m² (jedna do druge, uz direktan pristup liftu).
✅ Raspored prostora
- Prostran dnevni boravak sa trpezarijom i kuhinjom, sa izlazom na veliku terasu s panoramskim pogledom na Frušku goru.
- Tri spavaće sobe, glavna sa sopstvenim izlazom na drugu terasu + kupatilo sa tuš kabinom.
- Kupatilo sa ugradnim tušem i premium keramikom, dodatni toalet u hodniku.
- Predsoblje i ostava sa dovoljno prostora za odlaganje.
- Dve terase ukupne površine oko 60 m², savršene za uređenje letnje trpezarije i lounge zone.
Stan je izvođen u najvišem standardu od osnovnog investitorskog — postavljena je keramika višeg kvaliteta, ugradni tuš sistem, kao i odlični podovi i unutrašnja stolarija. Podno grejanje u stanu + moderan bezbednosni sistem ulaznih vrata i smart koncept u celom stanu.
🌿 Kompleks Royal Residency
Royal Residency je zatvoreno, luksuzno naselje sa bazenima, zelenilom i 24h obezbeđenjem.
Kompleks obuhvata više od 2.000 m² zelenih površina, bazene za svaku lamelu, dečje igralište, šetališta i portirnicu sa fizičkim i tehničkim nadzorom.
Arhitektonski je projektovan po kaskadnom sistemu, čime je svakom stanu omogućen pogled na grad i Frušku goru.
Cena 400.000 eur sa garažnim mestima. Dodatne informacije na upit.
*Sačuvaj oglas uz belešku i primaj obaveštenja o njihovom pojeftinjenju ili pojavljivanju sličnih
Prikaz stana na mapi
Parkovi u blizini
- Kamenički park25 min
- Park prirode Instituta u Sremskoj Kamenici30 min
- Limanski park45 min

Obeležja kulture u blizini
- Dvorac Marcibanji-Karačonji4 min
- Kuća iz 1797. godine10 min
- Kuća Jovana Jovanovića Zmaja15 min

Škole/Fakulteti/Vrtići u blizini
- Osnovna škola (Osnovna škola Jovan Jovanović Zmaj)4 min
- Srednja škola (Francusko-srpska gimnazija Petar I od Srbije)5 min
- Vrtić (Dečiji vrtić Zmaj)9 min
- Fakultet (Educons Univerzitet)5 min

- Bolnica (Kovid bolnica Novi Sad)9 min
- Klinika (Poliklinika Nada Diva)14 min
- Teretana (Joga Yogaja Studio)6 min
- Prodavnica (Supermarket Univerexport)4 min
- Restoran (Restoran Dinara)13 min
- Kafana (Kafana Tako je suđeno)32 min
- Taksi stajalište (Taxi Maxi Novosađani)49 min
- Autobuska stanica (Popovica - Fruškogorski Put - Staroiriški Put)manje od 1 min
- Banka (Poštanska štedionica)14 min
- Pošta (Pošta Sremska Kamenica 21208)11 min
Kontakt oglašivača
Stambeni krediti
- Period otplate od
96 -360 meseca
- NKS 4.50%
EKS 5.74%
Fiksna kamatna stopa
- Bez troškova obrade kredita
- Period otplate od
96 -360 meseca
- NKS 4.34%
Kombinovana kamatna stopa
- Bez troškova obrade kredita
- Odobrenje kredita do 48h
stranici kreditnih kalkulatora
Keš krediti
Period otplate
13 meseci- Period otplate od 13 -71 mesec
- NKS 10.55%
- EKS od 10.87%
- Za klijente banke
mesečno
