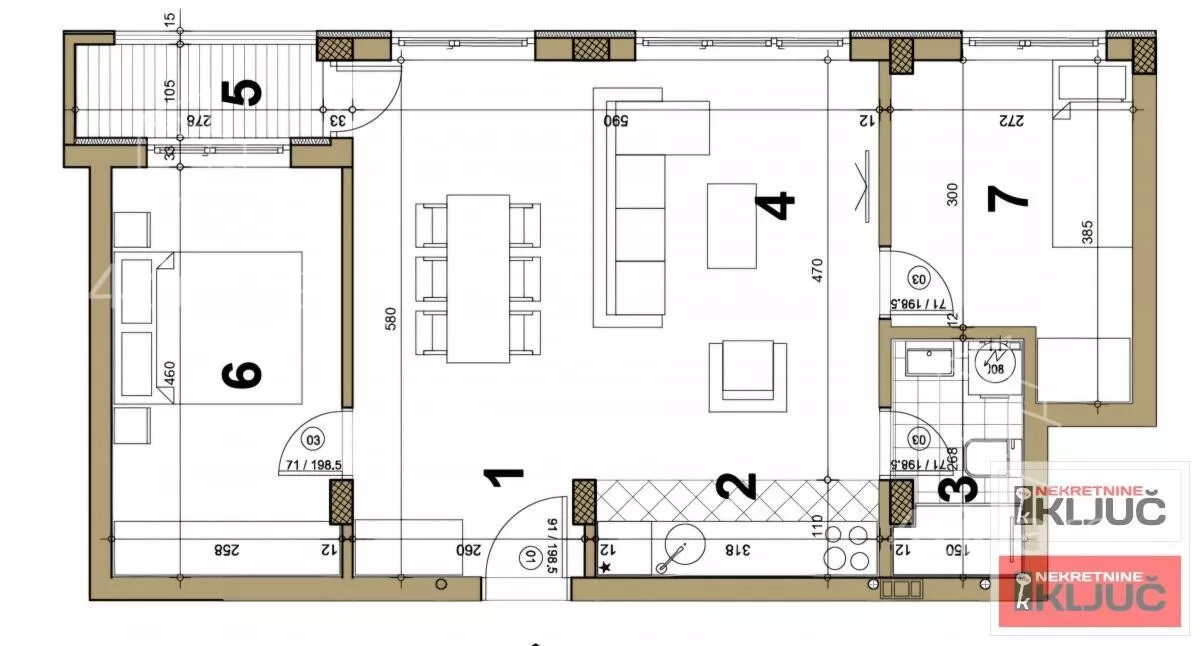
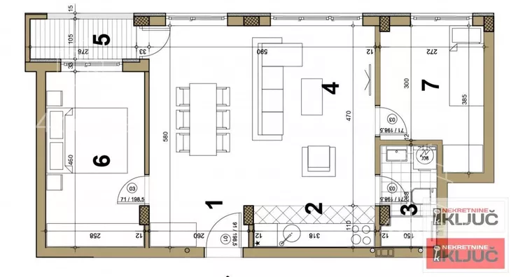
Trosoban stan na prodaju, Podbara, 175.930€, 61m²


175.930 €
2.884 € / m2
- Stan u zgradi
- Etažno grejanje
- Novo
- Prostorije: terasa
- Opremljenost: Prazno - internet, interfon
- Oglas oglašava agencija pod reg. brojem 360
- 1 lift
- Kablovska
- 1 telefonska linija
Opis oglasa
Prodaje se 3.0 stan u NOVOM SADU, PODBARA površine 61m2. Stan je nov. Extra kvalitetna novogradnja u blizini svih potrebnih sadržaja za život, škola, vrtić, pijaca, marketi kao i ostali sadržaji. Odlično je povezan sa ostalim delovima grada. Mirna ulica. Vrhunski kvalitet gradnje i opreme. Stan je moguće kupiti i putem stambennog kredita. Cena stana je sa pdv. Agencijska provizija uračunata u cenu stana. Pozovite da pogledate.
*Sačuvaj oglas uz belešku i primaj obaveštenja o njihovom pojeftinjenju ili pojavljivanju sličnih
Prikaz stana na mapi
Parkovi u blizini
- Park srpsko-azerbejdžanskog prijateljstva11 min
- Dunavski park14 min
- Železnički park27 min

Obeležja kulture u blizini
- Spomen ploča Albertu Ajnštajnu i Milevi Marić4 min
- Spomenik Kralju Petru I Karađorđeviću4 min
- Vladičanski dvor5 min

Škole/Fakulteti/Vrtići u blizini
- Osnovna škola (Osnovna škola Ivan Gundulić)6 min
- Srednja škola (Gimnazija Živorad Janković)6 min
- Vrtić (Dečiji vrtić Sigridrug)3 min
- Fakultet (Univerzitet u Novom Sadu Akademija umetnosti)6 min

- Bolnica (Bolnica za bolesti zavisnosti Vita)5 min
- Klinika (Poliklinika Novakov)4 min
- Teretana (Teretana Podbara Gym)5 min
- Prodavnica (Supermarket Univerexport)3 min
- Restoran (Restoran Kafanica)4 min
- Kafana (Dukat Fensi Kafana)4 min
- Taksi stajalište (MB Taxi)17 min
- Autobuska stanica (Marka Miljanova - Kosovska)4 min
- Banka (OTP banka)6 min
- Pošta (Pošta Novi Sad 21104)7 min
Kontakt oglašivača
Krediti OTP banke
Saznaj više
Prikazana rata odnosi se na maksimalni period otplate. Kalkulator je informativnog karaktera.
* Nakon isteka 5 godina, prelazi se na varijabilnu kamatnu stopu


