Trosoban stan na prodaju, Petrovaradin, 153.070€, 59m²


















153.070 €
2.594 € / m2
- Stan u zgradi
- U izgradnji
- Prostorije: terasa
- Oglas oglašava agencija pod reg. brojem 1808
- 1 parking mesto
Opis oglasa
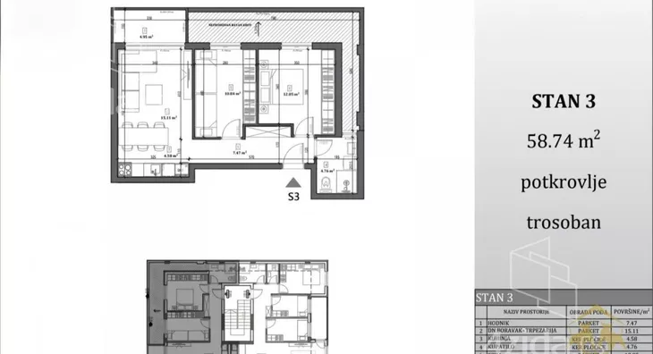
U ponudi je trosoban stan u izgradnji, smešten na atraktivnoj i mirnoj lokaciji u Petrovaradinu, idealnoj za one koji žele da žive u prijatnom okruženju, a da su istovremeno na svega nekoliko minuta od centra grada. Ovaj deo naselja karakteriše porodična atmosfera, manje stambene zgrade i dobra infrastruktura, sa svim važnim sadržajima u blizini, od prodavnica i škola do vrtića i linija gradskog prevoza. Stan ima 59 m² i odlikuje se vrlo praktičnim rasporedom prostorija. Ulazni hodnik vodi ka svim delovima stana, čime je postignuta dobra organizacija prostora i odvojenost dnevne i noćne zone. Dnevni boravak sa kuhinjom i trpezarijom čini funkcionalnu i skladnu celinu, osmišljenu kao centralno mesto okupljanja i boravka. Veliki prozori omogućavaju dosta prirodne svetlosti, dok izlaz na terasu dodatno proširuje životni prostor i pruža mogućnost uživanja na otvorenom. Dve spavaće sobe nude dovoljno prostora za udoban porodični život. Kupatilo je racionalno projektovano kako bi zadovoljilo sve potrebe savremenog domaćinstva. Ovaj stan predstavlja odličan izbor za mlade parove, porodice ili kupce koji traže nekretninu dobrog rasporeda na mirnoj lokaciji. Spoj kvalitetne gradnje, funkcionalnosti i tražene lokacije čini ga sigurnom i dugoročno isplativom investicijom.
Za više informacija kao i za razgledanje stana slobodno nas kontaktirajte.
Kontakt telefoni:
065... (prikaži broj telefona)
,
060... (prikaži broj telefona)
,
065... (prikaži broj telefona)
BAK Nekretnine
*Sačuvaj oglas uz belešku i primaj obaveštenja o njihovom pojeftinjenju ili pojavljivanju sličnih
Prikaz stana na mapi
Parkovi u blizini
- Limanski park17 min
- Kamenički park37 min
- Futoški park38 min

Obeležja kulture u blizini
- Kuća Jovana Jovanovića Zmaja5 min
- Kuća iz 1797. godine5 min
- Dvorac Marcibanji-Karačonji7 min

Škole/Fakulteti/Vrtići u blizini
- Osnovna škola (Privatna osnovna škola Svitac)5 min
- Srednja škola (Francusko-srpska gimnazija Petar I od Srbije)38 min
- Vrtić (Dečiji vrtić Plavi čuperak)4 min
- Fakultet (Educons Univerzitet)38 min

- Klinika (NK Poliklinika)10 min
- Teretana (Joga Yogaja Studio)5 min
- Prodavnica (Supermarket Univerexport)20 min
- Restoran (Restoran Mali Niš)19 min
- Kafana (Točionica Pab)19 min
- Taksi stajalište (Taxi Maxi Novosađani)23 min
- Autobuska stanica (Štrand - Okretnica)22 min
- Banka (Poštanska štedionica)5 min
- Pošta (Pošta Sremska Kamenica 21202)41 min
Kontakt oglašivača
Krediti OTP banke
Saznaj više
Prikazana rata odnosi se na maksimalni period otplate. Kalkulator je informativnog karaktera.
* Nakon isteka 5 godina, prelazi se na varijabilnu kamatnu stopu






















