Jednosoban stan na prodaju, Petrovaradin, 84.860€, 32m²
Petrovaradin, Gradske lokacije, Novi Sad
Prikaži mapuŠifra oglasa: 4zida-5725Oglas ažuriran: 16.03.2026.


84.860 €
2.652 € / m2
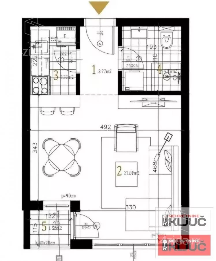
32 m²
1 soba
1/4 sprata
- Stan u zgradi
- Etažno grejanje
- Novo
- Prostorije: terasa
- Opremljenost: Prazno - internet, interfon
- Oglas oglašava agencija pod reg. brojem 360
- 1 lift
- Kablovska
- 1 telefonska linija
Opis oglasa
Prodaje se 1.0 stan u PETROVARADINU, površine 32m2.Stan je u izgradnji.Renomirani investitor.Moguća kupovina na kredit uz mogučnost povrata pdv za kupce prvog stana.Nalazi se u blizini svih sadržaja za porodični život kao i autobuskih linija za grad.Vredi pozvati i pogledati stan.
*Sačuvaj oglas uz belešku i primaj obaveštenja o njihovom pojeftinjenju ili pojavljivanju sličnih
Prikaz stana na mapi
Parkovi u blizini
- Kamenički park10 min
- Limanski park14 min
- Park prirode Instituta u Sremskoj Kamenici26 min

Obeležja kulture u blizini
- Kuća Jovana Jovanovića Zmaja5 min
- Kuća iz 1797. godine5 min
- Dvorac Marcibanji-Karačonji7 min

Škole/Fakulteti/Vrtići u blizini
- Osnovna škola (Privatna osnovna škola Svitac)5 min
- Srednja škola (Francusko-srpska gimnazija Petar I od Srbije)11 min
- Vrtić (Dečiji vrtić Plavi čuperak)4 min
- Fakultet (Educons Univerzitet)11 min

Zdravlje
- Bolnica (Kovid bolnica Novi Sad)37 min
- Klinika (NK Poliklinika)10 min
- Teretana (Joga Yogaja Studio)5 min
Hrana i piće
- Prodavnica (Supermarket Univerexport)13 min
- Restoran (Restoran Davna vremena)13 min
- Kafana (Kafana Tako je suđeno)9 min
Prevoz
- Taksi stajalište (Taxi Maxi Novosađani)17 min
- Autobuska stanica (Sremska Kamenica - Univerzitet)10 min
Ostale ustanove
- Banka (Poštanska štedionica)5 min
- Pošta (Pošta Sremska Kamenica 21202)13 min
Kontakt oglašivača
▾Reklama▾
Krediti OTP banke
Bez troškova obrade kredita
NKS 4.50% - EKS 5.74%
Period otplate 96 -360 meseca
Saznaj više
Prikazana rata odnosi se na maksimalni period otplate. Kalkulator je informativnog karaktera.
* Nakon isteka 5 godina, prelazi se na varijabilnu kamatnu stopu
Osiguranje domaćinstva online
Osiguraj svoje domaćinstvo u slučaju požara...


