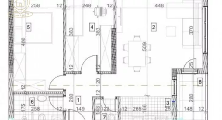
Četvorosoban stan na prodaju, Petrovaradin, 189.400€, 88m²








189.400 €
2.152 € / m2
- Penthaus
- Grejanje na gas
- Novo
- Prostorije: terasa
- Opremljenost: Prazno - internet, interfon, klima
- Oglas oglašava agencija pod reg. brojem 1596
- 1 garažno mesto
- 1 parking mesto
- 1 lift
- Zgrada poseduje: video nadzor
- Kablovska
- 1 telefonska linija
Opis oglasa
Prodaja stanova Novi Sad – Novogradnja sa jednosobnim, dvosobnim, trosobnim i četvorosobnim stanovima
Kompas agencija
U ponudi je prodaja stanova u Novom Sadu u savremenom višeporodičnom stambenom kompleksu (Po+P+3+Pk), na odličnoj lokaciji, idealnoj za porodično stanovanje ili kao investicija za izdavanje.
Objekat se sastoji od 86 stambenih jedinica i 86 garažnih mesta, sa planiranim završetkom radova 30. aprila 2027. godine. U ponudi su jednosobni, dvosobni, trosobni i četvorosobni stanovi, površina od 29 m² do 101 m², prilagođeni različitim potrebama kupaca.
Ova novogradnja predstavlja vrhunsku ponudu u okviru prodaja stanova Novi Sad, kako za krajnje kupce, tako i za investitore.
Osnovne informacije – prodaja stanova Novi Sad (novogradnja)
Tip nekretnine: novogradnja – stambeni kompleks
Spratnost: Po + P + 3 + Pk
Broj stanova: 86 stambenih jedinica
Garaže: 86 garažnih mesta
Površine stanova: 29 m² – 101 m²
Strukture: jednosobni, dvosobni, trosobni i četvorosobni stanovi
Planirani završetak: 30.04.2027.
Namena: porodično stanovanje / investicija za izdavanje
Cene izražene sa PDV-om
Agencijska provizija je uračunata u cenu
Mogućnost kupovine na kredit
U slučaju kupovine putem kredita, cena kvadrata je viša za 100 €/m²
Tehničke karakteristike objekta
Grejanje na gas – individualno po stanu, veoma ekonomično
Šestokomorna PVC stolarija nemačkog profila – DIKIĆ
Sigurnosna vrata čelične konstrukcije, prirodna boja drveta – PORTA NS
Staklene ograde na balkonima
Troslojni Tarkett parket 14 mm sa kraljevskom lajsnom (6 cm)
Geberit skriveni vodokotlić
Gorenje bojler 80 L
Demit fasada sa 10 cm termoizolacije
Betonska krovna ploča 20 cm + kamena vuna 20 cm
Kvalitet gradnje i energetska efikasnost
Ova novogradnja u Novom Sadu nudi savremeni kvalitet gradnje, odličnu zvučnu i toplotnu izolaciju, moderan dizajn i visoku energetsku efikasnost.
Svaki stan ima zasebno grejanje na gas, moderan enterijer i dugoročnu vrednost, što dodatno povećava isplativost u okviru prodaja stanova Novi Sad i budućeg izdavanja stanova Novi Sad.
Lokacija – odlična lokacija Novi Sad
Objekat se nalazi na odličnoj lokaciji u Novom Sadu, u blizini:
škola i vrtića
prodavnica i marketa
javnog prevoza
svih bitnih gradskih sadržaja
Lokacija čini ove stanove idealnim kako za porodični život, tako i kao sigurnu investiciju u okviru prodaja stanova Novi Sad.
Napomene
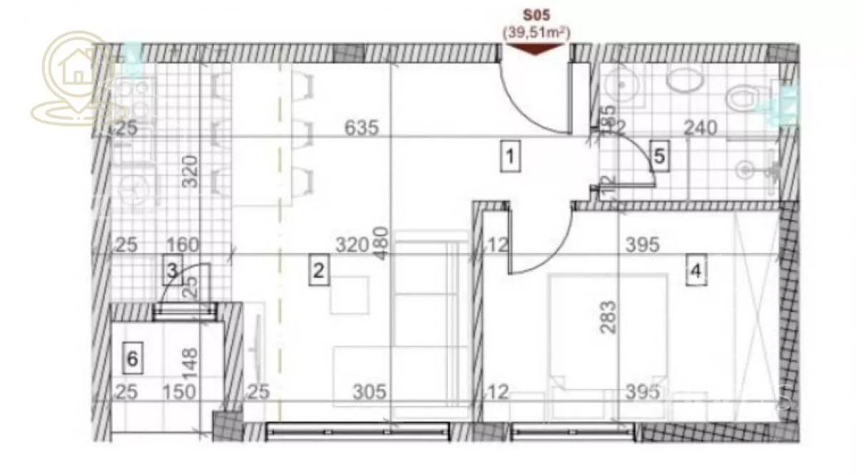
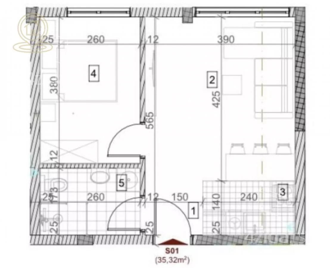
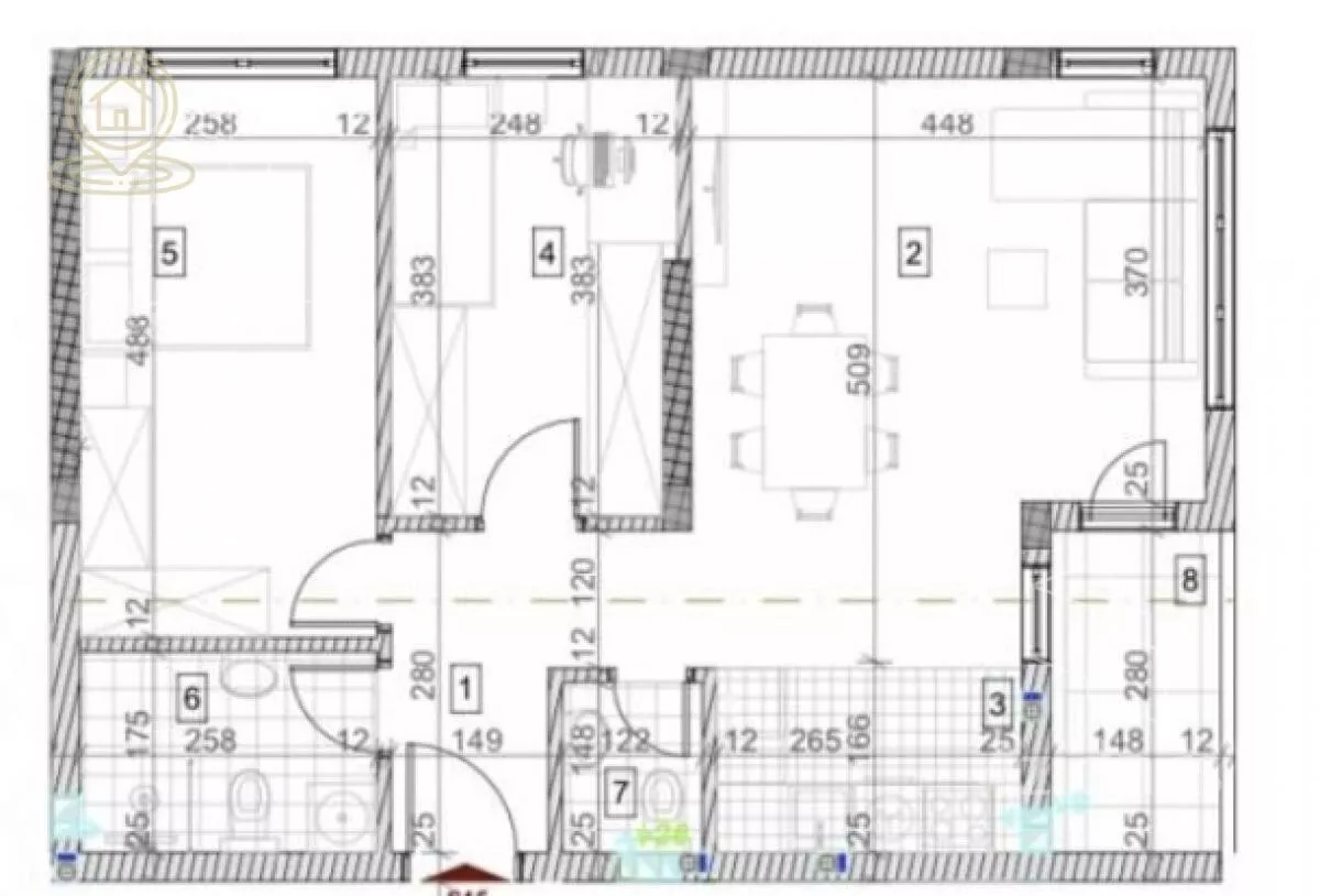
Skice stanova dostupne nakon potpisivanja ugovora
Skice iz oglasa ne odgovaraju konkretnom stanu
Cene su izražene sa PDV-om
Agencijska provizija je uračunata u cenu
Moguća kupovina putem stambenog kredita (+100 €/m²)
*Sačuvaj oglas uz belešku i primaj obaveštenja o njihovom pojeftinjenju ili pojavljivanju sličnih
Prikaz stana na mapi
Kontakt oglašivača
Krediti OTP banke
Saznaj više
Prikazana rata odnosi se na maksimalni period otplate. Kalkulator je informativnog karaktera.
* Nakon isteka 5 godina, prelazi se na varijabilnu kamatnu stopu


