Četvorosoban stan na prodaju, Petrovaradin, 186.710€, 86m²




186.710 €
2.171 € / m2
- Stan u zgradi
- Grejanje na gas
- U izgradnji
- Prostorije: terasa
- Oglas oglašava agencija pod reg. brojem 1020
- 1 lift
Opis oglasa
Agencijska šifra: 1007845.
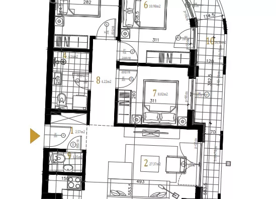
Prodaje se četvorosoban stan na četvrtom spratu zgrade u izgradnji sa liftom, u mirnom kraju Petrovaradina. Rok izgradnje ove zgrade je 30.04.2027. godine. Investitor je pouzdan i kvalitetan sa bogatim iskustvom stambene gradnje. Ovu zgradu karakteriše energetski pasoš B kategorije, uz vrhunske materijale koji se koriste u izgradnji: nemački profil stolarije, kvalitetni parketi i tarketi, sigurnosna vrata, demit fasada. Grejanje je na gas putem kalolimetara. Lokacija je mirna, bez puno saobraćaja a opet u neposrednoj blizini svih sadržaja za lagodan svakodnevni život. Moguć povrat PDV-a. Pozovite za više informacija.
Berza nekretnine, Novi Sad, reg broj posrednika 1020
*Sačuvaj oglas uz belešku i primaj obaveštenja o njihovom pojeftinjenju ili pojavljivanju sličnih
Prikaz stana na mapi
Parkovi u blizini
- Limanski park17 min
- Kamenički park37 min
- Futoški park38 min

Obeležja kulture u blizini
- Kuća Jovana Jovanovića Zmaja5 min
- Kuća iz 1797. godine5 min
- Dvorac Marcibanji-Karačonji7 min

Škole/Fakulteti/Vrtići u blizini
- Osnovna škola (Privatna osnovna škola Svitac)5 min
- Srednja škola (Francusko-srpska gimnazija Petar I od Srbije)38 min
- Vrtić (Dečiji vrtić Plavi čuperak)4 min
- Fakultet (Educons Univerzitet)38 min

- Klinika (NK Poliklinika)10 min
- Teretana (Joga Yogaja Studio)5 min
- Prodavnica (Supermarket Univerexport)20 min
- Restoran (Restoran Mali Niš)19 min
- Kafana (Točionica Pab)19 min
- Taksi stajalište (Taxi Maxi Novosađani)23 min
- Autobuska stanica (Štrand - Okretnica)22 min
- Banka (Poštanska štedionica)5 min
- Pošta (Pošta Sremska Kamenica 21202)41 min
Kontakt oglašivača
Krediti OTP banke
Saznaj više
Prikazana rata odnosi se na maksimalni period otplate. Kalkulator je informativnog karaktera.
* Nakon isteka 5 godina, prelazi se na varijabilnu kamatnu stopu


