Jednoiposoban stan na prodaju, Pantelej, 84.531€, 44m²












84.531 €
1.921 € / m2
- Stan u zgradi
- Podno grejanje
- Novo
- Prostorije: ostava, terasa
- Opremljenost: Prazno - interfon, klima
- Oglas oglašava agencija pod reg. brojem 1596
- 1 parking mesto
- 1 lift
- Zgrada poseduje: podrum, video nadzor
Opis oglasa
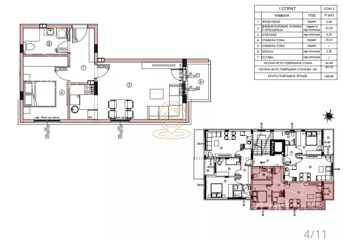
Na prodaju jednoiposoban stan u kvalitetnoj novogradnji na Panteleju. Dostupan na I, II, III i IV spratu stambene zgrade sa liftom.
Kvadratura: 44,49m²
Sastoji se od:
-predsoblja
-dnevne sobe sa trpezarijom i kuhinjom
- spavace sobe
-kupatila
-terase
U ponudi su stanovi u kvalitetnoj novogradnji na Panteleju, u Gornjomatejevačkoj ulici.
Investitor sa dugogodišnjim iskustvom i proverenim kvalitetom gradnje, iza koga stoji realizacija više od 10 stambenih objekata na teritoriji grada.
Objekat je spratnosti Po+P+IV i projektovan je u skladu sa savremenim standardima stanovanja.
U ponudi su stanovi različitih struktura i kvadratura od 44m² do 66m² (jednoiposobni, dvoiposobni i troiposobni), sa funkcionalnim rasporedima i maksimalno iskorišćenim prostorom.
Zgrada poseduje lift, a oprema i završni radovi obuhvataju:
- podno grejanje sa kalorimetrima
- PVC stolariju sa aluminijumskim roletnama
- demit fasadu
- keramiku prve klase
- energetski pasoš
U okviru parcele predviđena su parking mesta, uz mogućnost kupovine po ceni od 6.000€.
Rok završetka radova planiran je za jun 2027. godine.
Mogucnost kupovine putem stambenog kredita uz 20% učešća.
Cena po m² u zavisnosti od dinamike plaćanja:
Keš: 44-46m² 1900e, 56-66m² 1800e
Kredit 2000e
Odlična prilika kako za porodično stanovanje, tako i za investiciju
Za vise informacija kontaktirajte nas
Agencijska provizija u skladu sa opstim uslovima poslovanja
Kompas neketnine- vas pouzdan partner u kupovini i prodaji nekretnina
*Sačuvaj oglas uz belešku i primaj obaveštenja o njihovom pojeftinjenju ili pojavljivanju sličnih
Prikaz stana na mapi
Parkovi u blizini
- Park složnih komšija28 min
- Park Svetog Save28 min
- Park heroja NOB-a32 min

Obeležja kulture u blizini
- Ranohrišćanska grobnica5 min
- Ranohrišćanska bazilika6 min
- Stambol kapija8 min

Škole/Fakulteti/Vrtići u blizini
- Osnovna škola (Osnovna škola Njegoš)18 min
- Srednja škola (Elektrotehnička škola Nikola Tesla)7 min
- Vrtić (Dečiji vrtić Mazza)12 min
- Fakultet (Univerzitet u Nišu Mašinski fakultet)6 min

- Bolnica (Bolnica Đorić)6 min
- Klinika (Family Medica poliklinika)6 min
- Teretana (Teretana Šuki)3 min
- Prodavnica (Beni trgovina)4 min
- Restoran (Restoran President Lux)7 min
- Kafana (Kafana Stari ambar)14 min
- Taksi stajalište (Cool taksi)22 min
- Autobuska stanica (Vase Pelagića)6 min
- Banka (Poštanska štedionica)5 min
- Pošta (Pošta Niš 3)4 min
Kontakt oglašivača
Krediti OTP banke
Saznaj više
Prikazana rata odnosi se na maksimalni period otplate. Kalkulator je informativnog karaktera.
* Nakon isteka 5 godina, prelazi se na varijabilnu kamatnu stopu


