Jednoiposoban stan na prodaju, Pantelej, 89.840€, 50m²








89.840 €
1.797 € / m2
- Etažno grejanje
- Novo
- Prostorije: kupatilo, terasa
- Oglas oglašava agencija pod reg. brojem 940
- 1 lift
- 1 telefonska linija
Opis oglasa
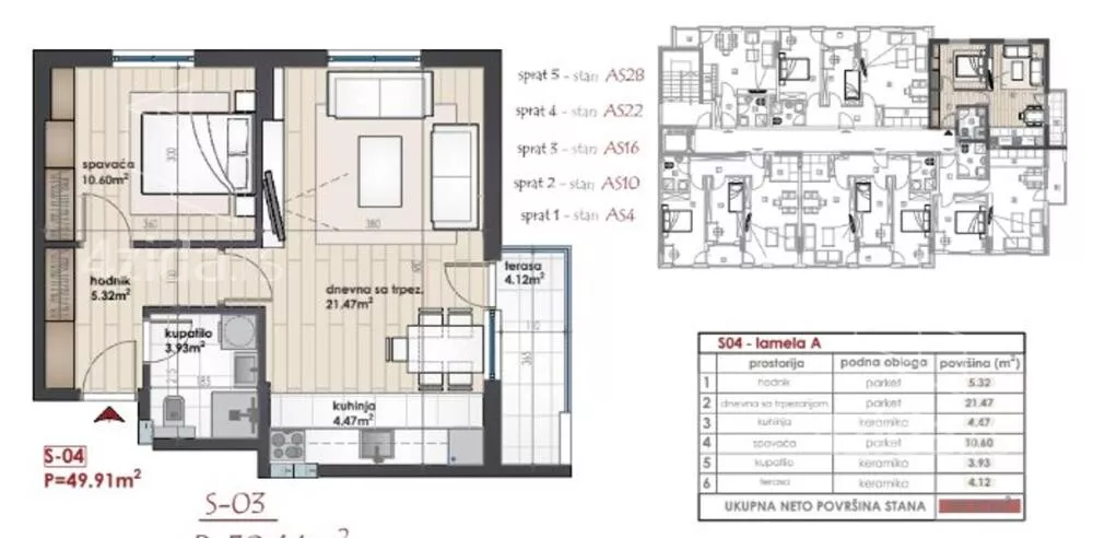
Prodaje se jednoiposoban stan u novogradnji na Panteleju u zgradi koja ima P+5 sprata. Stan je površine 49,91m2, na I spratu i sastoji se od ulaznog hodnika, dnevnog boravka sa kuhinjom i trpezarijom, spavaće sobe, kupatila i terase. Zgrada se gradi po visokim standardima, u skladu sa zahtevima savremene infrastrukture. U gradnji se koriste najkvalitetniji moderni materijali, na podu će biti postavljen tarket I klase, stolarija će biti PVC profila, grejanje će biti etažno. Parking mesto spolja 4000eur, u podzemnom delu 8000eur-12000eur. Zgrada se nalazi u mirnoj ulici u porodičnom kraju grada. U cenu je uključen PDV i kupci prvog stana imaju pravo na povraćaj PDV-a u iznosu od 10%. Za više informacija o ovoj ili drugim nekretninama i zakazivanje razgledanja kontaktirajte agenta na broj telefona iz oglasa (poziv, sms, viber) ili putem e-maila. Kompletnu ponudu dostupnih nekretnina možete pronaći na našem sajtu. Agencija Proagent nekretnine je upisana u Registru posrednika pod brojem: 940.
*Sačuvaj oglas uz belešku i primaj obaveštenja o njihovom pojeftinjenju ili pojavljivanju sličnih
Prikaz stana na mapi
Parkovi u blizini
- Park Svetog Save22 min
- Park složnih komšija24 min
- Park heroja NOB-a31 min

Obeležja kulture u blizini
- Ranohrišćanska grobnica6 min
- Ranohrišćanska bazilika7 min
- Zgrada Oficirskog doma10 min

Škole/Fakulteti/Vrtići u blizini
- Osnovna škola (Osnovna škola Njegoš)5 min
- Srednja škola (Gimnazija 9. maj)10 min
- Vrtić (Dečiji vrtić Meca Dobrica)9 min
- Fakultet (Fakultet za pravne i poslovne studije Dr Lazar Vrkatić)8 min

- Bolnica (Bolnica Đorić)7 min
- Klinika (Family Medica poliklinika)13 min
- Teretana (Teretana Šuki)4 min
- Prodavnica (Tis market 20)7 min
- Restoran (Restoran Nikolić)12 min
- Kafana (Kafana Stari ambar)7 min
- Taksi stajalište (Duga taksi)20 min
- Autobuska stanica (Bojnička)7 min
- Banka (Poštanska štedionica)4 min
- Pošta (Pošta Niš 3)10 min
Kontakt oglašivača
Krediti OTP banke
Saznaj više
Prikazana rata odnosi se na maksimalni period otplate. Kalkulator je informativnog karaktera.
* Nakon isteka 5 godina, prelazi se na varijabilnu kamatnu stopu


