Četvorosoban stan na prodaju, Nova Detelinara, 236.900€, 99m²
































236.900 €
2.393 € / m2
- Stan u zgradi
- Centralno grejanje
- Prostorije: kuhinja, ostava, terasa
- Opremljenost: Polunamešteno - internet, interfon, TV, klima, veš mašina, frižider, rerna, ležaj, plakar
- Uknjiženo
- Oglas oglašava agencija pod reg. brojem 1808
- 1 lift
- Kablovska
- 1 telefonska linija
Opis oglasa
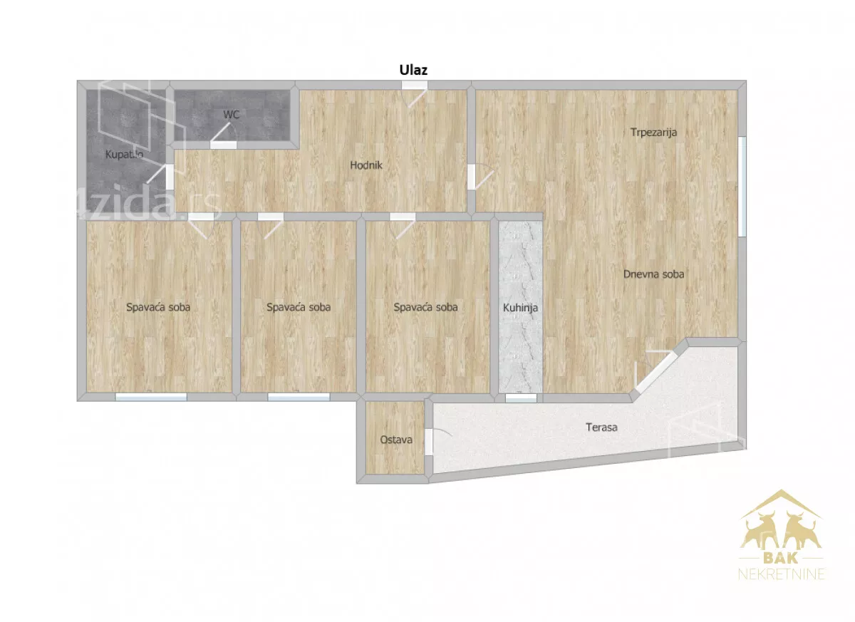
Predstavljamo vam izuzetno komforan i funkcionalan četvorosoban stan površine 99 m², smešten u jednom od najtraženijih delova Nove Detelinare, u blizini svih važnih sadržaja neophodnih za svakodnevni život. Centralni deo stana čini veliki dnevni boravak otvorenog koncepta, koji je prirodno povezan sa trpezarijom i moderno organizovanom kuhinjom, stvarajući topao i funkcionalan prostor idealan za porodična okupljanja i druženja. Tri komforne i pravilno raspoređene spavaće sobe omogućavaju maksimalnu udobnost, bilo da je u pitanju porodični život, rad od kuće ili gostinska soba. Stan raspolaže kupatilom i dodatnim toaletom, što značajno podiže nivo svakodnevnog komfora, dok prostran hodnik pruža osećaj širine i povezanosti celokupnog prostora. Posebna prednost ovog stana je velika terasa, prava mala oaza za odmor, jutarnju kafu ili večernje opuštanje, na kojoj se nalazi i praktična ostava za dodatni prostor za odlaganje. Grejanje je centralno, što garantuje stabilnu i ugodnu temperaturu tokom cele godine. Stan se prodaje polunamešten, sa zadržanim ugradnim elementima i opremom, što budućem vlasniku omogućava da prostor dodatno prilagodi sopstvenim željama i potrebama. Ova nekretnina predstavlja retku priliku za kupovinu stana koji objedinjuje prostranost, funkcionalnost, kvalitet i odličnu lokaciju, čineći ga idealnim izborom za one koji traže dugoročan dom ili sigurnu investiciju.
Za više informacija kao i za razgledanje stana slobodno nas kontaktirajte.
Kontakt telefoni:
065... (prikaži broj telefona)
,
060... (prikaži broj telefona)
,
065... (prikaži broj telefona)
BAK Nekretnine
*Sačuvaj oglas uz belešku i primaj obaveštenja o njihovom pojeftinjenju ili pojavljivanju sličnih
Prikaz stana na mapi
Parkovi u blizini
- Železnički park18 min
- Park Bistrica21 min
- Futoški park22 min

Obeležja kulture u blizini
- Jodna Banja10 min
- Spomen ploča Albertu Ajnštajnu i Milevi Marić13 min
- Dvorac Eđšeg14 min

Škole/Fakulteti/Vrtići u blizini
- Osnovna škola (Osnovna škola Dositej Obradović)7 min
- Srednja škola (Škola za dizajn Bogdan Šuput)5 min
- Vrtić (Dečiji vrtić Lunja i Maza)1 min
- Fakultet (Univerzitet u Novom Sadu Medicinski fakultet)8 min

- Bolnica (NS specijalna bolnica za hemodijalizu)4 min
- Klinika (Poliklinika Galetić)6 min
- Teretana (Sportsko udruženje Joga Om)8 min
- Prodavnica (Supermarket Univerexport)2 min
- Restoran (Restoran My Way)4 min
- Kafana (Točionica Pab)6 min
- Taksi stajalište (Red Taxi)13 min
- Autobuska stanica (Hadži Ruvimova - Ilije Birčanina)3 min
- Banka (Raiffeisen Bank)5 min
- Pošta (Pošta Novi Sad 21140)2 min
Kontakt oglašivača
Krediti OTP banke
Saznaj više
Prikazana rata odnosi se na maksimalni period otplate. Kalkulator je informativnog karaktera.
* Nakon isteka 5 godina, prelazi se na varijabilnu kamatnu stopu






















