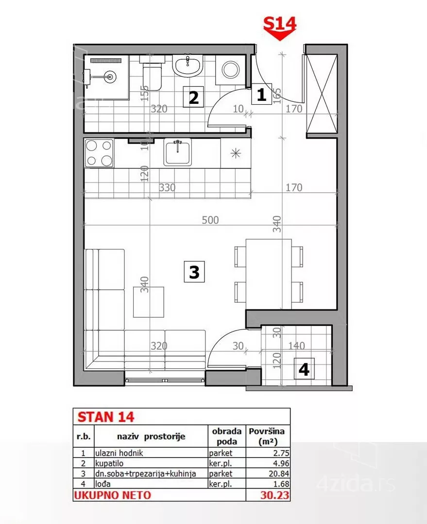
Garsonjera na prodaju, Mišeluk, 85.000€, 30m²






85.000 €
2.833 € / m2
- Stan u zgradi
- Grejanje na gas
- U izgradnji
- Prostorije: terasa
- Orijentacija ka: istok
- U procesu uknjižavanja
- Oglas oglašava agencija pod reg. brojem 182
- 1 lift
- Godina izgradnje: 2026.
- Zgrada poseduje: video nadzor
Opis oglasa
Garsonjera na odličnoj lokaciji na Mišeluku..
Izgradnja, useljiva u maju.
Može i kredit uz našu saradnju sa Aik Bankom, brzo i efikasno..
za prezentaciju iste pozovite: 065... (prikaži broj telefona) Dančo lic. br.322
ili na: www. http://status-nekretnine.com Šifra oglasa; A57-22366
STATUS NEKRETNINE D.O.O UPISAN U REG. POSREDNIKA POD. RED. BR.182
*Sačuvaj oglas uz belešku i primaj obaveštenja o njihovom pojeftinjenju ili pojavljivanju sličnih
Prikaz stana na mapi
Parkovi u blizini
- Molinarijev park37 min

Obeležja kulture u blizini
- Kapija Karla VI12 min
- Komunikaciona kapija12 min
- Kamenička kapija12 min

Škole/Fakulteti/Vrtići u blizini
- Osnovna škola (Osnovna škola Jovan Dučić)6 min
- Srednja škola (Francusko-srpska gimnazija Petar I od Srbije)6 min
- Vrtić (Dečiji vrtić Cvetić)7 min
- Fakultet (Educons Univerzitet)6 min

- Bolnica (Kovid bolnica Novi Sad)6 min
- Klinika (Poliklinika NS Lab)8 min
- Teretana (Joga Yogaja Studio)9 min
- Prodavnica (Market Hit es 13)12 min
- Restoran (Restoran Zec)16 min
- Kafana (Kafana Tako je suđeno)48 min
- Taksi stajalište (Delta Taxi)16 min
- Autobuska stanica (Petrovaradin - Bukovački Put - Račkog)5 min
- Banka (Poštanska štedionica)8 min
- Pošta (Pošta Sremska Kamenica 21202)7 min
Kontakt oglašivača

Krediti OTP banke
Saznaj više
Prikazana rata odnosi se na maksimalni period otplate. Kalkulator je informativnog karaktera.
* Nakon isteka 5 godina, prelazi se na varijabilnu kamatnu stopu

