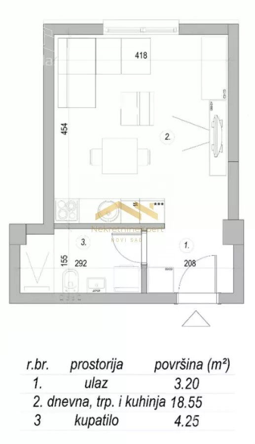
Garsonjera na prodaju, Mišeluk, 61.261€, 26m²






61.261 €
2.356 € / m2
- Stan u zgradi
- Centralno grejanje
- Novo
- Prostorije: terasa
- Opremljenost: Prazno - internet, interfon, klima, kanalizacija
- Oglas oglašava agencija pod reg. brojem 1734
- 1 lift
- Kanalizacija
- Zgrada poseduje: video nadzor
- Kablovska
- 1 telefonska linija
Opis oglasa
Agencijska oznaka 4660
Na jednoj od najtraženijih lokacija u Novom Sadu – Mišeluku, u izuzetno mirnom i zelenom okruženju, niče moderan stambeno-poslovni objekat spratnosti P+4, udaljen svega četiri minuta vožnje od TC Promenada i u neposrednoj blizini Kovid bolnice.
Projekat donosi savršenu ravnotežu između urbanog komfora i privatnosti, uz najviše standarde gradnje i vrhunske materijale vodećih svetskih proizvođača. Svaka stambena jedinica projektovana je s pažnjom prema detaljima, funkcionalnosti i energetskoj efikasnosti.
Objekat je priključen na sistem daljinskog grejanja sa protočnom toplom vodom, a svaki stan poseduje individualne kalorimetre koji omogućavaju potpunu kontrolu potrošnje i komfor po meri savremenog života.
Stanari će uživati u dodatnim pogodnostima:
• Privatna parking mesta u dvorištu
• Garažna mesta u suterenu
• Dve biciklane za bezbedno odlaganje bicikala
Kvalitet, elegancija i udobnost – sve na jednom mestu.
Ovo nije samo novi stan – ovo je životni stil.
Završetak radova: mart 2027.
(Kupovina putem kredita moguća za sve stanove osim garsonjera.)
Rezervišite svoj stan na vreme i obezbedite idealan dom ili sigurnu investiciju u budućnost.
Broj stanova je ograničen – kontaktirajte nas već danas!
Reg pos 1734
*Sačuvaj oglas uz belešku i primaj obaveštenja o njihovom pojeftinjenju ili pojavljivanju sličnih
Prikaz stana na mapi
Parkovi u blizini
- Kamenički park27 min
- Park prirode Instituta u Sremskoj Kamenici29 min
- Limanski park42 min

Obeležja kulture u blizini
- Kuća Jovana Jovanovića Zmaja5 min
- Kuća iz 1797. godine6 min
- Dvorac Marcibanji-Karačonji7 min

Škole/Fakulteti/Vrtići u blizini
- Osnovna škola (Privatna osnovna škola Svitac)5 min
- Srednja škola (Francusko-srpska gimnazija Petar I od Srbije)20 min
- Vrtić (Dečiji vrtić Plavi čuperak)6 min
- Fakultet (Educons Univerzitet)20 min

- Bolnica (Kovid bolnica Novi Sad)6 min
- Klinika (Poliklinika NS Lab)8 min
- Teretana (Joga Yogaja Studio)6 min
- Prodavnica (Mikromarket)15 min
- Restoran (Restoran Beskraj)17 min
- Kafana (Kafana Tako je suđeno)30 min
- Taksi stajalište (Taxi Igi Ina)32 min
- Autobuska stanica (Petlja Mišeluk - Tunel)9 min
- Banka (Poštanska štedionica)5 min
- Pošta (Pošta Sremska Kamenica 21202)22 min
Kontakt oglašivača
Stambeni krediti

- Period otplate od
96 -360 meseca
- NKS 4.75%
EKS 5.74%
Fiksna kamatna stopa
- Bez troškova obrade kredita
stranici kreditnih kalkulatora
Keš krediti
Period otplate
13 meseci




















