Trosoban stan na prodaju, Medicinski Fakultet, 155.000€, 68m²














155.000 €
2.279 € / m2
- Stan u zgradi
- Etažno grejanje
- U izgradnji
- Prostorije: kupatilo, toalet, terasa
- Opremljenost: Prazno - internet
- Uknjiženo
- Oglas oglašava agencija pod reg. brojem 2136
- 1 parking mesto, parking u dvorištu zgrade
- 1 lift
- Godina izgradnje: 2026.
- Zgrada poseduje: podrum
- Tip interneta: optički
- Kablovska
- 1 telefonska linija
Opis oglasa
Prodaje se 3.0 stan na prvom spratu - moguća kupovina za keš ali i preko stambenog kredita banke sa 10 % ili 20 % učešća jer je zgrada upravo sada na 80 % izgrađenosti i useljenje se planira za 3 meseca.
Zgrada se nalazi u blizini Medicinskog fakulteta i Kliničkog centra ali i na 10 minuta hoda od Parka Sv. Save .
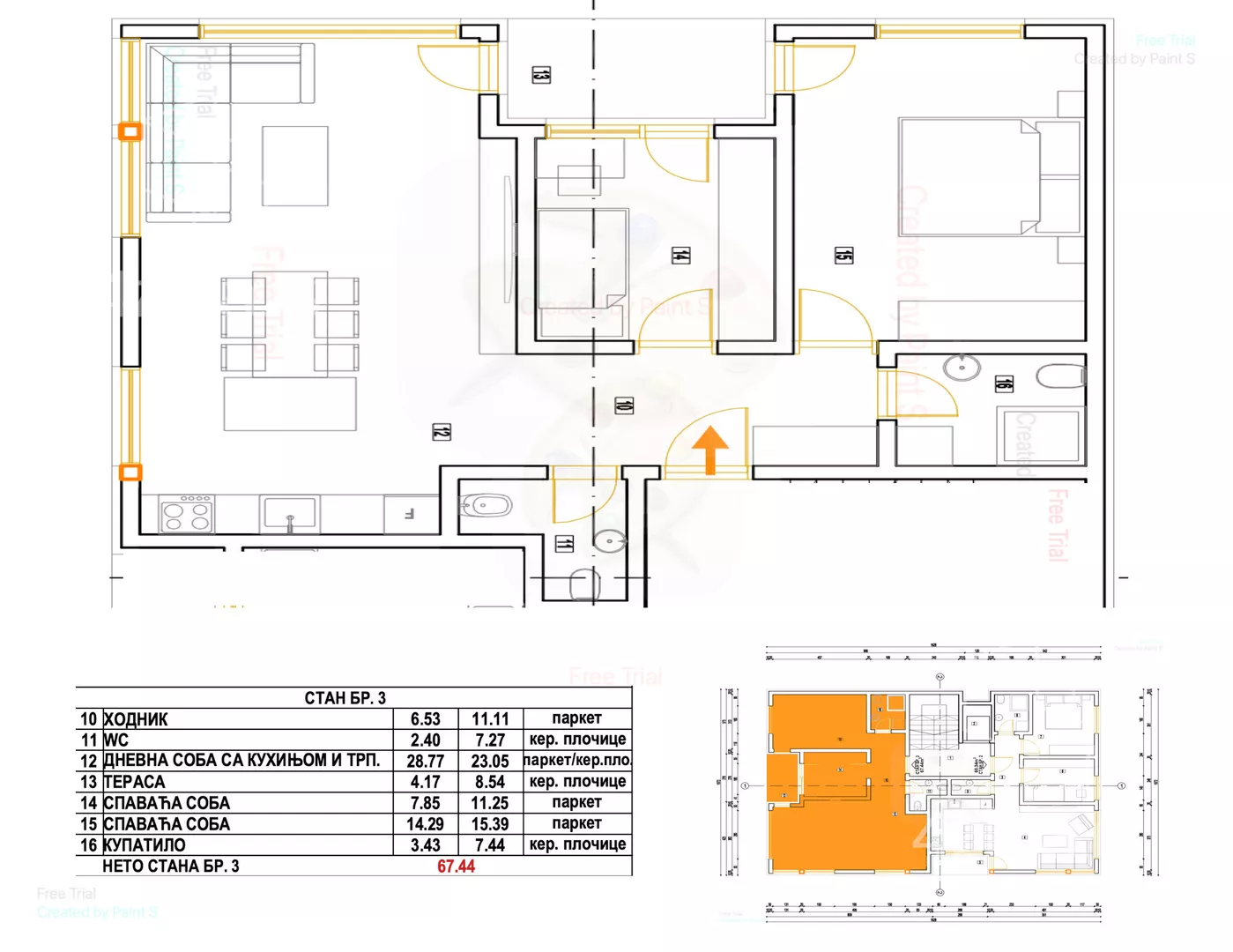
Stan je vrlo funkcionalnog rasporeda , i u 67,44 m2 su smeštene dve spavaće sobe, dnevni boravak sa trepezarijom i kuhinjom, teras, kupatilo i toalet.
Cena je 2300 eu po m2 plus PDV a kupac stana ima pravo ukoliko je prva nekretnina povraćaj PDV-a do 10 % od ukupne cene.
U zgradi je dostupan takođe i stan od 61 m2 na prvom spratu .
Za sve dodatne informacje pozovite na brojeve telefona iz oglasa ili ostavite poruku ( sms, viber ) i kontaktiraćemo Vas u najkraćem roku.
*Sačuvaj oglas uz belešku i primaj obaveštenja o njihovom pojeftinjenju ili pojavljivanju sličnih
Prikaz stana na mapi
Parkovi u blizini
- Park Svetog Save8 min
- Park složnih komšija12 min
- Park Čair19 min

Obeležja kulture u blizini
- Zgrada Pasterovog zavoda4 min
- Spomenik Stevanu Sremcu i Kalči7 min
- Ćele kula10 min

Škole/Fakulteti/Vrtići u blizini
- Osnovna škola (Osnovna škola Ćele kula)8 min
- Srednja škola (Medicinska škola Dr Milenko Hadžić)12 min
- Vrtić (Dečiji vrtić Plavi čuperak)9 min
- Fakultet (Univerzitet u Nišu Medicinski fakultet)5 min

- Bolnica (Opšta bolnica Sava Surgery)3 min
- Klinika (Poliklinika Humano)14 min
- Teretana (Strongman fitness center)4 min
- Prodavnica (IDEA)5 min
- Restoran (Restoran Izvor)7 min
- Kafana (Kafana Dva jarana)18 min
- Taksi stajalište (Duga taksi)13 min
- Autobuska stanica (Medicinski fakultet)5 min
- Banka (UniCredit Bank)14 min
- Pošta (Pošta Niš 8)5 min
Kontakt oglašivača

Krediti OTP banke
Saznaj više
Prikazana rata odnosi se na maksimalni period otplate. Kalkulator je informativnog karaktera.
* Nakon isteka 5 godina, prelazi se na varijabilnu kamatnu stopu

