Jednoiposoban stan na prodaju, Smederevski put, 87.126€, 44m²












87.126 €
1.980 € / m2
- Stan u zgradi
- Grejanje na norveške radijatore
- Novo
- Prostorije: terasa
- Opremljenost: Prazno - klima
- Uknjiženo
- Oglas oglašava agencija
- 1 lift
- Godina izgradnje: 2025.
Opis oglasa
Prodaje se stan u novogradnji u Leštanima, na atraktivnoj lokaciji koja pruža idealan balans između mirnog porodičnog života i brze povezanosti sa gradom.
Stan se nalazi u modernoj zgradi vrhunskog kvaliteta gradnje, sa pažljivo biranim materijalima i savremenim arhitektonskim rešenjima. Odličan raspored i maksimalno iskorišćen prostor pružaju visok nivo komfora i funkcionalnosti, kako za svakodnevni život, tako i kao sigurnu investiciju za izdavanje.
Lokacija je izuzetno pogodna – u blizini se nalaze svi neophodni sadržaji za život, dok je centar grada lako i brzo dostupan.
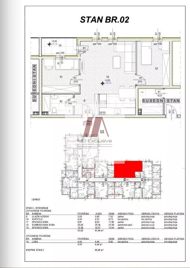
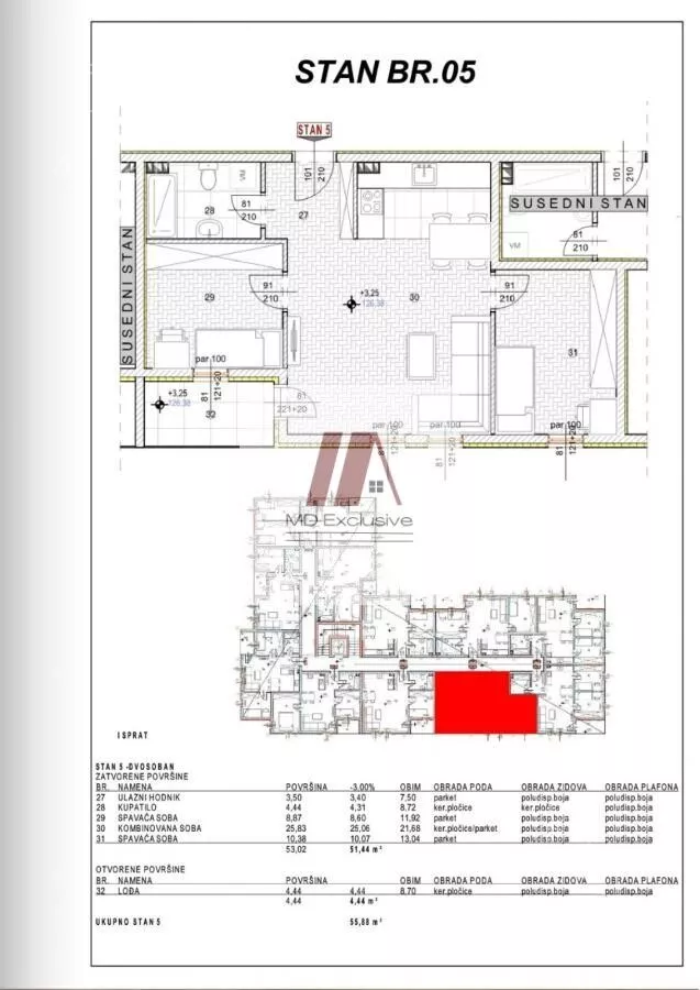
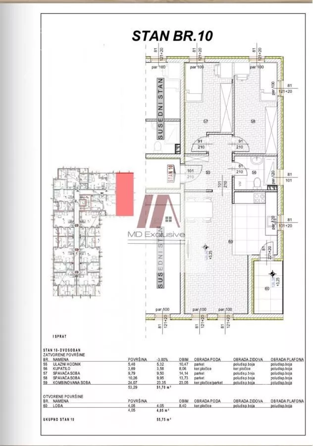
Na prvom spratu se nalaze još dva dvosobna stana, dok se u istoj zgradi nalaze i dodatna dva stana u potkrovlju.
Mogućnost kupovine parking mesta po ceni od 5.000€.
Odlična prilika za kupce koji traže kvalitet, mir i dobru investiciju na jednoj od sve traženijih lokacija.
Cene su izražene bez PDV-a.
Agencijska provizija iznosi 2%.
Za više informacija pozvati.
*Sačuvaj oglas uz belešku i primaj obaveštenja o njihovom pojeftinjenju ili pojavljivanju sličnih
Prikaz stana na mapi
Obeležja kulture u blizini
- Rančićeva kuća4 min
- Cincarska kuća5 min
- Rimska grobnica u Brestoviku9 min

Škole/Fakulteti/Vrtići u blizini
- Osnovna škola (Osnovna škola Ilija Garašanin)5 min
- Srednja škola (Srednja škola Grocka)5 min
- Vrtić (Dečiji vrtić Lane)18 min
- Fakultet (Univerzitet u Beogradu Fakultet primenjenih umetnosti)37 min

- Bolnica (Odeljenje za neurologiju Smederevo)29 min
- Klinika (Poliklinika Vujović)26 min
- Teretana (Fitness klub Triumph Gym)24 min
- Prodavnica (Aman market)16 min
- Restoran (Nautički klub Marina Oasa)22 min
- Autobuska stanica (Grocka)16 min
- Banka (Poštanska štedionica)16 min
- Pošta (Pošta Grocka)17 min
Kontakt oglašivača
Krediti OTP banke
Saznaj više
Prikazana rata odnosi se na maksimalni period otplate. Kalkulator je informativnog karaktera.
* Nakon isteka 5 godina, prelazi se na varijabilnu kamatnu stopu


