Trosoban stan na prodaju, Lekino Brdo, 310.000€, 77m²


310.000 €
4.026 € / m2
- Centralno grejanje
- Novo
- Prostorije: kupatilo, terasa
- Opremljenost: Prazno - internet, interfon, klima
- Oglas oglašava agencija pod reg. brojem 1288
- 1 garažno mesto
- 1 parking mesto
- 1 lift
- 1 telefonska linija
Opis oglasa
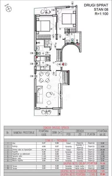
Izuzetna prilika na Lekinom brdu – moderan trosoban stan u novogradnji
- U mirnom i uređenom delu Lekinog brda, na jednoj od najtraženijih lokacija u gradu, nalazi se ovaj vrhunski trosoban stan u kvalitetnoj novogradnji, sa planiranim završetkom radova u januaru 2027. godine.
- Stan je pažljivo projektovan kako bi pružio maksimalnu funkcionalnost i komfor savremenog života. Prostrani dnevni boravak sa trpezarijom ima izlaz na terasu, stvarajući savršen ambijent za opuštanje i druženje. Kuhinja je odvojena i praktično organizovana. Poseban kvalitet ovom stanu daje odličan raspored – izdvojena spavaća soba, kao i komforna master spavaća soba sa sopstvenim kupatilom. Obe spavaće sobe imaju izlaz na drugu terasu, što prostoru daje dodatnu svetlost i osećaj privatnosti.
Objekat je građen po visokim standardima:
- ALU stolarija
- Centralno grejanje
- Klima uređaji u svim prostorijama
- Kvalitetni završni materijali
Postoji mogućnost kupovine garažnog mesta.
Ova nekretnina predstavlja idealan izbor kako za porodični život, tako i kao investicija na izuzetno atraktivnoj lokaciji.
Cena je izražena bez PDV-a.
Za više informacija i rezervaciju, kontaktirajte nas na vreme – stanovi na Lekinom brdu su uvek traženi.
Agencijska nadoknada iznosi 2%
.
*Sačuvaj oglas uz belešku i primaj obaveštenja o njihovom pojeftinjenju ili pojavljivanju sličnih
Prikaz stana na mapi
Parkovi u blizini
- Park Urbani džep12 min
- Park Šumice16 min
- Park Slavujev potok17 min

Obeležja kulture u blizini
- Osnovna škola Kralj Petar II Karađorđević7 min
- Vozarev krst8 min
- Pašina česma9 min

Škole/Fakulteti/Vrtići u blizini
- Osnovna škola (Specijalna osnovna škola Dušan Dugalić)4 min
- Srednja škola (Arhitektonska tehnička škola)6 min
- Vrtić (Dečiji vrtić Lunja)5 min
- Fakultet (Univerzitet u Beogradu Fakultet primenjenih umetnosti)6 min

- Bolnica (MedicOne - specijalna bolnica za plastičnu, estetsku i rekonstruktivnu hirurgiju)8 min
- Klinika (Poliklinika Sim Medical Team)6 min
- Teretana (Fitness centar Spartanac)3 min
- Prodavnica (Soulfood market)2 min
- Restoran (Kineski restoran Mister Wang)4 min
- Kafana (Slatka mala kafanica)5 min
- Taksi stajalište (Auto taxi Ševarlić Dimitrije)11 min
- Autobuska stanica (Škola Vojislav Ilić)4 min
- Tramvajska stanica (Pijaca Zvezdara)13 min
- Trolejbuska stanica (Bačvanska)2 min
- Banka (Erste Bank Ekspres ekspozitura)7 min
- Pošta (Pošta Beograd 107)4 min
Kontakt oglašivača
Krediti OTP banke
Saznaj više
Prikazana rata odnosi se na maksimalni period otplate. Kalkulator je informativnog karaktera.
* Nakon isteka 5 godina, prelazi se na varijabilnu kamatnu stopu






















