Četvorosoban stan na prodaju, Kumanovska, 485.000€, 105m²




























485.000 €
4.619 € / m2
- Salonac
- Centralno grejanje
- Renovirano
- Prostorije: kuhinja, terasa
- Opremljenost: Prazno - internet, interfon, TV, klima, veš mašina, sudo mašina, frižider, rerna, plakar
- Uknjiženo
- Oglas oglašava agencija
- 1 garažno mesto
- 1 parking mesto
- 1 lift
- Zgrada poseduje: podrum
- Kablovska
- 1 telefonska linija
Opis oglasa
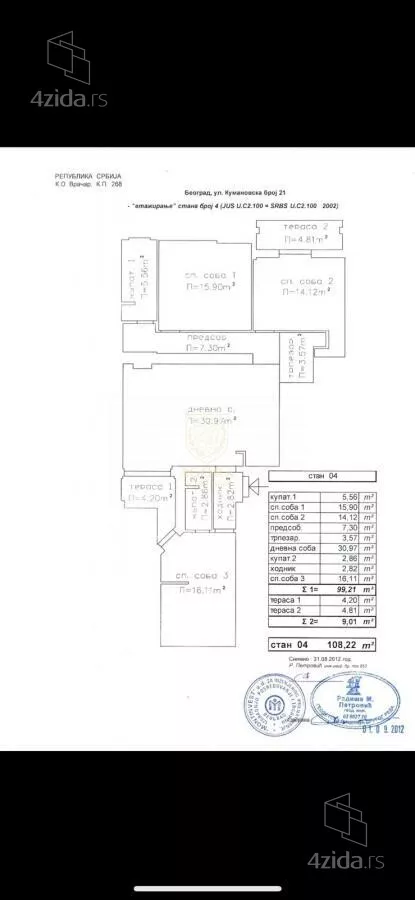
Stan se nalazi na Vračaru, u zoni Krunskog venca, u Kumanovskoj ulici, u urednoj i lepo održavanoj predratnoj zgradi sa liftom. U pitanju je četvorosoban stan salonskog karaktera, sa visinom plafona od 3 metra, što prostoru daje izuzetnu prozračnost i eleganciju.
Stan je luksuzno renoviran, sa pažljivo biranim materijalima, poseduje kamin i veći broj ugradnih plakara. Dvostrano je orijentisan – prema mirnom dvorištu i ka Kumanovskoj ulici – zbog čega je izuzetno svetao i vrlo prijatan za boravak.
Ukupna površina stana iznosi 105 m², uz dve terase ukupne površine 9 m². Nalazi se na prvom spratu od ukupno pet. Raspored je funkcionalan i obuhvata predsoblje, prostran dnevni boravak, kuhinju sa trpezarijom, tri spavaće sobe, dva kupatila i dve lođe.
Stanu pripada i veliki podrum, a parking je obezbeđen u dvorištu zgrade. Postoji i opcija kupovine garažnog mesta površine 19 m² u neposrednoj blizini, po ceni od 35.000 evra.
Nekretnina je uknjižena na kvadraturu od 96 m² i odmah je useljiva.
*Sačuvaj oglas uz belešku i primaj obaveštenja o njihovom pojeftinjenju ili pojavljivanju sličnih
Prikaz stana na mapi
Parkovi u blizini
- Park Mike Oklopa2 min
- Park vojvode Petra Bojovića6 min
- Park Mali Tašmajdan6 min

Obeležja kulture u blizini
- Spomenik Svetozaru Markoviću3 min
- Genčićeva kuća4 min
- Kuća pukovnika Elezovića8 min

Škole/Fakulteti/Vrtići u blizini
- Osnovna škola (Osnovna škola Sveti Sava)5 min
- Srednja škola (Četrnaesta beogradska gimnazija)5 min
- Vrtić (Dečiji vrtić Čarolije)manje od 1 min
- Fakultet (Centar Osteopatija)4 min

- Bolnica (Neurološka bolnica Affidea)9 min
- Klinika (Poliklinika Millenium Medic)7 min
- Teretana (Fitness centar Team fit)3 min
- Prodavnica (Aman market)3 min
- Restoran (Koreanski restoran Ahmee)1 min
- Kafana (Kafana Melem za dušu)6 min
- Taksi stajalište (Taxi stanica)3 min
- Autobuska stanica (Tehnički Fakulteti)4 min
- Tramvajska stanica (Vukov spomenik)6 min
- Trolejbuska stanica (Katanićeva)10 min
- Banka (Eurobank Direktna)6 min
- Pošta (Pošta Beograd 17)2 min
Kontakt oglašivača
Krediti OTP banke
Saznaj više
Prikazana rata odnosi se na maksimalni period otplate. Kalkulator je informativnog karaktera.
* Nakon isteka 5 godina, prelazi se na varijabilnu kamatnu stopu

