Četvorosoban stan na prodaju, Klisa, 175.000€, 101m²








175.000 €
1.733 € / m2
- Stan u zgradi
- Oglas oglašava agencija pod reg. brojem 1018
Opis oglasa
Porodičan stan na mirnoj lokaciji u blizini centra grada.
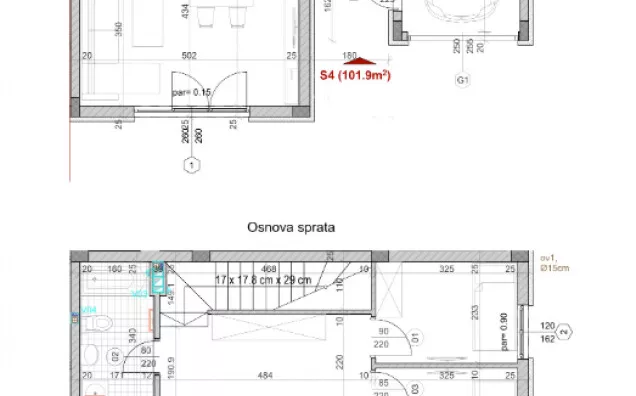
Stan je u 2 etaže.
Na prvoj etaži se nalazi dnevna soba, kuhinja i kupatilo. Iz dnevne sobe postoji izlaz na dvorište koje pripada stanu površine 50m2
Na drugoj etaži su 4 spavaće sobe i kupatilo.
Garaža od 13m2 je u ceni stana.
Veoma kvalitetna gradnja.
U blizini stana se nalazi vrtić, osnovna i srednja škola, marketi i sve što Vam je potrebno za moderan život.
Za više informacija kontaktirajte nas na broj:
Milan 066... (prikaži broj telefona)
Registarski broj posrednika: 1018
M2 kvadrat nekretnine, Novi Sad
*Sačuvaj oglas uz belešku i primaj obaveštenja o njihovom pojeftinjenju ili pojavljivanju sličnih
Prikaz stana na mapi
Obeležja kulture u blizini
- Spomen ploča Albertu Ajnštajnu i Milevi Marić13 min
- Spomenik Kralju Petru I Karađorđeviću17 min
- Vladičanski dvor17 min

Škole/Fakulteti/Vrtići u blizini
- Osnovna škola (Osnovna škola Dušan Radović)8 min
- Srednja škola (Privatna srednja škola Sveti Nikola)5 min
- Vrtić (Dečiji vrtić Skočko Hop)7 min
- Fakultet (Univerzitet u Novom Sadu Akademija umetnosti)15 min

- Bolnica (Specijalna bolnica za bolesti zavisnosti Dr Boro Lazić)10 min
- Klinika (Poliklinika Uromedica NS)13 min
- Teretana (Fitness centar Mega Gym Novi Sad)12 min
- Prodavnica (Mikromarket)12 min
- Restoran (Restoran Surabaya)22 min
- Kafana (Kafanica Dobro mesto)31 min
- Taksi stajalište (Novus taxi)43 min
- Autobuska stanica (Sentandrejski put - Savska)4 min
- Banka (Poštanska štedionica)10 min
- Pošta (Pošta Novi Sad 21118)12 min
Kontakt oglašivača
Krediti OTP banke
Saznaj više
Prikazana rata odnosi se na maksimalni period otplate. Kalkulator je informativnog karaktera.
* Nakon isteka 5 godina, prelazi se na varijabilnu kamatnu stopu


