Jednoiposoban stan na prodaju, Garsije Lorke, 119.000€, 44m²
OBIĐI 3D TURU






















119.000 €
2.705 € / m2
Za ovaj oglas se neko interesovao. Pozovi ranije kako ne bi propustio priliku.
- Grejanje na TA peć
- Prostorije: kupatilo, terasa
- Opremljenost: Prazno - interfon, klima
- Uknjiženo
- Oglas oglašava agencija pod reg. brojem 2104
- Zgrada poseduje: podrum, lođa
- Kablovska
- 1 telefonska linija
Opis oglasa
- Uknjižen.
- Vlasništvo 1/1.
- Uredna I čista dokumentacija.
- Zgrada je uredna i čista.
- Uknjižena kvadratura stana je 32m2.
- Merena kvadratura stana je 44m2.
- Stan je izvorno jednosoban, sa mogućnošću adaptacije u jednoiposoban.
- Dvostrano orijentisan.
- Svetao stan.
- Odličan raspored prostorija.
- PVC stolarija.
- Klima.
- TA.
- Stan ima pripadajući podrum.
- Lokacija je izuzetno povezana-u blizini su linije gradskog prevoza (16, 23, 25, 27, 27e, 32n).
- U neposrednoj blizini se nalaze: vrtić, osnovne škole, dom zdravlja, park, apoteke,prodavnice i banke.
Nedaleko se nalazi BIG Fashion centar i TC Karaburma.
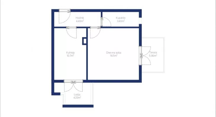
PROSTORIJE:
Ulazni hodnik, kuhinja sa trpezarijom, lodja, kupatilo, dnevna soba i terasa.
- Topla preporuka!
Agencijska nadoknada iznosi 2%.
*Sačuvaj oglas uz belešku i primaj obaveštenja o njihovom pojeftinjenju ili pojavljivanju sličnih
Prikaz stana na mapi
Parkovi u blizini
- Zvezdarska šuma16 min
- Park Slavujev potok29 min
- Spomen park oslobodiocima Beograda35 min

Obeležja kulture u blizini
- Tripod9 min
- Spomenik Oslobodiocima Beograda12 min
- Pašina česma13 min

Škole/Fakulteti/Vrtići u blizini
- Osnovna škola (Osnovna škola Stevan Dukić)6 min
- Srednja škola (Srpska pravoslavna Bogoslovija Svetog Save)9 min
- Vrtić (Dečiji vrtić Topolino)4 min
- Fakultet (Visoka škola likovnih i primenjenih umetnosti strukovnih studija)10 min

- Bolnica (Opšta bolnica Medical centar)9 min
- Klinika (Klinika Impuls)11 min
- Teretana (Spok Gym)manje od 1 min
- Prodavnica (Aman SOS market)1 min
- Restoran (Kafana Petko)3 min
- Kafana (Local Pub 2)16 min
- Taksi stajalište (Taxi stanica)6 min
- Autobuska stanica (Astronomska)4 min
- Tramvajska stanica (Omladinski Stadion)27 min
- Trolejbuska stanica (Miloša Jankovića)23 min
- Banka (Banca Intesa)7 min
- Pošta (Pošta Beograd 106)8 min
Kontakt oglašivača
Za ovaj oglas se neko interesovao. Pozovi ranije kako ne bi propustio priliku.
Krediti OTP banke
Saznaj više
Prikazana rata odnosi se na maksimalni period otplate. Kalkulator je informativnog karaktera.
* Nakon isteka 5 godina, prelazi se na varijabilnu kamatnu stopu

