Šestosoban stan na prodaju, Požarevačka, 659.000€, 213m²








































659.000 €
3.094 € / m2
- Stan u zgradi
- Centralno grejanje
- Renovirano
- Prostorije: kupatilo, terase (2)
- Opremljenost: internet
- Uknjiženo
- Oglas oglašava agencija
- 1 garažno mesto, garaža u sklopu zgrade
- 1 lift
- Godina izgradnje: 2008.
- Kablovska
Opis oglasa
Vračar, Kalenić, Požarevačka, 6.0, 213 m2 sa terasama, V od V spratova, duplex, CG, telefon, lift, interfon, ktv, klima, odmah useljiv, uknjižen na 207 m2, PARKING mesto u garaži, novija gradnja iz 2008. godine.
U mirnoj, rezidencijalnoj ulici na Vračaru, na svega nekoliko minuta od Kalenić pijace, Vukovog spomenika, nalazi se ovaj izuzetno komforan duplex u novijoj zgradi sa parking mestom. Odlična saobraćajna povezanost sa svim delovima grada, a i poslovni, trgovinski, turistički sadržaji su u neposrednoj blizini.
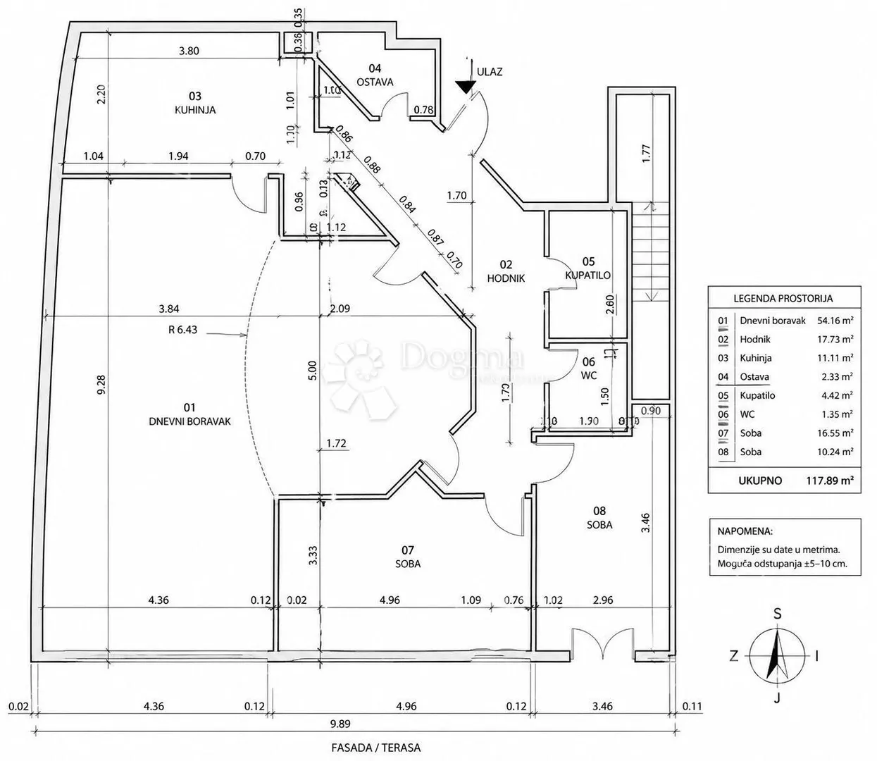
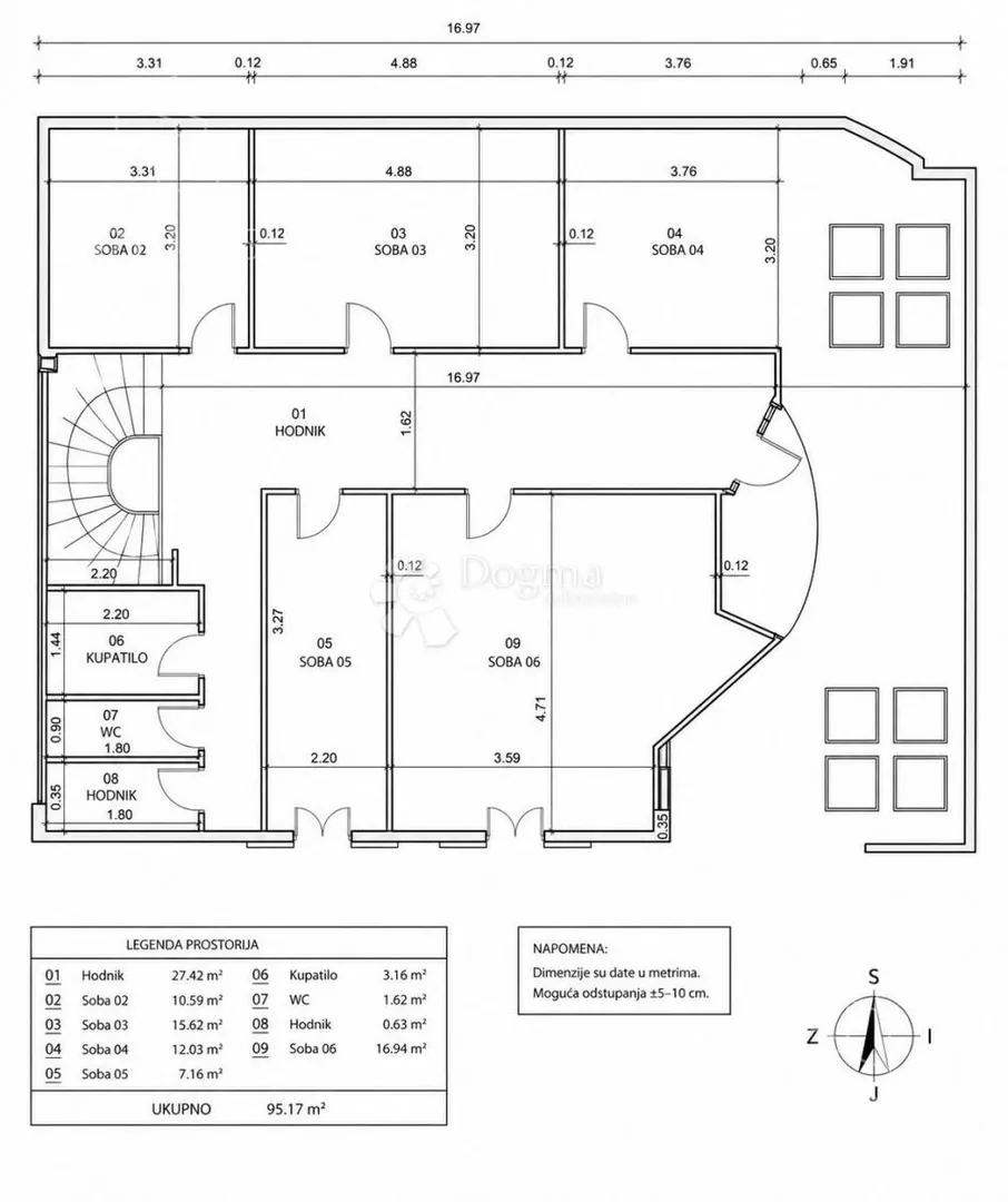
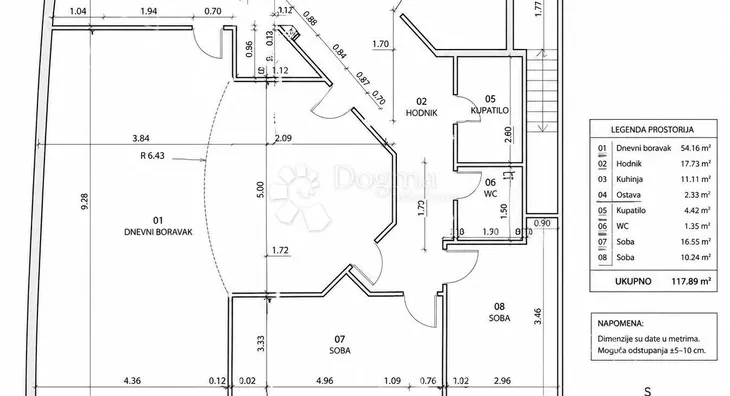
Dvostrano orijentisani stan se nalazi u kvalitetnoj novijoj gradnji iz 2008. godine, sa dobrom toplotnom i zvučnom izolacijom, visokim plafonima i obiljem prirodnog svetla. Zgrada poseduje lift, interfon i obezbeđeno parking mesto u garaži, koje se može, uz doplatu obezbediti. Po dva stana na spratu. Uknjižen je na 207 m2, mereno 213 m2 i podeljen je na 2 etaže.
Donji nivo: ulazni hodnik sa garderoberom, impresivan dnevni prostor površine preko 50 m2, sa visinom plafona preko 6 metara, koji prostoru daje izuzetnu prozračnost i osećaj otvorenosti, izdvojena kuhinja, toalet, dve spavaće sobe, terasa i kupatilo. Iz dnevnog dela se izlazi na drugu veliku, dvorišno orijentisanu terasu koja pruža potpuni mir.
Gornji nivo: hodnik, master spavaća soba sa kupatilom, dve spavaće sobe, kao i velikom terasom koja dodatno otvara prostor.
Stan pruža osećaj života u kući, sa jasno odvojenim zonama, velikim terasama i visokim nivoom privatnosti, zbog čega je idealan za veće porodice. Zahvaljujući svojoj kvadraturi i rasporedu, prostor istovremeno omogućava i kombinaciju stambene i poslovne namene, uz veliku fleksibilnost u organizaciji. Uz to, lokacija, struktura i veličina čine ovu nekretninu i izuzetnom investicionom prilikom, pogodnom kako za dugoročno, tako i za kratkoročno rentiranje, uz stabilnu potražnju zbog neposredne blizine svih sadržaja, fakulteta i centra grada.
CENA: 659.000 EUR
Agencijska provizija koju plaća kupac iznosi 2 % od dogovorene kupoprodajne cene.
Kontakt telefon agenta: 063... (prikaži broj telefona)
*Sačuvaj oglas uz belešku i primaj obaveštenja o njihovom pojeftinjenju ili pojavljivanju sličnih
Prikaz stana na mapi
Parkovi u blizini
- Park vojvode Petra Bojovića5 min
- Park Ćirila i Metodija5 min
- Čuburski park9 min

Obeležja kulture u blizini
- Spomenik Ćirilu i Metodiju5 min
- Spomenik Puškinu6 min
- Spomenik Vuku Karadžiću6 min

Škole/Fakulteti/Vrtići u blizini
- Osnovna škola (Osnovna škola Jovan Miodragović)4 min
- Srednja škola (Srednja škola Arhimed)2 min
- Vrtić (Dečiji vrtić Zmaj)manje od 1 min
- Fakultet (Univerzitet u Beogradu Geografski fakultet)7 min

- Bolnica (Specijalna bolnica za oftalmologiju Miloš Klinika)3 min
- Klinika (Poliklinika Panacea)10 min
- Teretana (Palestra Fitness Club)2 min
- Prodavnica (Aroma market)manje od 1 min
- Restoran (RiZz Pizza & Pasta Bar)1 min
- Kafana (Pab Pivodrom)3 min
- Taksi stajalište (Taxi stanica)5 min
- Autobuska stanica (Pijaca „Kalenić“)3 min
- Tramvajska stanica (Vukov spomenik)7 min
- Trolejbuska stanica (Vojvode Dragomira)7 min
- Banka (Addiko Bank)3 min
- Pošta (Pošta Beograd 15)6 min
Kontakt oglašivača
Krediti OTP banke
Saznaj više
Prikazana rata odnosi se na maksimalni period otplate. Kalkulator je informativnog karaktera.
* Nakon isteka 5 godina, prelazi se na varijabilnu kamatnu stopu


