Dvosoban stan na prodaju, Loznička, 240.000€, 53m²








































240.000 €
4.528 € / m2
- Etažno grejanje
- Novo
- Prostorije: terasa
- Nije uknjiženo
- Oglas oglašava agencija pod reg. brojem 759
- 2 lifta
Opis oglasa
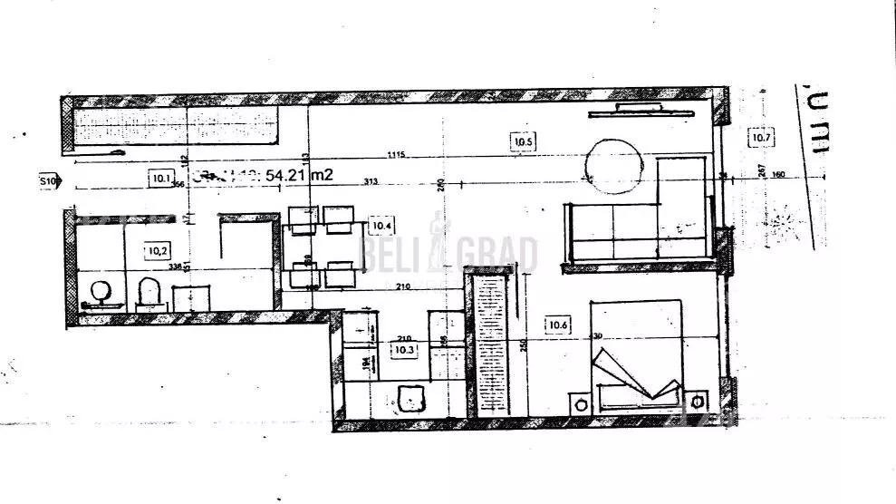
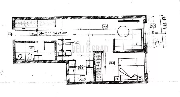
Useljiv dvosoban stan na prvom spratu, u luksuznoj novogradnji u centralnom delu Vračara. Objekat ispunjava najviše standarde savremene gradnje, uz primenu i ugradnju vrhunskih materijala i opreme: ventilisana fasada obložena staklom, kamenom i opekom, aluminijumska spoljna stolarija sa troslojnim staklom, sigurnosna Bosalova ulazna vrata, Bosalova unutrašnja stolarija, nijansirani troslojni hrastov parket prve klase, podne obloge od granita i mermera, oprema za kupatilo poznatih brendova Villeroy-Bosh i Hansgrohe, grejanje i hladjenje putem grejnih tela priključenih na bešumne i ekonomične toplotne pumpe, dizajnirana rasveta, dva lifta, video nadzor, fizičko obezbedjenje 7/24. Prostorije: predosoblje, dnevna soba, kuhinja, trpezarija, spavaća soba, kupatilo, terasa. Agencijska provizija 2%.
*Sačuvaj oglas uz belešku i primaj obaveštenja o njihovom pojeftinjenju ili pojavljivanju sličnih
Prikaz stana na mapi
Parkovi u blizini
- Park Ćirila i Metodija8 min
- Park vojvode Petra Bojovića8 min
- Čuburski park11 min

Obeležja kulture u blizini
- Spomenik Ćirilu i Metodiju3 min
- Spomenik Vuku Karadžiću3 min
- Spomenik Puškinu3 min

Škole/Fakulteti/Vrtići u blizini
- Osnovna škola (Osnovna škola Jovan Miodragović)4 min
- Srednja škola (Srednja škola Arhimed)1 min
- Vrtić (Dečiji vrtić Diznilend)1 min
- Fakultet (Univerzitet u Beogradu Geografski fakultet)2 min

- Bolnica (Specijalna bolnica za oftalmologiju Miloš Klinika)2 min
- Klinika (Poliklinika Panacea)4 min
- Teretana (Fitness studio Be fit)1 min
- Prodavnica (IDEA)1 min
- Restoran (Bar Loznička 11)manje od 1 min
- Kafana (Pab Pivodrom)2 min
- Taksi stajalište (Taxi stanica)4 min
- Autobuska stanica (Pijaca „Kalenić“)7 min
- Tramvajska stanica (Vukov spomenik)10 min
- Trolejbuska stanica (Vojvode Dragomira)6 min
- Banka (Addiko Bank)2 min
- Pošta (Pošta Beograd 34)4 min
Kontakt oglašivača
Stambeni krediti

- Period otplate od
96 -360 meseca
- NKS 4.75%
EKS 5.74%
Fiksna kamatna stopa
- Bez troškova obrade kredita
stranici kreditnih kalkulatora
Keš krediti
Period otplate
13 meseci
