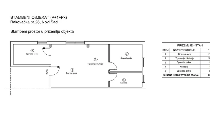
Trosoban stan na prodaju, Rakovačka 26, 115.000€, 52m²
Južni Telep, Telep, Gradske lokacije, Novi Sad
Prikaži mapuOglas ažuriran: 29.03.2026.
























115.000 €
2.212 € / m2
52 m²
3 sobe
Prizemlje/3 sprata
- Stan u zgradi
- Podno grejanje
- Novo
- Prostorije: kupatilo
- Opremljenost: Prazno - internet
- Pogled na: dvorište
- Uknjiženo
- Kupovina direktno od investitora
- 1 parking mesto, javni parking u zoni
- 1 lift
- Godina izgradnje: 2026.
- Zgrada poseduje: prilaz za invalide, dvorište, video nadzor
- Tip interneta: optički
- Kablovska
Opis oglasa
Prodaje se izvrstan trosoban stan u jednoj od najluksuznijih zgrada u Novom Sadu, opremljen smart podnim grejanjem, centralnim usisivacima, elektro alu roletnama, video nadzorom, biciklanom itd...
Moguca kupovina iskljucivo za kes.
*Sačuvaj oglas uz belešku i primaj obaveštenja o njihovom pojeftinjenju ili pojavljivanju sličnih
Prikaz stana na mapi
Parkovi u blizini
- Park Bistrica35 min
- Limanski park36 min
- Futoški park37 min

Obeležja kulture u blizini
- Dvorac Eđšeg12 min
- Jodna Banja13 min
- Kuća Jovana Jovanovića Zmaja16 min

Škole/Fakulteti/Vrtići u blizini
- Osnovna škola (Osnovna škola Jožef Atila)9 min
- Srednja škola (Gimnazija Laza Kostić)4 min
- Vrtić (Dečiji vrtić Bambino)3 min
- Fakultet (Protestantski teološki fakultet)4 min

Zdravlje
- Bolnica (Ginekološka bolnica Ferona)11 min
- Klinika (Poliklinika Consilium)4 min
- Teretana (Teretana Čeličana 021)17 min
Hrana i piće
- Prodavnica (IDEA)5 min
- Restoran (Restoran Petlov salaš)11 min
- Kafana (Atos pub)12 min
Prevoz
- Taksi stajalište (Taxi prevoz Novi Sad)19 min
- Autobuska stanica (Feješ Klare - Kotorska)4 min
Ostale ustanove
- Banka (Erste Bank Ekspres ekspozitura)5 min
- Pošta (Pošta Novi Sad 21124)5 min
Kontakt oglašivača
Sasa Kalaba
▾Reklama▾
Krediti OTP banke
Bez troškova obrade kredita
NKS 4.50% - EKS 5.74%
Period otplate 96 -360 meseca
Saznaj više
Prikazana rata odnosi se na maksimalni period otplate. Kalkulator je informativnog karaktera.
* Nakon isteka 5 godina, prelazi se na varijabilnu kamatnu stopu
Osiguranje domaćinstva online
Osiguraj svoje domaćinstvo u slučaju požara...

