Trosoban stan na prodaju, Gospodara Vučića, 315.563€, 84m²


























315.563 €
3.757 € / m2
- Centralno grejanje
- U izgradnji
- Prostorije: kupatilo
- Oglas oglašava agencija pod reg. brojem 1219
- 1 garažno mesto
- 1 lift
- Zgrada poseduje: lođa
Opis oglasa
Na izuzetnoj lokaciji na Vračaru, u mirnoj ulici, a u neposrednoj blizini svih ključnih gradskih tačaka, gradi se savremena stambena zgrada namenjena onima koji žele kvalitet, funkcionalnost i dugoročnu vrednost. Blizina Autokomandae omogućava odličnu saobraćajnu povezanost sa centrom grada i ostalim delovima Beograda, dok se u okruženju nalaze prodavnice, kafići, restorani, škole, vrtići i linije javnog prevoza.
Savremena novogradnja sa fokusom na kvalitet
Zgrada spratnosti P+6+PS projektovana je sa jasnim akcentom na komfor, trajnost i estetiku. Trenutno je u izgradnji, sa planiranim završetkom gradnje sredinom 2027. godine, što budućim vlasnicima pruža mogućnost pravovremenog planiranja i izbora.
Tehničke i materijalne karakteristike:
- Grejanje: daljinsko (toplane), radijatori
- Hlađenje: klima uređaji
- Ulazna vrata: Bosalova
- Liftovi: Otis
- Auto-liftovi: nemačke proizvodnje
- Podne obloge: parket I klase
- Sanitarija i keramika: visokokvalitetna, I klasa
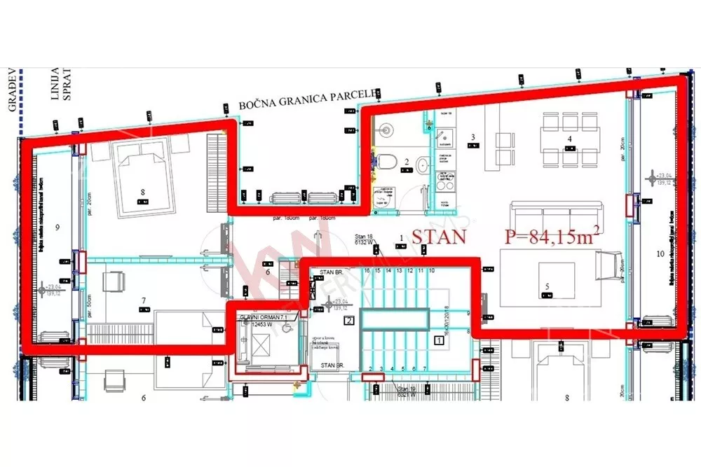
Trosoban stan – 84,15 m² funkcionalno osmišljenog prostora
Predstavljamo vam trosoban stan na povučenom spratu, idealan kako za život, tako i kao investiciju.
Struktura stana:
- dnevni boravak sa trpezarijom
- kuhinja
- 2 spavaće sobe
- kupatilo
- 2 hodnika
- 2 lođe
Prostor je racionalno organizovan, sa jasnim zonama za život i odmor, uz maksimalno iskorišćenje kvadrature.
Dodatne informacije
- Garažna mesta dostupna po ceni od 25.000 € + PDV
- Na cenu stanova se dodaje PDV
Ukoliko tražite kvalitetnu novogradnju na Vračaru, sa pouzdanim tehničkim rešenjima i odličnom lokacijom – ovo je prilika koju vredi razmotriti.
Kontaktirajte nas za više informacija, dostupnost stanova i zakazivanje prezentacije projekta.
*Sačuvaj oglas uz belešku i primaj obaveštenja o njihovom pojeftinjenju ili pojavljivanju sličnih
Prikaz stana na mapi
Parkovi u blizini
- Park mira Jelena Šantić6 min
- Čuburski park8 min
- Park vojvode Petra Bojovića14 min

Obeležja kulture u blizini
- Kuća Flašar4 min
- Spomenik Petru Kočiću5 min
- Osnovna škola Kralj Petar II Karađorđević4 min

Škole/Fakulteti/Vrtići u blizini
- Osnovna škola (Specijalna osnovna škola Dušan Dugalić)12 min
- Srednja škola (Druga ekonomska škola)5 min
- Vrtić (Dečiji vrtić Fića)4 min
- Fakultet (Univerzitet u Beogradu Fakultet bezbednosti)8 min

- Bolnica (Internistička ordinacija Endopraxis)5 min
- Klinika (Poliklinika Sim Medical Team)5 min
- Teretana (Sportska akademija Kočović)5 min
- Prodavnica (Ćošak market)1 min
- Restoran (Ranković ćevabdžinica)2 min
- Kafana (Pivnica JB)9 min
- Taksi stajalište (Taxi stanica)2 min
- Autobuska stanica (Maksima Gorkog)1 min
- Tramvajska stanica (Karađorđev Park)19 min
- Trolejbuska stanica (Vojvode Dragomira)8 min
- Banka (Banca Intesa)2 min
- Pošta (Pošta Beograd 32)3 min
Kontakt oglašivača
Krediti OTP banke
Saznaj više
Prikazana rata odnosi se na maksimalni period otplate. Kalkulator je informativnog karaktera.
* Nakon isteka 5 godina, prelazi se na varijabilnu kamatnu stopu


