Troiposoban stan na prodaju, Molerova, 455.000€, 96m²


























455.000 €
4.740 € / m2
- Etažno grejanje
- Uobičajeno stanje
- Prostorije: kupatilo, terasa
- Opremljenost: Prazno - interfon, klima
- Uknjiženo
- Oglas oglašava agencija pod reg. brojem 26
- Zgrada poseduje: lođa
- 1 telefonska linija
Opis oglasa
Prodaje se luksuzan, moderno sređen salonski stan sa dva ulaza, sam na trećem spratu sa liftom, u predratnoj četvorospratnoj zgradi sa ukrasnim kamenorezom na fasadi, u Molerovoj ulici. Odlično pozicioniran i tih, blizina Krunske i Kalenić pijace, a sto metara od Bulevara Kralja Aleksandra.
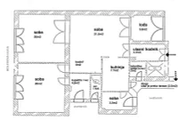
Ukupna površina stana je 96m2 (86m2 knjižene grejne površine plus lođa i terasa). Kompletno je renoviran pre nekoliko godina uključujući sve instalacije, unutrašnja i ulazna vrata, prozore, keramiku. Hrastov parket je u odličnom stanju, a grejanje na klimu ili etažno. Visina plafona je 3m. Stan je dvostran, gleda na ulicu i na veliko, mirno dvorište sa zelenilom.
Od prostorija ima: veće ulazno predsoblje sa dva plakara, dnevnu sobu, dve velike spavaće sobe, jednu manju (devojačku), kuhinju, kupatilo, gostinski toalet sa tušem, dugačku terasu, atraktivnu zastakljenu lođu (2m x 2m) i odvojenu prostoriju za veš mašinu i kotao. Poseduje i dve podrumske prostorije. Pogodnost je i mini market pored ulaza u zgradu.
Stan za svaku preporuku. Vredi pogledati. Agencijska provizija 2%.
*Sačuvaj oglas uz belešku i primaj obaveštenja o njihovom pojeftinjenju ili pojavljivanju sličnih
Prikaz stana na mapi
Parkovi u blizini
- Park vojvode Petra Bojovića3 min
- Park Mike Oklopa4 min
- Park Ćirila i Metodija7 min

Obeležja kulture u blizini
- Spomenik Nikoli Tesli4 min
- Spomenik Svetozaru Markoviću5 min
- Genčićeva kuća6 min

Škole/Fakulteti/Vrtići u blizini
- Osnovna škola (Osnovna škola Jovan Miodragović)8 min
- Srednja škola (Četrnaesta beogradska gimnazija)3 min
- Vrtić (Dečiji vrtić Nada Purić)5 min
- Fakultet (Univerzitet u Beogradu Arhitektonski fakultet)5 min

- Bolnica (Eterna Medical System)8 min
- Klinika (Poliklinika Dr Rončević)4 min
- Teretana (Fitness centar Anđela)4 min
- Prodavnica (Aman market)2 min
- Restoran (Restoran Chez Olivera)manje od 1 min
- Kafana (Pab Tramvaj)7 min
- Taksi stajalište (Taxi stanica)5 min
- Autobuska stanica (Tehnički Fakulteti)4 min
- Tramvajska stanica (Vukov spomenik)5 min
- Trolejbuska stanica (Katanićeva)7 min
- Banka (Eurobank Direktna)6 min
- Pošta (Pošta Beograd 17)4 min
Kontakt oglašivača
Krediti OTP banke
Saznaj više
Prikazana rata odnosi se na maksimalni period otplate. Kalkulator je informativnog karaktera.
* Nakon isteka 5 godina, prelazi se na varijabilnu kamatnu stopu


