Dvosoban stan na prodaju, Hadžipopovac, 196.000€, 54m²






















196.000 €
3.630 € / m2
- Stan u zgradi
- Etažno grejanje
- Novo
- Prostorije: kupatilo, terasa
- Opremljenost: internet
- Nije uknjiženo
- Oglas oglašava agencija pod reg. brojem 91
- 1 lift
- Kablovska
- 1 telefonska linija
Opis oglasa
Prodajemo stan na Paliluli u delo zvanom Hadzipopovac, mirna jednosmerna ulica u blizini hotela Zire.
Grejanje je etažno sa kotlom na struju, klima uredjaj.
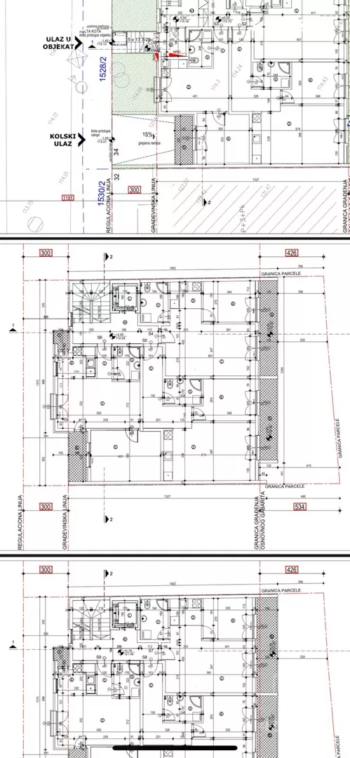
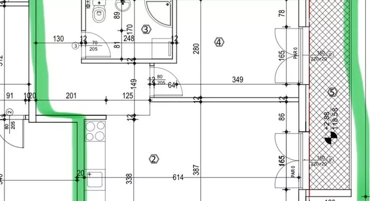
Raspored prostorija:
-hodnik
-dnevna soba sa kuhinjsko trpezarijskim delom
-spavaća soba
-kupatilo
-terasa.
Rok za useljenje je decembar 2026.godine.
Cena stana iznosi 3630 e/m2 + pdv.
Mogućnost kupovine parking mesta u garaži po ceni od 25000 e + pdv.
Agencijska provizija iznosi 2% od ugovorene cene.
*Sačuvaj oglas uz belešku i primaj obaveštenja o njihovom pojeftinjenju ili pojavljivanju sličnih
Prikaz stana na mapi
Kontakt oglašivača
Krediti OTP banke
Saznaj više
Prikazana rata odnosi se na maksimalni period otplate. Kalkulator je informativnog karaktera.
* Nakon isteka 5 godina, prelazi se na varijabilnu kamatnu stopu


