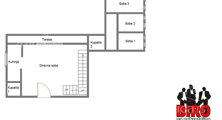
Četvorosoban stan na prodaju, Grbavica, 185.400€, 111m²






















185.400 €
1.670 € / m2
- Stan u zgradi
- Centralno grejanje
- Prostorije: kupatila (2), terasa
- Uknjiženo
- Oglas oglašava agencija pod reg. brojem 951
- 2 parking mesta, parking u dvorištu zgrade
Opis oglasa
Super komforan dupleks stan na odličnoj lokaciji. - Grbavica!
KONTAKT:: 065... (prikaži broj telefona) 065... (prikaži broj telefona)
U blizini se nalaze supermarketi i ostali potrebni objekti, izuzetna povezanost sa gradskim prevozom, na svega 15 minuta od Dunava, Štranda, Keja....
Ukoliko želite biti na dobroj lokaciji, imati svoju zonu mira i lični komfor, ovaj stan je idealan za vas!
Za detaljnije informacije pozvati!
ŠIFRA: 1010277
KONTAKT:: 065... (prikaži broj telefona) 065... (prikaži broj telefona)
(Biro za nekretnine d.o.o., Novi Sad, upisan u Reg. posrednika br. 951)
*Sačuvaj oglas uz belešku i primaj obaveštenja o njihovom pojeftinjenju ili pojavljivanju sličnih
Prikaz stana na mapi
Parkovi u blizini
- Futoški park17 min
- Limanski park17 min
- Dunavski park34 min

Obeležja kulture u blizini
- Dvorac Eđšeg5 min
- Jodna Banja8 min
- Galerija Matice srpske12 min

Škole/Fakulteti/Vrtići u blizini
- Osnovna škola (Osnovna škola Vasa Stajić)5 min
- Srednja škola (Medicinska škola 7. april)6 min
- Vrtić (Dečiji vrtić Zmaj)6 min
- Fakultet (Pravni fakultet za privredu i pravosuđe Univerzitet Privredna akademija)8 min

- Bolnica (Opšta bolnica sa porodilištem Gea)7 min
- Klinika (Poliklinika Sons)5 min
- Teretana (Art Gymnasium fitness)4 min
- Prodavnica (Komision Žera)4 min
- Restoran (Bistro La Mer)4 min
- Kafana (Bratis Pub)10 min
- Taksi stajalište (Gradski Taxi)6 min
- Autobuska stanica (Cara Lazara - Balzakova)4 min
- Banka (Raiffeisen Bank)5 min
- Pošta (Pošta Novi Sad 21102)5 min
Kontakt oglašivača
Krediti OTP banke
Saznaj više
Prikazana rata odnosi se na maksimalni period otplate. Kalkulator je informativnog karaktera.
* Nakon isteka 5 godina, prelazi se na varijabilnu kamatnu stopu


