Jednosoban stan na prodaju, Vojvode Mišića, 93.800€, 45m²




93.800 €
2.084 € / m2
- Stan u zgradi
- Grejanje na gas
- U izgradnji
- U procesu uknjižavanja
- Oglas oglašava agencija pod reg. brojem 1707
Opis oglasa
🏢 Na prodaju – stan u izgradnji, Šabac (ul. Vojvode Mišića)
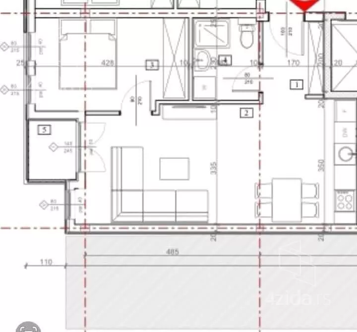
U ponudi je moderan stan površine 44,88 m², smešten na 1. spratu kvalitetne novogradnje u ulici Vojvode Mišića.
Idealan izbor za stanovanje ili kao investicija za izdavanje.
🌟 Osnovne karakteristike: • Površina: 44,88 m²
• Sprat: 1.
• Grejanje na gas
• Funkcionalan raspored
• Savremena i kvalitetna gradnja
🏢 Zgrada spratnosti: Po + P + 2 + Ps
💶 Cena: 1.900 €/m² + PDV
📌 U ponudi je više stanova različitih struktura u istoj zgradi.
📞 064... (prikaži broj telefona)
🏠 STAN 015 DOO, reg. br. 1707
🔑 Odlična prilika za kupovinu u novogradnji na dobroj lokaciji.
*Sačuvaj oglas uz belešku i primaj obaveštenja o njihovom pojeftinjenju ili pojavljivanju sličnih
Prikaz stana na mapi
Parkovi u blizini
- Gradski park Šabac12 min
- Veliki park18 min
- Šuma Letnjikovac30 min

Obeležja kulture u blizini
- Spomenik žrtvama Balkanskih i Prvog svetskog rata4 min
- Spomenik Ivanu Kneževiću5 min
- Zgrada Polugimnazije9 min

Škole/Fakulteti/Vrtići u blizini
- Osnovna škola (Osnovna škola Jevrem Obrenović)6 min
- Srednja škola (Šabačka gimnazija)8 min
- Vrtić (Dečiji vrtić Mladost)11 min
- Fakultet (Visoka škola strukovnih studija za vaspitače Šabac)4 min

- Bolnica (Opšta bolnica Dr Laza K. Lazarević Šabac)7 min
- Klinika (Poliklinika MD)5 min
- Teretana (Teretana Casper)9 min
- Prodavnica (VUM market)manje od 1 min
- Restoran (Restoran Estrada)7 min
- Kafana (Trotter's Pub)9 min
- Taksi stajalište (Taxi stanica)7 min
- Autobuska stanica (Bolnica)3 min
- Banka (OTP banka)7 min
- Pošta (Pošta Šabac 3)5 min
Kontakt oglašivača
Krediti OTP banke
Saznaj više
Prikazana rata odnosi se na maksimalni period otplate. Kalkulator je informativnog karaktera.
* Nakon isteka 5 godina, prelazi se na varijabilnu kamatnu stopu


