Četvorosoban stan na prodaju, Gradske lokacije, 149.000€, 97m²


149.000 €
1.536 € / m2
- Stan u zgradi
- Grejanje na gas
- U procesu uknjižavanja
- Oglas oglašava agencija pod reg. brojem 266
Opis oglasa
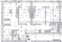
Prodajemo četvorosoban stan površine 97 m² u izgradnji, u zgradi sa liftom, Kruševac,
Stan za kupce koji žele maksimalan komfor, prostor i dugoročnu sigurnost.
Veliki dnevni boravak sa kuhinjom i trpezarijom izlazi na terasu, a sve spavaće sobe takođe imaju direktan izlaz na terasu — što je retkost na tržištu i veliki kvalitet ovog stana.
Tri spavaće sobe, kupatilo i dodatni toalet omogućavaju potpunu funkcionalnost i privatnost.
✔ terasa (izlaz iz svih soba)
✔ tri spavaće sobe
✔ kupatilo + toalet
✔ lift
✔ grejanje na gas – niska potrošnja
✔ inverter klima
✔ PVC stolarija i tarket podovi
Kvalitet gradnje i pažljivo birani materijali čine ovu nekretninu dugoročno sigurnom investicijom.
Kupovina direktno od investitora – cena je sa PDV-om.
Kupci prvog stana imaju pravo na povraćaj PDV-a.
Rok završetka: februar 2028.
Cena: 149.000 € (SA PDV-OM)
Dinamika plaćanja:
– 50% odmah: 75.000 €
– 25% u toku izgradnje: 37.000 €
– 25% po završetku: 37.000 €
Ova kvadratura i raspored predstavljaju jednu od najređih ponuda.
Dostupnost je ograničena — uz napredak gradnje i izbor najboljih stanova, cena će rasti.
Za rezervaciju i izbor sprata pozovite odmah.
Za više informacija i razgledanje pozovite:
063... (prikaži broj telefona)
037... (prikaži broj telefona)
Tu smo za vas.
Nekretnine KRUNA – više od 30 godina poverenja.
*Sačuvaj oglas uz belešku i primaj obaveštenja o njihovom pojeftinjenju ili pojavljivanju sličnih
Prikaz stana na mapi
Parkovi u blizini
- Park minijatura Srbija16 min
- Zabavni park Šarengrad24 min

Obeležja kulture u blizini
- Spomenik rodoljubima2 min
- Spomenik kosovskim junacima5 min
- Spomenik mira10 min

Škole/Fakulteti/Vrtići u blizini
- Osnovna škola (Osnovna škola Dragomir Marković)8 min
- Srednja škola (Gimnazija Kruševac)2 min
- Vrtić (Dečiji vrtić Dečiji klub)3 min
- Fakultet (Visoka hemijsko tehnološka škola strukovnih studija Kruševac)2 min

- Bolnica (Opšta bolnica Kruševac)11 min
- Klinika (Poliklinika Multimedika)4 min
- Teretana (Cafe bar & gym Mr. Hill)33 min
- Prodavnica (IDEA)1 min
- Restoran (Kafanica Nova priča)2 min
- Kafana (Gradska kafana)3 min
- Autobuska stanica (Fontana)4 min
- Banka (NLB Komercijalna banka)manje od 1 min
- Pošta (Pošta 37000 (šalter))8 min
Kontakt oglašivača
Krediti OTP banke
Saznaj više
Prikazana rata odnosi se na maksimalni period otplate. Kalkulator je informativnog karaktera.
* Nakon isteka 5 godina, prelazi se na varijabilnu kamatnu stopu


