Troiposoban stan na prodaju, Futog, 128.000€, 80m²




















128.000 €
1.600 € / m2
- Stan u zgradi
- Oglas oglašava agencija pod reg. brojem 482
Opis oglasa
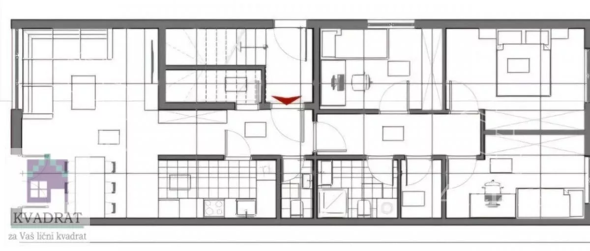
Na prodaju moderan i funkcionalan stan površine 80m², smešten na trećem (ujedno i poslednjem) spratu novije zgrade u mirnom delu Futoga.
Stan je odlično organizovan, sa prostranim dnevnim boravkom, trpezarijom i kuhinjom, kao i 3 komforne spavaće sobe. Idealan je za porodičan život.
Osnovne karakteristike:
• Površina: 80m²
• Sprat: 3/3 (poslednji sprat)
• Grejanje: gasno, panelni radijatori
• PVC stolarija
• Kvalitetna izolacija
• Parking mesto uključeno u cenu
Stan se nalazi u tihom i prijatnom okruženju, idealnom za miran život, a u neposrednoj blizini su:
• škola
• vrtić
• prodavnice
Odlična prilika za kupovinu kvalitetne nekretnine u lepom i mirnom delu Futoga.
Kontakt:
062... (prikaži broj telefona)
i
069... (prikaži broj telefona)
Agencijska provizija 3% (min. 1000 €)
Ozbiljnost, predanost poslu, kao i visok stepen profesionalizma ističu agenciju Kvadrat na tržištu nekretnina kao veoma sigurnog i pouzdanog partnera svakoj porodici, pojedincu ili preduzeću koje se opredeli da prodaje, kupuje ili iznajmi nekretninu.
Prepustite brigu pronalaženja željene nekretnine našem iskusnom timu licenciranih agenata, uz obezbeđenu pravnu sigurnost.
*Sačuvaj oglas uz belešku i primaj obaveštenja o njihovom pojeftinjenju ili pojavljivanju sličnih
Prikaz stana na mapi
Obeležja kulture u blizini
- Dvorac Hadik-Kotek17 min
- Mađarska reformatorska crkva sa zgradom parohijskog doma24 min
- Spomen ploča Albertu Ajnštajnu i Milevi Marić42 min

Škole/Fakulteti/Vrtići u blizini
- Osnovna škola (Osnovna škola Desanka Maksimović)18 min
- Srednja škola (Poljoprivredna škola Futog)17 min
- Vrtić (Dečiji vrtić Crvenkapa)18 min
- Fakultet (Protestantski teološki fakultet)36 min

- Bolnica (Opšta bolnica New Hospital)31 min
- Klinika (Poliklinika Consilium)36 min
- Teretana (Fitness studio Top Form)33 min
- Prodavnica (Mikromarket)48 min
- Restoran (Restoran Kurjak)49 min
- Autobuska stanica (Futog - Milan Vidak - Okretnica)41 min
- Banka (NLB Komercijalna banka)17 min
- Pošta (Pošta Futog 21408)15 min
Kontakt oglašivača
Krediti OTP banke
Saznaj više
Prikazana rata odnosi se na maksimalni period otplate. Kalkulator je informativnog karaktera.
* Nakon isteka 5 godina, prelazi se na varijabilnu kamatnu stopu


