Jednoiposoban stan na prodaju, Duvanište, 103.200€, 43m²




103.200 €
2.400 € / m2
- Stan u zgradi
- Etažno grejanje
- Novo
- Prostorije: terasa
- Opremljenost: Prazno - interfon, kanalizacija
- Oglas oglašava agencija pod reg. brojem 1596
- 1 garažno mesto
- 1 parking mesto
- 1 lift
- Kanalizacija
- Godina izgradnje: 2026.
- Zgrada poseduje: podrum, lođa, video nadzor
Opis oglasa
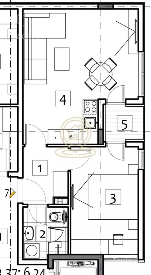
Na prodaju 1.5 stan u novogradnji, dostupan na 1. spratu zgrade sa liftom na idealnoj lokaciji u Duvanistu.
Kvadratura: 43, 54m²
Objekat: Prizemlje + 4 sprata
Sastoji se od:
Uaznog hodnika
Dnevne sobe sa trpezarijom i kuhinjom
Spavace sobe
Kupatila
Lodje
Mogucnost kupovine parking ili garaznog mesta. Uz stan se dobija ozidana podrumska prostorija.
Objekat u izgradnji na idealnoj i traženoj lokaciji u Duvaništu, između Zone 2 (Bulevar Nemanjića) i centra Duvaništa, u ponudi su stanovi u novogradnji površine od 40 m² do 69m².
KARAKTERISTIKE OBJEKTA:
Objekat: podrum + prizemlje + 4 sprata
Građen termoenergetskim blokom – odlična toplotna i zvučna izolacija
Tarket parket, alu stolarija, granitna keramika 120x60
Grejanje po izboru kupca: etažno, inverter klima ili norveški radijatori
Zgrada poseduje podrum od 520 m² – uz svaki stan ide ozidana podrumska prostorija
Mogućnost kupovine parking ili garažnog mesta
Povracaj pdv-a za prvu nekretninu.
Cena 2000e +pdv
Rok zavrsetka kraj 2027.
Dinamika placanja u dogovoru sa investitorom. Moguca kupovina putem stambenog kredita.
Stanovi su idealni kako za porodično stanovanje, tako i za investiciju!
Agencijska provizija u skladu sa opstim uslovima poslovanja 1%
Kompas Nekretnine – vaš pouzdan partner u kupovini i prodaji nekretnina.
*Sačuvaj oglas uz belešku i primaj obaveštenja o njihovom pojeftinjenju ili pojavljivanju sličnih
Prikaz stana na mapi
Parkovi u blizini
- Park Svetog Save14 min
- Park složnih komšija21 min
- Park Čair32 min

Obeležja kulture u blizini
- Ćele kula5 min
- Zgrada Pasterovog zavoda8 min
- Ranohrišćanska grobnica9 min

Škole/Fakulteti/Vrtići u blizini
- Osnovna škola (Osnovna škola Dušan Radović)6 min
- Srednja škola (Ugostiteljsko-turistička škola Niš)4 min
- Vrtić (Dečiji vrtić Leptirić)4 min
- Fakultet (Univerzitet u Nišu Prirodno matematički fakultet)5 min

- Bolnica (Opšta bolnica Sava Surgery)6 min
- Klinika (Poliklinika za laboratorijsku dijagnostiku Neolab)11 min
- Teretana (Top Form Plus Aerobik Centar)11 min
- Prodavnica (IDEA)5 min
- Restoran (Kafana M&J)6 min
- Kafana (Kafana Dva jarana)6 min
- Taksi stajalište (Duga taksi)19 min
- Autobuska stanica (Đerdapska)3 min
- Banka (UniCredit Bank)13 min
- Pošta (Pošta Niš 11)10 min
Kontakt oglašivača
Krediti OTP banke
Saznaj više
Prikazana rata odnosi se na maksimalni period otplate. Kalkulator je informativnog karaktera.
* Nakon isteka 5 godina, prelazi se na varijabilnu kamatnu stopu


