Petosoban stan na prodaju, Budimska bb, 625.500€, 145m²














625.500 €
4.314 € / m2
- Stan u zgradi
- Grejanje na toplotnu pumpu
- U izgradnji
- Prostorije: kupatilo, toalet, terasa
- Opremljenost: Prazno - internet
- Nije uknjiženo
- Oglas oglašava agencija pod reg. brojem 5
- 1 lift
- Tip interneta: kablovska
- 1 telefonska linija
Opis oglasa
Prodaje se luksuzan petosoban stan u jednoj od najkvalitetnijih novogradnji na Dorćolu, u blizini Bajloni pijace i Skadarlije. Lokacija pruža ,iran ambijent u samom centru grada i omogućava laku dostupnost glavnim saobraćajnicama i brojnim sadržajima za udoban gradski život.
Zgrada se odlikuje elegantnom fasadom, vrhunskim standardima gradnje i materijalima najvišeg kvaliteta. Ugrađeni su podni konvektori i toplotne pumpe za svaki stan posebno, a visoki plafoni i velike staklene površine stvaraju osećaj luksuza, prostranosti i svetlosti.
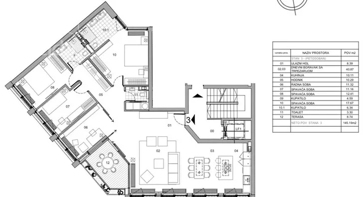
Stan je smešten na drugom spratu, trostrano je orijentisan i ima odličan raspored prostorija. Sastoji se od prostranog dnevnog boravka sa izlazom na terasu, kuhinje sa trpezarijom, četiri spavaće sobe, dva kupatila i toaleta.
Zahvaljujući svojoj strukturi i poziciji, ova nekretnina je idealna za porodičan život u samom centru grada. Završetak gradnje planiran je za kraj 2026. godine. Mogućnost kupovine garažnog mesta – cena 35.000 € (PDV nije uračunat). Za svaku preporuku!
Posrednička naknada se obračunava u skladu sa Opštim uslovima poslovanja Posrednika DIVIS NEKRETNINE d.o.o.
*Sačuvaj oglas uz belešku i primaj obaveštenja o njihovom pojeftinjenju ili pojavljivanju sličnih
Prikaz stana na mapi
Parkovi u blizini
- Pančićev park16 min
- Park Hadžipopovac16 min
- Park Starine Novaka16 min

Obeležja kulture u blizini
- Sebilj česma5 min
- Prva varoška bolnica5 min
- Spomenik despotu Stefanu Lazareviću5 min

Škole/Fakulteti/Vrtići u blizini
- Osnovna škola (Osnovna škola Vlada Aksentijević)5 min
- Srednja škola (Prva ekonomska škola)5 min
- Vrtić (Dečiji vrtić Dambo)5 min
- Fakultet (Fakultet za menadžment malih i srednjih preduzeća)4 min

- Bolnica (Bolnica za estetsku i rekonstruktivnu hirurgiju Orea)3 min
- Klinika (Poliklinika Endo Top)6 min
- Teretana (Extreme Gym)2 min
- Prodavnica (Super Diskont)2 min
- Restoran (Restoran JaM)manje od 1 min
- Kafana (Pivnica Žirafa 23)5 min
- Taksi stajalište (Taxi stanica)6 min
- Autobuska stanica (Gundulićev Venac)2 min
- Tramvajska stanica (Pijaca Skadarlija)6 min
- Trolejbuska stanica (Jaše Prodanovića)11 min
- Banka (ProCredit Bank)4 min
- Pošta (Pošta Beograd 36)3 min
Kontakt oglašivača
Krediti OTP banke
Saznaj više
Prikazana rata odnosi se na maksimalni period otplate. Kalkulator je informativnog karaktera.
* Nakon isteka 5 godina, prelazi se na varijabilnu kamatnu stopu






















