Jednoiposoban stan na prodaju, Donja Vrežina, 90.000€, 50m²

90.000 €
1.800 € / m2
- Stan u zgradi
- Etažno grejanje
- Novo
- Prostorije: terasa
- Opremljenost: Prazno - klima
- Oglas oglašava agencija pod reg. brojem 1599
- 1 lift
- Zgrada poseduje: video nadzor
Opis oglasa
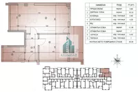
Niš, Donja Vrežina, Vrežinski Bulevar - Prodaje se 1.5 stan, 50m2, u novogradnji u neposrednoj blizini Vrežinskog Bulevara. Trenutno je ova kvadratura raspoloživa na više spratova u zgradi od ukupno 4. Zgrada poseduje lift. Stan ove kvadrature poseduje prostran dnevni boravak sa trpezarijom i kuhinjskim delom, odvojenu spavaću sobu, predsoblje, terasu i kupatilo. Grejanje je predviđeno na inverter klimu, a postoji i mogućnost izbora (kotao na struju), u skladu sa zahtevima budućih vlasnika. Kvalitet gradnje je izvanredan, više detalja putem kontakta u nastavku.
Cena stana u trenutnoj fazi gradnje iznosi 90000eur. Mogućnost kupovine parking mesta. I za prve kupce, postoji mogućnost povraćaja PDV-a.
Rok završetka je predviđen za Decembar 2027. godine. Kontakt za više informacija:
060... (prikaži broj telefona)
,
063... (prikaži broj telefona)
.
BEZ PROVIZIJE ZA KUPCE.
Agencija Leonidas nekretnine upisana je u Registar posrednika pod brojem 1599.
*Sačuvaj oglas uz belešku i primaj obaveštenja o njihovom pojeftinjenju ili pojavljivanju sličnih
Prikaz stana na mapi
Parkovi u blizini
- Park Svetog Save39 min
- Park složnih komšija45 min

Obeležja kulture u blizini
- Ćele kula10 min
- Ranohrišćanska grobnica11 min
- Ranohrišćanska bazilika12 min

Škole/Fakulteti/Vrtići u blizini
- Osnovna škola (Osnovna škola Miroslav Antić)6 min
- Srednja škola (Ugostiteljsko-turistička škola Niš)8 min
- Vrtić (Dečiji vrtić Mazza)7 min
- Fakultet (Univerzitet u Nišu Prirodno matematički fakultet)9 min

- Bolnica (Bolnica Đorić)5 min
- Klinika (Poliklinika Bocokić)5 min
- Teretana (Fitness centar TNT Gym)6 min
- Prodavnica (Metla diskont)11 min
- Restoran (Restoran Extra Lion MD)8 min
- Kafana (Kafana Dva jarana)27 min
- Taksi stajalište (Duga taksi)43 min
- Autobuska stanica (Skopska)4 min
- Banka (Poštanska štedionica)6 min
- Pošta (Pošta Niš 3)8 min
Kontakt oglašivača
Krediti OTP banke
Saznaj više
Prikazana rata odnosi se na maksimalni period otplate. Kalkulator je informativnog karaktera.
* Nakon isteka 5 godina, prelazi se na varijabilnu kamatnu stopu


