Četvorosoban stan na prodaju, Loznička, 1.000.000€, 253m²






1.000.000 €
3.953 € / m2
- Stan u zgradi
- Etažno grejanje
- Novo
- Prostorije: kupatilo, terasa
- Uknjiženo
- Oglas oglašava agencija pod reg. brojem 1299
- 1 parking mesto
Opis oglasa
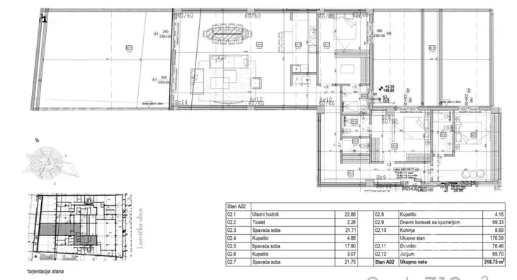
Predstavljamo vam četvorosoban stan na prizemlju u Lozničkoj ulici, u srcu Vračara, površine 253 m². U oglašenu cenu je uračunat PDV. Stan se sastoji od dnevne sobe u konceptu otvorenog prostora sa trpezarijom i odvojenom kuhinjom, glavne spavaće sobe sa garderoberom i kupatilom, još dve spavaće sobe, dodatnog kupatila i terase kojoj se pristupa iz dnevne sobe. Zgrada se gradi od najkvalitetnijih materijala. Fasada, izrađena od cigle, kamena i stakla, savršeno se uklapa u ambijent ulice. Enterijer zgrade krasi prostrano predvorje koje razdvaja objekat na dva krila. U središtu zgrade nalazi se atrijumska bašta površine preko 130 kvadratnih metara. U neposrednoj blizini nalaze se Hram Svetog Save, Kalenićeva pijaca, Bulevar kralja Aleksandra i Vukov spomenik. Idealan prostor za porodični život.
Postoji mogućnost kupovine parking mesta po ceni od 40.000 evra sa uračunatim PDV-om.
Kupac ne plaća agencijsku proviziju!
We present to you a four-bedroom apartment on the ground floor of Loznička Street, in the heart of Vračar, with a total area of 253 m². The listed price includes VAT.
The apartment consists of an open-plan living room with a dining area and a separate kitchen, a master bedroom with a walk-in closet and bathroom, two additional bedrooms, another bathroom, and a terrace accessible from the living room.
The building is constructed using the highest quality materials. The façade, made of brick, stone, and glass, fits perfectly into the character of the street. The interior of the building features a spacious foyer that separates the property into two wings.
At the center of the building, there is an atrium garden of over 130 square meters.
The Temple of Saint Sava, Kalenić Market, King Alexander Boulevard, and Vuk’s Monument are in close proximity. An ideal space for family living.
There is an option to purchase a parking space for €40,000, VAT included.
No agency commission for the buyer!
Предлагаем вам четырёхкомнатную квартиру на первом этаже в Лозничкой улице, в самом сердце Врачара, общей площадью 253 м². В объявленную цену включён НДС.
Квартира включает гостиную открытой планировки с обеденной зоной и отдельной кухней, главную спальню с гардеробной и ванной комнатой, ещё две спальни, дополнительную ванную комнату и террасу с выходом из гостиной.
Здание строится из материалов высочайшего качества. Фасад, выполненный из кирпича, камня и стекла, идеально вписывается в атмосферу улицы. Интерьер здания украшен просторным вестибюлем, который разделяет объект на два крыла.
В центре здания расположен атриум-сад площадью более 130 квадратных метров.
В непосредственной близости находятся Храм Святого Саввы, рынок Каленић, бульвар Короля Александра и памятник Вуку. Идеальное место для семейной жизни.
Есть возможность приобрести парковочное место по цене 40 000 евро с включённым НДС.
Покупатель не платит агентскую комиссию!
*Sačuvaj oglas uz belešku i primaj obaveštenja o njihovom pojeftinjenju ili pojavljivanju sličnih
Prikaz stana na mapi
Parkovi u blizini
- Park vojvode Petra Bojovića9 min
- Čuburski park10 min
- Park Ćirila i Metodija11 min

Obeležja kulture u blizini
- Spomenik Ćirilu i Metodiju4 min
- Spomenik Vuku Karadžiću4 min
- Spomenik Puškinu4 min

Škole/Fakulteti/Vrtići u blizini
- Osnovna škola (Osnovna škola Jovan Miodragović)5 min
- Srednja škola (Srednja škola Arhimed)6 min
- Vrtić (Dečiji vrtić Diznilend)4 min
- Fakultet (Univerzitet u Beogradu Geografski fakultet)6 min

- Bolnica (Specijalna bolnica za oftalmologiju Miloš Klinika)3 min
- Klinika (Poliklinika Panacea)5 min
- Teretana (Fitness studio Be fit)4 min
- Prodavnica (Cold Pressok - ceđeni sokovi)manje od 1 min
- Restoran (Restoran Dimitrije Steak & Pizza)manje od 1 min
- Kafana (Bife Loznička osam)manje od 1 min
- Taksi stajalište (Radio Beo Taxi)6 min
- Autobuska stanica (Pijaca „Kalenić“)6 min
- Tramvajska stanica (Vukov spomenik)12 min
- Trolejbuska stanica (Vojvode Dragomira)5 min
- Banka (Addiko Bank)8 min
- Pošta (Pošta Beograd 34)5 min
Kontakt oglašivača
Stambeni krediti

- Period otplate od
96 -360 meseca
- NKS 4.75%
EKS 5.74%
Fiksna kamatna stopa
- Bez troškova obrade kredita
stranici kreditnih kalkulatora
Keš krediti
Period otplate
13 meseci
