Dvosoban stan na prodaju, Vojvode Stepe, 209.994€, 48m²




209.994 €
4.375 € / m2
- Podno grejanje
- Novo
- Prostorije: kupatilo, terasa
- Opremljenost: Prazno - interfon, klima
- Oglas oglašava agencija pod reg. brojem 1347
- 1 lift
- 1 telefonska linija
Opis oglasa
Novogradnja luksuzne gradnje u početnoj fazi izgradnje, osmospratna pametna zgrada, sa liftovima, izuzetnog kvaliteta gradnje, nalazi se na Opštini Voždovac u ulici Vojvode Stepe u neposrednoj blizini autokomande, na izvanrednoj lokaciji u stambeno - poslovnoj zoni. U neposrednoj blizini se nalaze svi relevantni objekti za nesmetano funkcionisanje života, kao i poslovni, ugostiteljski objekti, javni objekti... dostupnost javnog prevoza. Pristup ulazu u zgradu je sa ulice, takođe u obezbeđenu garažu, u prizemlju zgrade je poslovni deo - lokal. Zgrada i stanovi su opremljeni pametnim sistemima. Očekivani završetak radova i useljenje leto 2027.godine.
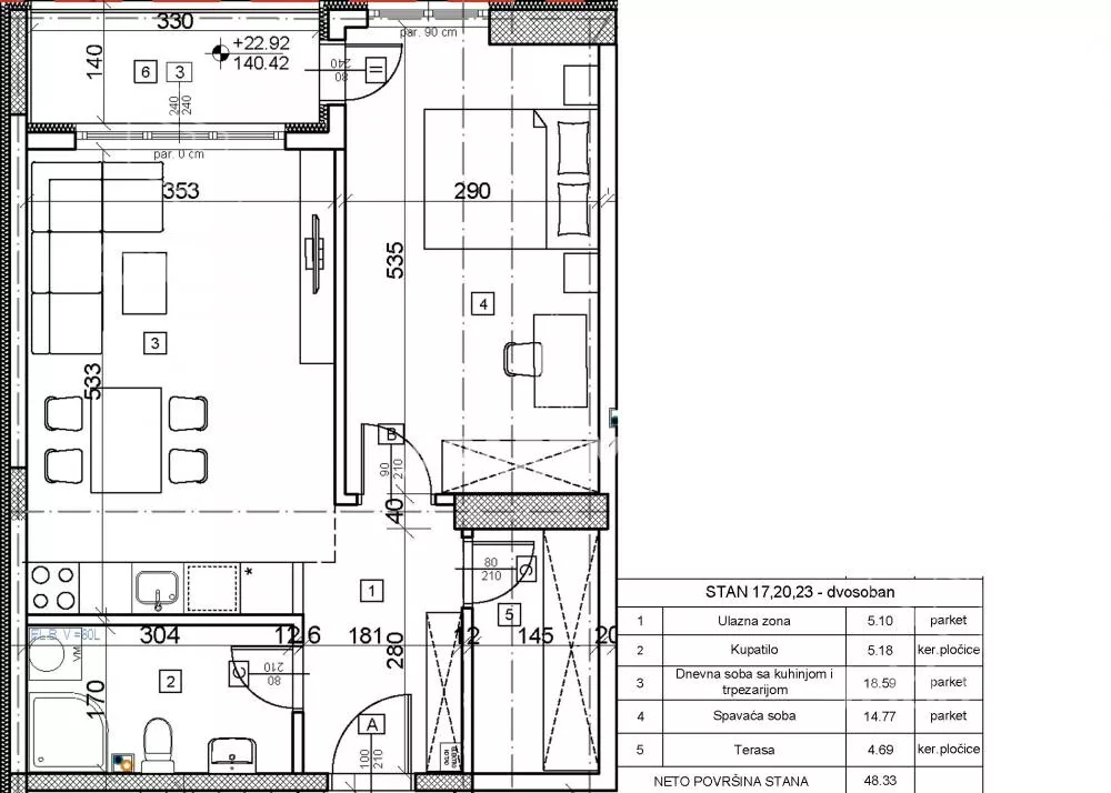
Stan ukupne projektovane kvadrature 48.33m2 koji je predmet prodaje nalazi se na petom spratu, po strukturi dvosoban. Sastoji se iz dnevnog boravka spojenog sa trpezarijom i kuhinjom, zasebne spavaće sobe, kupatila i terase. Dostupni su isti stanovi na drugim spratovima.
Grejanje je podno snabdeveno preko sopstvenog kotla na struju, takođe grejanje i hlađenje putem ugrađenog inverter klima uređaja. Spoljna stolarija PVC, sigurnosna vrata, podovi su pokriveni keramikom zbog podnog grejanja, odlična keramika i sanitarije.
U zgradi su dostupna garažna mesta za prometovanje.
Izražena cena stana je cena sa uračunatim PDV-om.
Stan se prodaje BEZ PROVIZIJE za kupca, kupovina direktno od investitora.
Za više informacija otvoreni smo za Vaš poziv.
Kontakt telefon 060... (prikaži broj telefona) . Hvala Vam na pregledu oglasa. Broj agencije u Registru posrednika 1347. Mapa je informativnog karaktera, ne prikazuje tačnu lokaciju nekretnine.
Kontakt telefon 060... (prikaži broj telefona) . Hvala Vam na pregledu oglasa. Broj agencije u Registru posrednika 1347. Mapa je informativnog karaktera, ne prikazuje tačnu lokaciju nekretnine.
*Sačuvaj oglas uz belešku i primaj obaveštenja o njihovom pojeftinjenju ili pojavljivanju sličnih
Prikaz stana na mapi
Parkovi u blizini
- Banjička šuma11 min
- Park Jove Ilića14 min
- Bajronov park25 min

Obeležja kulture u blizini
- Osnovna škola Kralj Petar II Karađorđević10 min
- Spomenik heroju Milanu Tepiću10 min
- Stara mehana u Kumodražu11 min

Škole/Fakulteti/Vrtići u blizini
- Osnovna škola (Osnovna škola Filip Filipović)8 min
- Srednja škola (Srednja medicinska škola Milutin Milanković)5 min
- Vrtić (Dečiji vrtić Panoramica)6 min
- Fakultet (Univerzitet u Beogradu Saobraćajni fakultet)4 min

- Bolnica (Opšta bolnica Medicinski sistem Beograd MSB)1 min
- Klinika (Poliklinika Nera)9 min
- Teretana (Athletic's Gym fitness centar)7 min
- Prodavnica (Maxi Supermarket)2 min
- Restoran (Restoran Pastino)3 min
- Kafana (Kompas pivara)9 min
- Taksi stajalište (Taxi stanica)6 min
- Autobuska stanica (Trošarina)6 min
- Tramvajska stanica (Saobraćajni Fakultet)1 min
- Trolejbuska stanica (Paunova)13 min
- Banka (Erste Bank)6 min
- Pošta (Pošta Beograd 39)4 min
Kontakt oglašivača
Krediti OTP banke
Saznaj više
Prikazana rata odnosi se na maksimalni period otplate. Kalkulator je informativnog karaktera.
* Nakon isteka 5 godina, prelazi se na varijabilnu kamatnu stopu


