Trosoban stan na prodaju, Kralja Stefana Prvovenčanog, 165.000€, 78m²


























165.000 €
2.115 € / m2
- Centralno grejanje
- Novo
- Prostorije: kupatilo, terasa
- Opremljenost: interfon
- Uknjiženo
- Oglas oglašava agencija pod reg. brojem 1158
- 1 garažno mesto
- 1 lift
- Zgrada poseduje: prilaz za invalide
Opis oglasa
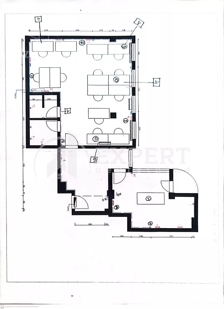
Na prodaju trosoban stan 78m2, vodi se kao poslovni prostor, na jednoj od najtraženijih lokacija, u blizini crkve Sv. Luka. Stan se nalazi na drugom spratu, novije zgrade sa liftom. Stan se sastoji od jedne veće prostorije, gde se nalazi kupatilo i kuhinja i druge komforne prostorije sa terasom. Stan je u novijem, očuvanom stanju, na podovima je laminat, storaija je drvo-aluminijum, grejanje je centralno. Postoji mogućnost dobijanja trosobnog stana, pregrađivanjem prostora, po želji i potrebama budućeg vlasnika. Stan je komforan i svetao, jugoistočne orjentacije. Odlična nekretnina kako za život, tako i u funkciji poslovnog prostora. Uknjižen, privatna svojina 1/1, sa upotrebnom dozvolom, za dodatne informacije kontaktirajte agenciju.
*Sačuvaj oglas uz belešku i primaj obaveštenja o njihovom pojeftinjenju ili pojavljivanju sličnih
Prikaz stana na mapi
Parkovi u blizini
- Park heroja NOB-a6 min
- Park Čair11 min
- Park složnih komšija15 min

Obeležja kulture u blizini
- Zgrada Oficirskog doma6 min
- Spomenik oslobodiocima Niša5 min
- Spomenik Stevanu Sremcu i Kalči7 min

Škole/Fakulteti/Vrtići u blizini
- Osnovna škola (Osnovna škola Vožd Karađorđe)3 min
- Srednja škola (Gimnazija Bora Stanković)3 min
- Vrtić (Predškolska ustanova Pčelica Niš)3 min
- Fakultet (Univerzitet u Nišu Filozofski fakultet)3 min

- Bolnica (Urgentni centar Niš)5 min
- Klinika (Poliklinika Life Impuls)6 min
- Teretana (Fittess & Wellness Top Form)5 min
- Prodavnica (Market Džek Danijels)2 min
- Restoran (Restoran Mascaron)2 min
- Kafana (Ministarstvo beer bar)2 min
- Taksi stajalište (Cool taksi)10 min
- Autobuska stanica (Dom Vojske Srbije)1 min
- Banka (Adriatic bank)1 min
- Pošta (Pošta Niš 7)2 min
Kontakt oglašivača
Krediti OTP banke
Saznaj više
Prikazana rata odnosi se na maksimalni period otplate. Kalkulator je informativnog karaktera.
* Nakon isteka 5 godina, prelazi se na varijabilnu kamatnu stopu


