Dvoiposoban stan na prodaju, Rajićeva, 190.830€, 66m²








190.830 €
2.891 € / m2
- Etažno grejanje
- U izgradnji
- Prostorije: kupatilo, toalet, terasa
- Opremljenost: Prazno - interfon
- Uknjiženo
- Oglas oglašava agencija pod reg. brojem 1487
- 1 parking mesto
- 1 lift
- Zgrada poseduje: prilaz za invalide
Opis oglasa
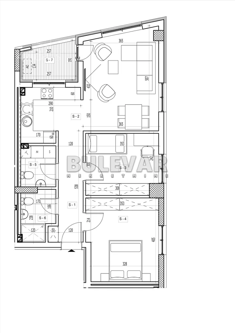
Na prodaju ekskluzivna novogradnja u centru. Stambeno poslovni objekat Po+P+8. Stan je projektovane površine 66,72m2. Nalazi se na četvrtom spratu, čine ga ulazni hodnik, dnevna soba sa trpezarijom i kuhinjom, dve spavaće sobe, toalet, kupatilo i terasa. Svaka stambena jedinica ima nezavisan sistem grejanja i hlađenja koji je automatizovan i moguće ga je kontrolisati putem mobilnog uređaja. Sistem za grejanje je postavljen kroz pod sa elektro-kotlom, dok je rashladni sistem sa invertor klimama. Svi podovi izvedeni su kao plivajući sa ugrađenom zvučnom izolacijom. Na podu je višeslojni parket, a u kupatilu granitna keramika. Unutrašnja stolarija izrađena je od visoko kvalitetnog furnira, dok je spoljna stolarija od aluminijuma. Predviđeni rok završetka je jun 2027. godine. Za kupce prvog stana postoji mogućnost povratka PDV-a. Postoji mogućnost kupovine parking mesta. Ovo je samo deo naše ponude, za više informacija stojimo Vam na raspolaganju.
*Sačuvaj oglas uz belešku i primaj obaveštenja o njihovom pojeftinjenju ili pojavljivanju sličnih
Prikaz stana na mapi
Parkovi u blizini
- Park Čair10 min
- Park heroja NOB-a14 min
- Park složnih komšija22 min

Obeležja kulture u blizini
- Spomenik Stevanu Sremcu i Kalči5 min
- Vladičanski dvor3 min
- Donina česma4 min

Škole/Fakulteti/Vrtići u blizini
- Osnovna škola (Osnovna škola Dositej Obradović)9 min
- Srednja škola (Gimnazija Svetozar Marković)6 min
- Vrtić (Dečiji centar Bambini 2)manje od 1 min
- Fakultet (Univerzitet u Nišu Fakultet zaštite na radu)6 min

- Bolnica (Urgentni centar Niš)9 min
- Klinika (Poliklinika Longa Vita)4 min
- Teretana (Centar za rekreaciju Miss Fit Line)1 min
- Prodavnica (Neo Market)4 min
- Restoran (Kafana Palilulski dukat)1 min
- Kafana (Pivnica Nemir)3 min
- Taksi stajalište (Bros Taxi Niš)10 min
- Autobuska stanica (Episkopska)2 min
- Banka (NLB Komercijalna banka)1 min
- Pošta (Pošta Niš 5)4 min
Kontakt oglašivača

Krediti OTP banke
Saznaj više
Prikazana rata odnosi se na maksimalni period otplate. Kalkulator je informativnog karaktera.
* Nakon isteka 5 godina, prelazi se na varijabilnu kamatnu stopu





















